а286
Проект дома с мансардным этажом, с гаражом на одну машину.
Простая форма здания была покрыта двускатной крышей, покрытой фальцевым листовым металлом.
Яркий фасад здания сочетается с серой крышей, что придало ему изысканность и элегантность. Белые колонны, балюстрады, оконные рамы с переплетами и декоративные карнизы, безусловно, придают дому неповторимую атмосферу.
Простая форма здания была покрыта двускатной крышей, покрытой фальцевым листовым металлом.
Яркий фасад здания сочетается с серой крышей, что придало ему изысканность и элегантность. Белые колонны, балюстрады, оконные рамы с переплетами и декоративные карнизы, безусловно, придают дому неповторимую атмосферу.
о проекте
Несомненным преимуществом проекта являются красивые, большие веранды, расположенные как на заднем, так и на переднем фасадах. Благодаря крыше жильцы могут пользоваться верандами независимо от погоды.
ЭТАЖНОСТЬ
2
ПЛОЩАДЬ
196.69 м²
ПАРАМЕТРЫ ПРОЕКТА
196.69 м²
Общая площадь
196.69 м²
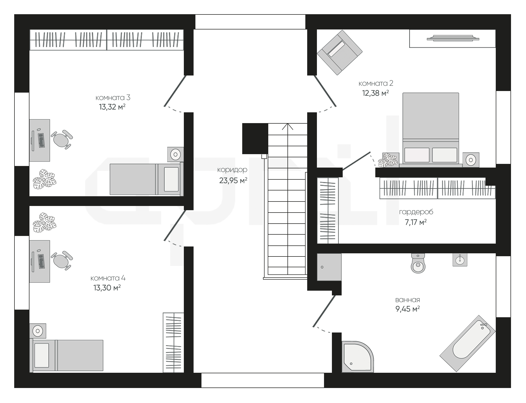
1 Этаж площадь
117,12 м²
Прихожая
12,76 м²
Гостиная-столовая
32,85 м²
Кухня
10,63 м²
Комната 1
14,73 м²
Ванная
7,63 м²
Гардероб
6,16 м²
Лестница
4,59 м²
Остались вопросы?
Напиши нам.
Напиши нам.
Наш ведущий инженер свяжется с вами в ближайшее время.
ДАННЫЕ ПОЛУЧЕНЫ
данные успешно отправлены
Ведущий инженер компании свяжется с вами в ближайшее время.
Дома 1 этаж
Дома 2 этажа
Дома 1 этаж с гаражом
Дома 120 м2
Дома 150 м2
Дома 2 этажа с гаражом
Дома 200 м2
Дома 250 м2
Дома 3 этажа
Дома в скандинавском стиле
Дома в стиле райта
Дома в стиле хайтек
Дома до 100 м2
Дома с гаражом
Дома с мансардой
Дома с сауной
Дома 1 этаж с гаражом и террасой
Дома 1 этаж с террасой
Дома в стиле барнхаус
Дома в стиле шале
Дома из газобетона
Дома из газобетона 1 этаж
Дома из камня
Дома из керамических блоков
Дома из кирпича
Дома из пеноблоков
Дома с зимним садом
Дома с подвалом
Дома с террасой
Дома с цокольным этажом
Фахверковые дома
Дома с бассейном