а365
Проект одноэтажного дома с гаражом и террасой.
Дом с плоской крышей, четкими линиями и простыми формами, что характерно для Хайтек.
На фасаде элегантно сочетаются современные материалы такие как светлая штукатурка, клинкерная плитка и фасадная доска.
Большие панорамные окна, расположенные по всей длине фасада, придает зданию стильный и современный вид, делая его более привлекательным.
Дом с плоской крышей, четкими линиями и простыми формами, что характерно для Хайтек.
На фасаде элегантно сочетаются современные материалы такие как светлая штукатурка, клинкерная плитка и фасадная доска.
Большие панорамные окна, расположенные по всей длине фасада, придает зданию стильный и современный вид, делая его более привлекательным.
о проекте
Проект выделяется отсутствием излишних декоративных элементов и акцентом на функциональности и чистоте форм.
ЭТАЖНОСТЬ
1
ПЛОЩАДЬ
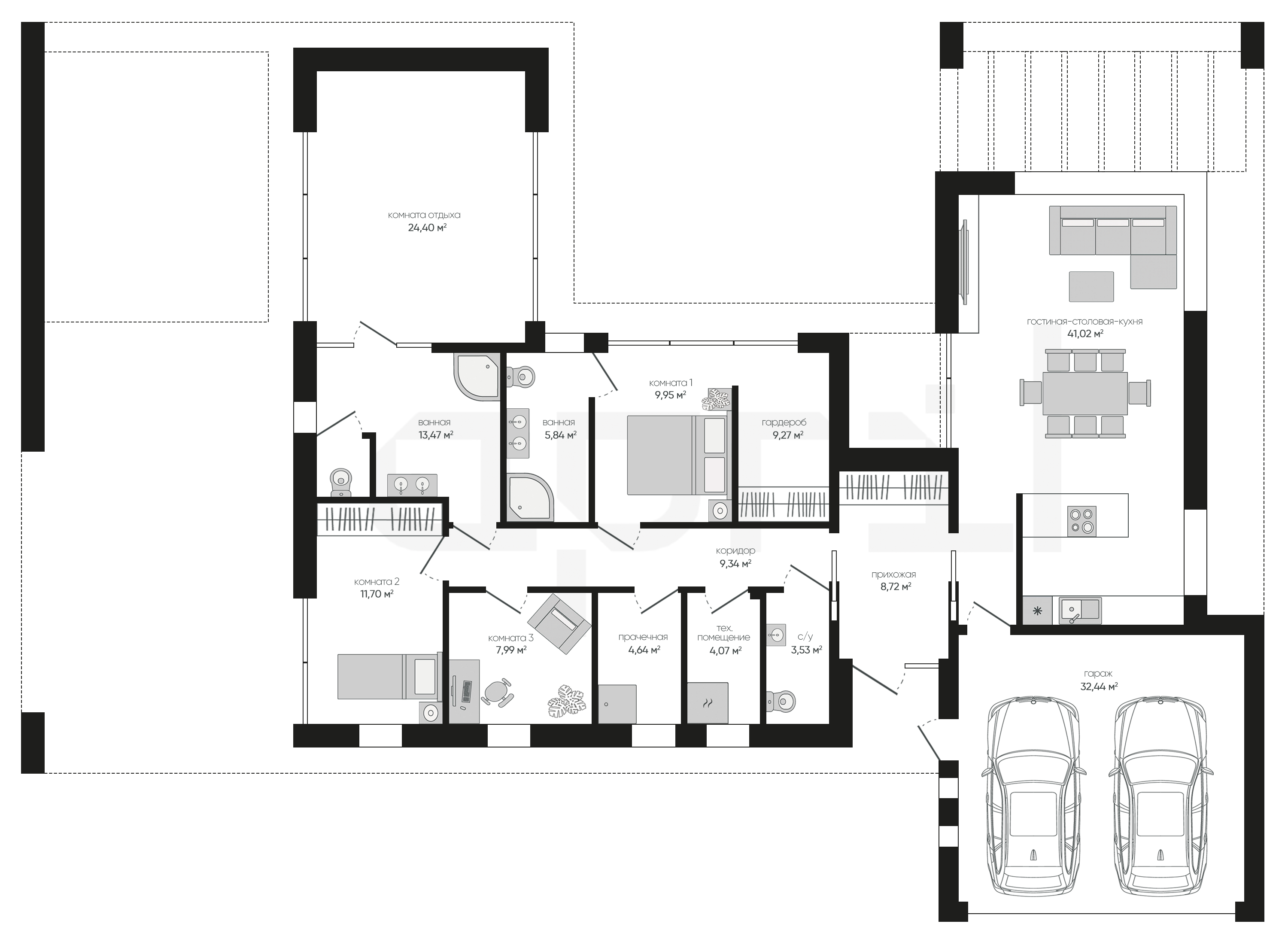
186.38 м²
ПАРАМЕТРЫ ПРОЕКТА
186.38 м²
Общая площадь
186.38 м²
Прихожая
8,72 м²
Гостиная-столовая-кухня
41,02 м²
Гараж
32,44 м²
Коридор
9,34 м²
Комната 1
9,95 м²
Гардероб
9,27 м²
Ванная
5,84 м²
Ванная
13,47 м²
Остались вопросы?
Напиши нам.
Напиши нам.
Наш ведущий инженер свяжется с вами в ближайшее время.
ДАННЫЕ ПОЛУЧЕНЫ
данные успешно отправлены
Ведущий инженер компании свяжется с вами в ближайшее время.
Дома 1 этаж
Дома 2 этажа
Дома 1 этаж с гаражом
Дома 120 м2
Дома 150 м2
Дома 2 этажа с гаражом
Дома 200 м2
Дома 250 м2
Дома 3 этажа
Дома в скандинавском стиле
Дома в стиле райта
Дома в стиле хайтек
Дома до 100 м2
Дома с гаражом
Дома с мансардой
Дома с сауной
Дома 1 этаж с гаражом и террасой
Дома 1 этаж с террасой
Дома в стиле барнхаус
Дома в стиле шале
Дома из газобетона
Дома из газобетона 1 этаж
Дома из камня
Дома из керамических блоков
Дома из кирпича
Дома из пеноблоков
Дома с зимним садом
Дома с подвалом
Дома с террасой
Дома с цокольным этажом
Фахверковые дома
Дома с бассейном