о проекте

Большие окна обеспечивают хорошее естественное освещение, а архитектура и дизайн создают ощущение уюта и гармонии с природой. Внутри дома планировка разделена на функциональные зоны.

ЭТАЖНОСТЬ
1
ПЛОЩАДЬ
208.47 м²
1
этаж
Чердак
ПАРАМЕТРЫ ПРОЕКТА
208.47 м²
Общая площадь
208.47 м²
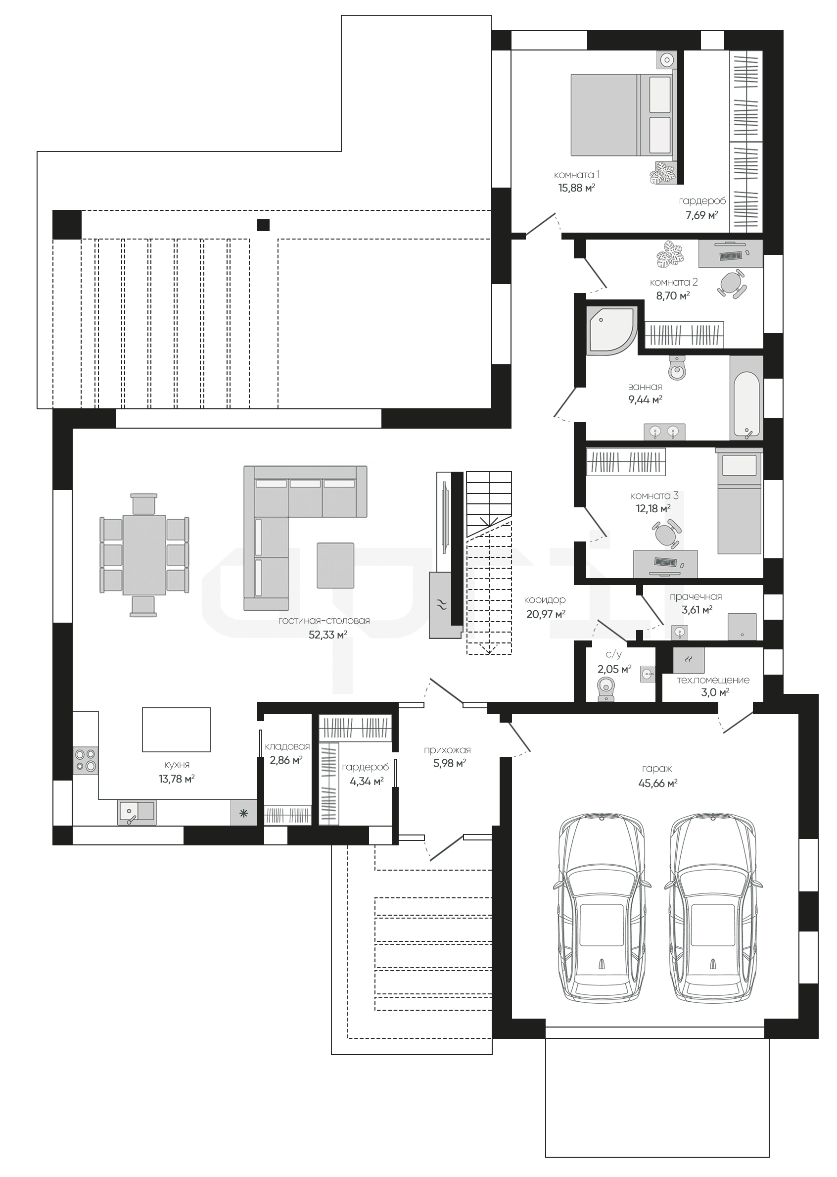
Прихожая
5,98 м²
Гардероб
4,34 м²
Гостиная-столовая
52,33 м²
Кухня
13,78 м²
Кладовая
2,86 м²
Коридор
20,97 м²
Комната 1
15,88 м²
Гардероб
7,69 м²
1 этаж
Чердак
все характеристики
жилой дом
Общая площадь
208.47 м²
Прихожая
5,98 м²
Гардероб
4,34 м²
Гостиная-столовая
52,33 м²
Кухня
13,78 м²
Кладовая
2,86 м²
Коридор
20,97 м²
Комната 1
15,88 м²
Гардероб
7,69 м²
Комната 2
8,70
Ванная
9,44 м²
Комната 3
12,18 м²
Прачечная
3,61 м²
С/у
2,05 м²
Техническое помещение
3 м²
Гараж
45,66 м²
Чердак
20,31 м²
Чердак
52,19 м²
Чердак
48,84 м²
Чердак
35,51 м²
Чердак
11,61 м²
Чердак
16,60 м²
планировка
все характеристики
все характеристики
жилой дом
Общая площадь
208.47 м²
Прихожая
5,98 м²
Гардероб
4,34 м²
Гостиная-столовая
52,33 м²
Кухня
13,78 м²
Кладовая
2,86 м²
Коридор
20,97 м²
Комната 1
15,88 м²
Гардероб
7,69 м²
Комната 2
8,70
Ванная
9,44 м²
Комната 3
12,18 м²
Прачечная
3,61 м²
С/у
2,05 м²
Техническое помещение
3 м²
Гараж
45,66 м²
Чердак
20,31 м²
Чердак
52,19 м²
Чердак
48,84 м²
Чердак
35,51 м²
Чердак
11,61 м²
Чердак
16,60 м²
экстерьер
Остались вопросы?
Напиши нам.
Наш ведущий инженер свяжется с вами в ближайшее время.
Обязательно к заполнению
Обязательно к заполнению
ДАННЫЕ ПОЛУЧЕНЫ

данные успешно отправлены

Ведущий инженер компании свяжется с вами в ближайшее время.
мы используем файлы cookie
Используя сайт april-dom.ru, Вы соглашаетесь с использованием файлов cookie, которые указаны в Политике обработки Персональных данных.
/projects/a192/