о проекте

Проект двухэтажного дома с большим гаражом и террасой подходит для людей, ценящих современные тенденции в архитектуре и комфортное жилье.

ЭТАЖНОСТЬ
2
ПЛОЩАДЬ
196.73 м²
1
этаж
2
этаж
ПАРАМЕТРЫ ПРОЕКТА
196.73 м²
Общая площадь
196.73 м²
1 Этаж площадь
115,90 м²
Прихожая
6,59 м²
Коридор
3,97 м²
Гостиная
24,08 м²
Столовая
12,89 м²
Кухня
11,61 м²
С/у
4,33 м²
Техническое помещение
4,82 м²
1 этаж
2 этаж
все характеристики
жилой дом
Общая площадь
196.73 м²
1 Этаж площадь
115,90 м²
Прихожая
6,59 м²
Коридор
3,97 м²
Гостиная
24,08 м²
Столовая
12,89 м²
Кухня
11,61 м²
С/у
4,33 м²
Техническое помещение
4,82 м²
Гараж
44,35 м²
Лестница
3,26 м²
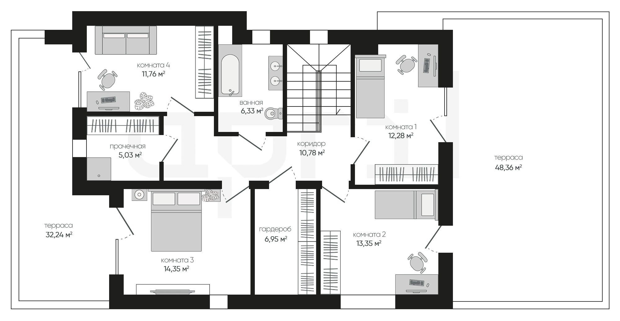
2 Этаж площадь
80,83 м²
Коридор
10,78 м² (2 эт.)
Комната 1
12,28 м² (2 эт.)
Комната 2
13,35 м² (2 эт.)
Гардероб
6,95 м² (2 эт.)
Комната 3
14,35 м² (2 эт.)
Прачечная
5,03 м² (2 эт.)
Комната 4
11,76 м² (2 эт.)
Ванная
6,33 м² (2 эт.)
Терраса
32,24 м² (2 эт.)
Терраса
48,36 м² (2 эт.)
планировка
все характеристики
все характеристики
жилой дом
Общая площадь
196.73 м²
1 Этаж площадь
115,90 м²
Прихожая
6,59 м²
Коридор
3,97 м²
Гостиная
24,08 м²
Столовая
12,89 м²
Кухня
11,61 м²
С/у
4,33 м²
Техническое помещение
4,82 м²
Гараж
44,35 м²
Лестница
3,26 м²
2 Этаж площадь
80,83 м²
Коридор
10,78 м² (2 эт.)
Комната 1
12,28 м² (2 эт.)
Комната 2
13,35 м² (2 эт.)
Гардероб
6,95 м² (2 эт.)
Комната 3
14,35 м² (2 эт.)
Прачечная
5,03 м² (2 эт.)
Комната 4
11,76 м² (2 эт.)
Ванная
6,33 м² (2 эт.)
Терраса
32,24 м² (2 эт.)
Терраса
48,36 м² (2 эт.)
экстерьер
Остались вопросы?
Напиши нам.
Наш ведущий инженер свяжется с вами в ближайшее время.
Обязательно к заполнению
Обязательно к заполнению
ДАННЫЕ ПОЛУЧЕНЫ

данные успешно отправлены

Ведущий инженер компании свяжется с вами в ближайшее время.
мы используем файлы cookie
Используя сайт april-dom.ru, Вы соглашаетесь с использованием файлов cookie, которые указаны в Политике обработки Персональных данных.
/projects/a256/