Дома с сауной под ключ

Дома с сауной – это инвестиция в здоровье и комфорт всей семьи. April создает дома с сауной 6-12 м². Варианты размещения: цокольный этаж, отдельный блок, пристройка. Вентиляция по спецпроекту.

Заказать индивидуальный проект

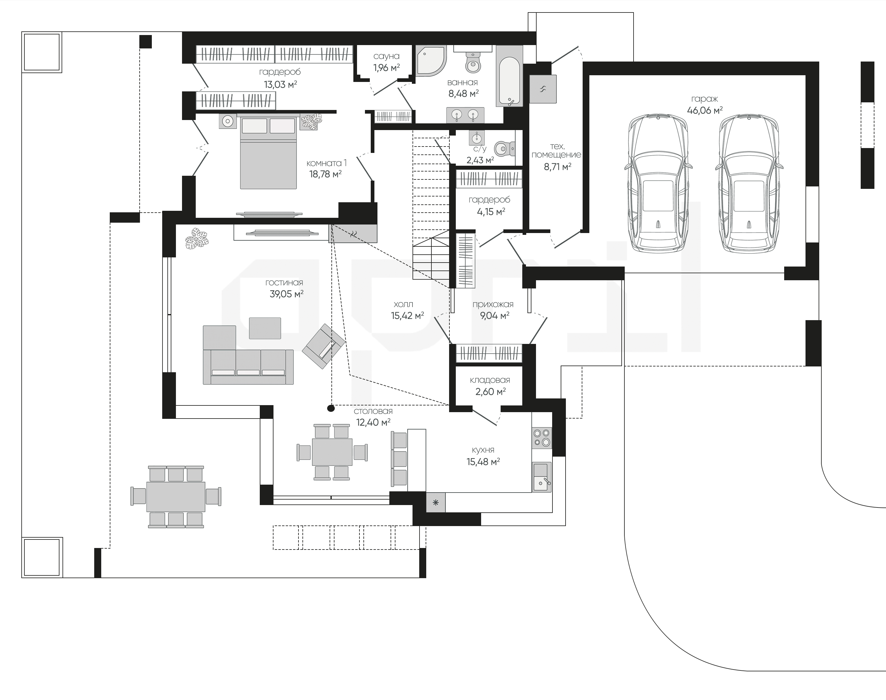
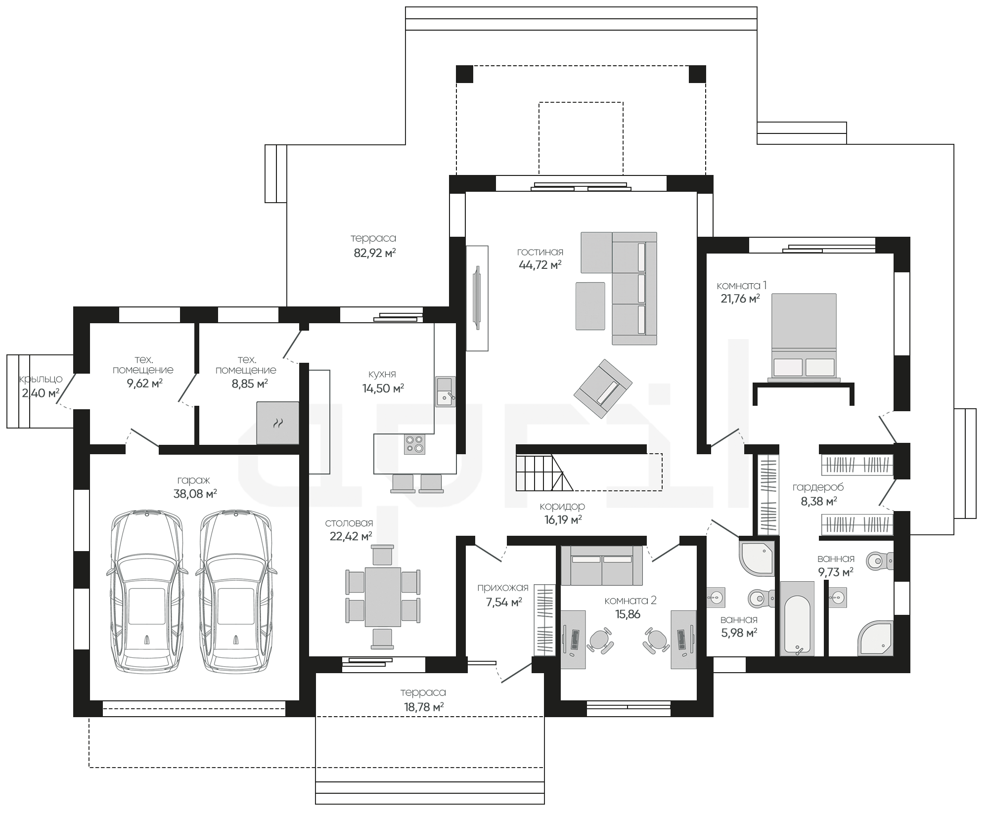
Строительство выполняется с использованием безопасных материалов и соблюдением технологий. Готовые решения: финская сауна с купелью, турецкий хамам или инфракрасная кабина. Дополнительно: душевая, комната отдыха с панорамным остеклением.

Найдите проект, который подойдёт именно вам

Дома с сауной под ключ от компании April — это комфорт, здоровье и отдых в любое время года. В каталоге представлены современные проекты домов с сауной и комнатой отдыха, где каждый элемент продуман до мелочей. Мы предлагаем строительство под ключ в Тюмени, используя натуральные материалы: дерево, кирпич, газобетон.

  • Кому-то важно, как выглядит фасад.

  • Кому-то — сколько в доме комнат и где гардероб.

  • Выберите, с чего начать.

выбор по планировкам
выбор по фасадам
выбор по планировкам
Сортировать По площади (по возрастанию)
По площади (по возрастанию)
По площади (по убыванию)
От новых к старым
От старых к новым
фильтр
Дом
Площадь
Этажность
Без учета цокольного этажа
Количество комнат
Без учета гостиной
Архитектурный стиль
Гараж
Мансарда
Тип кровли
Терасса
Подвал
Материал
Цокольный этаж
Дополнительные помещения
Габариты ширина
от 1.4 м до 48 м
Габариты длина
от 5 м до 34 м
выбор по планировкам
выбор по фасадам
выбор по планировкам

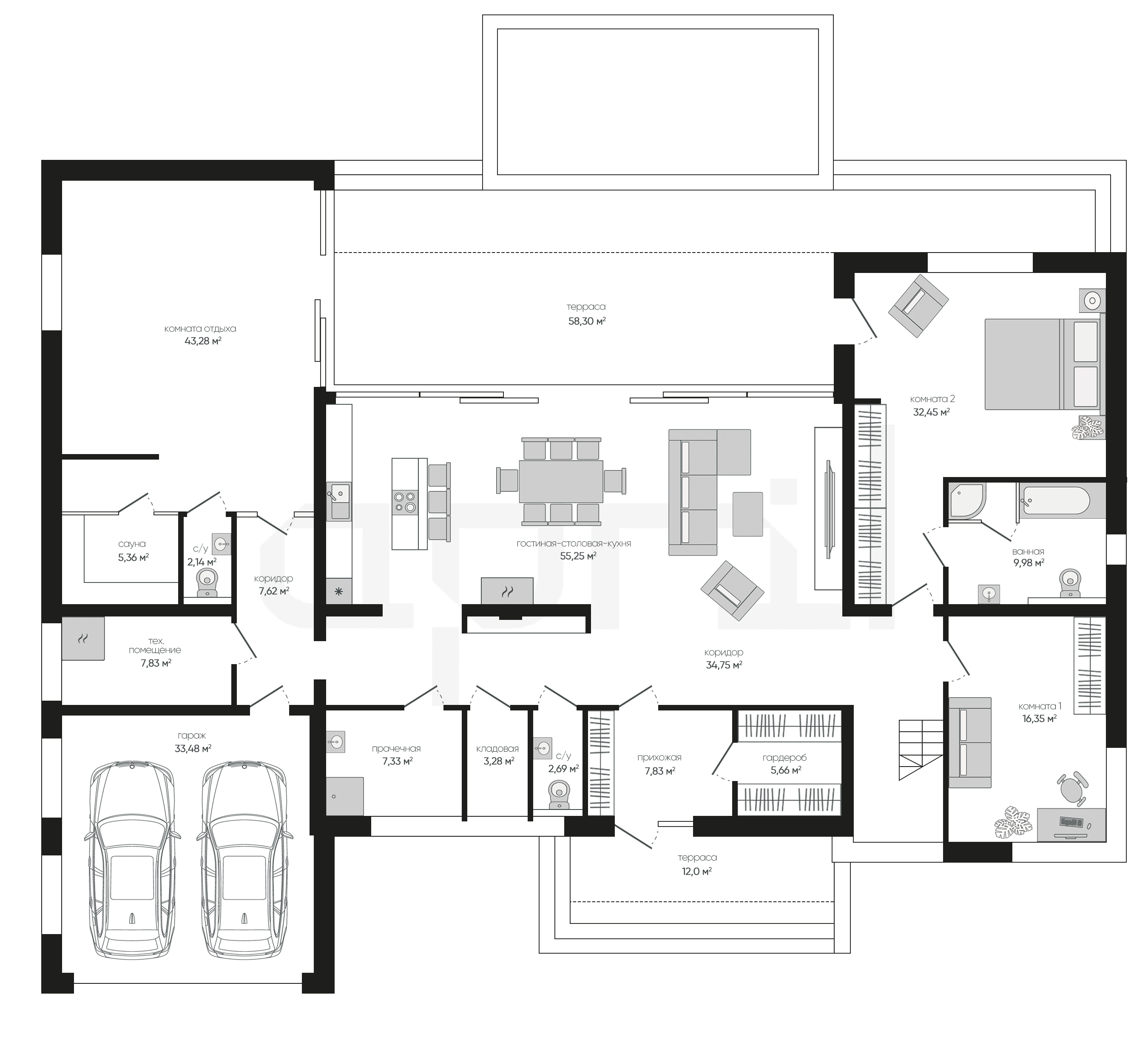
Круглогодичный отдых и оздоровление

Дома с сауной востребованы у тех, кто ценит комфорт и домашний уют. Компания April предлагает строительство коттеджей с сауной под ключ, обеспечивая фиксированную стоимость и прозрачные условия. Сауна — не только место для релаксации, но и элемент здорового образа жизни, объединяющий семью и друзей.

Что включает проект:
  • 01/

    Просторную парную и душевую

  • 02/

    Комнату отдыха и тёплую террасу

  • 03/

    Современные инженерные решения

  • 04/

    Гарантию качества и долговечности

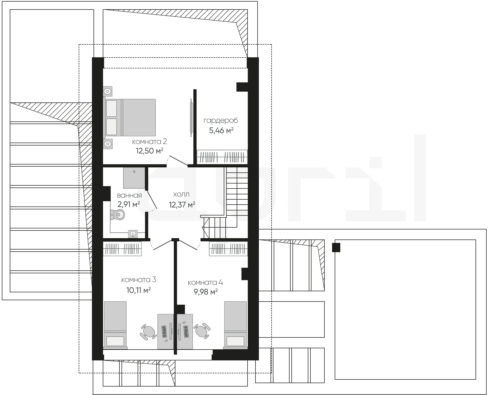
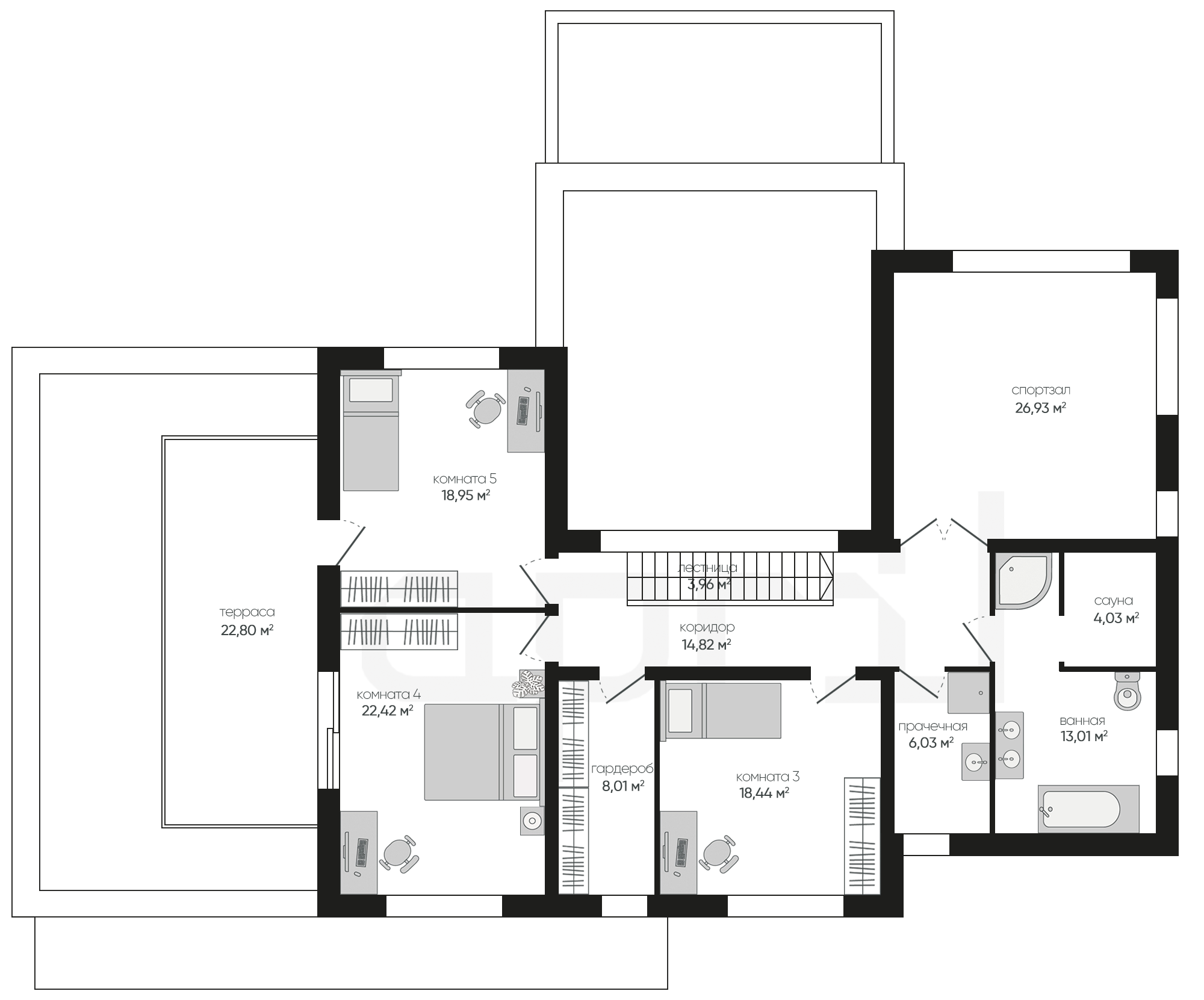
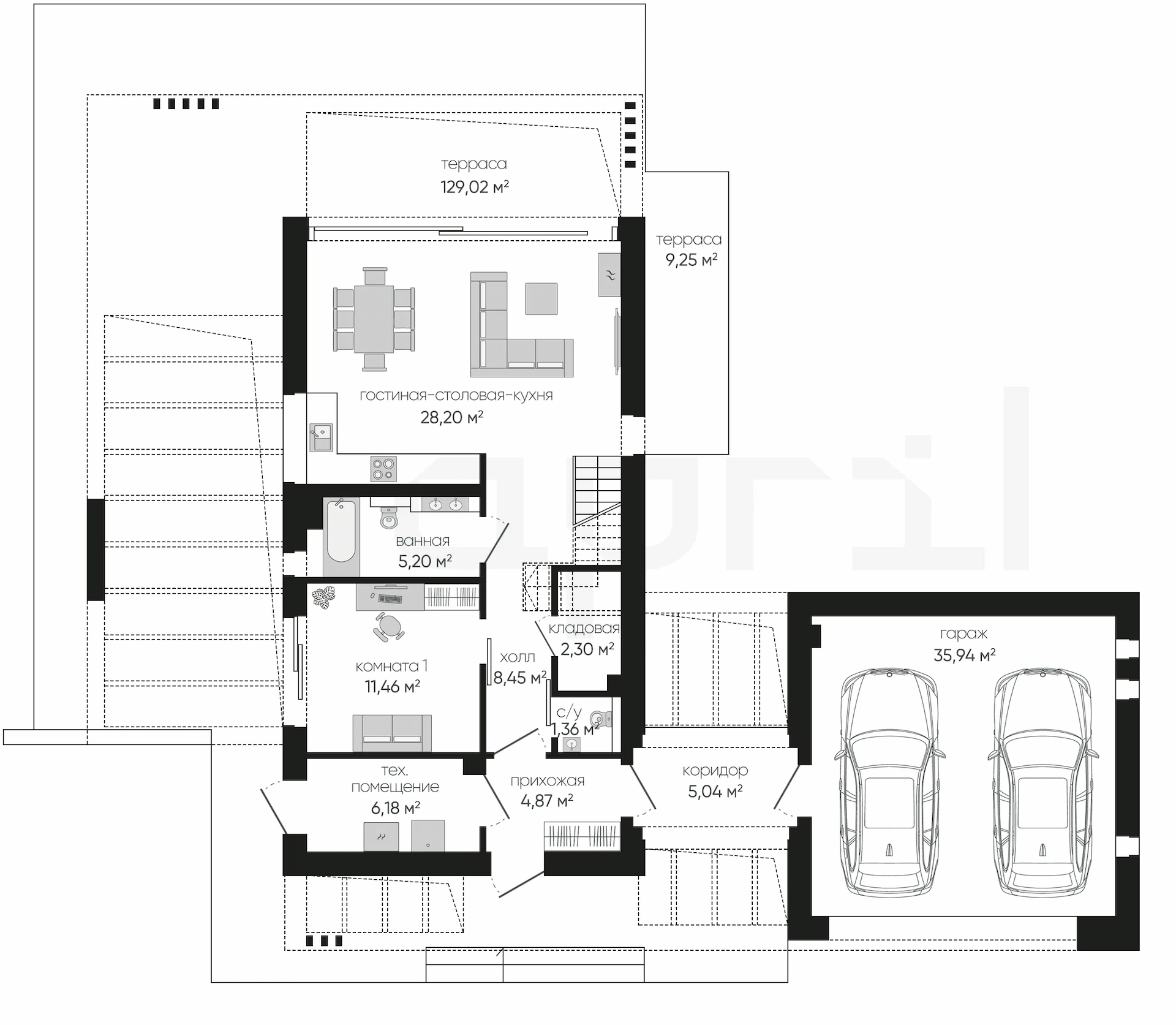
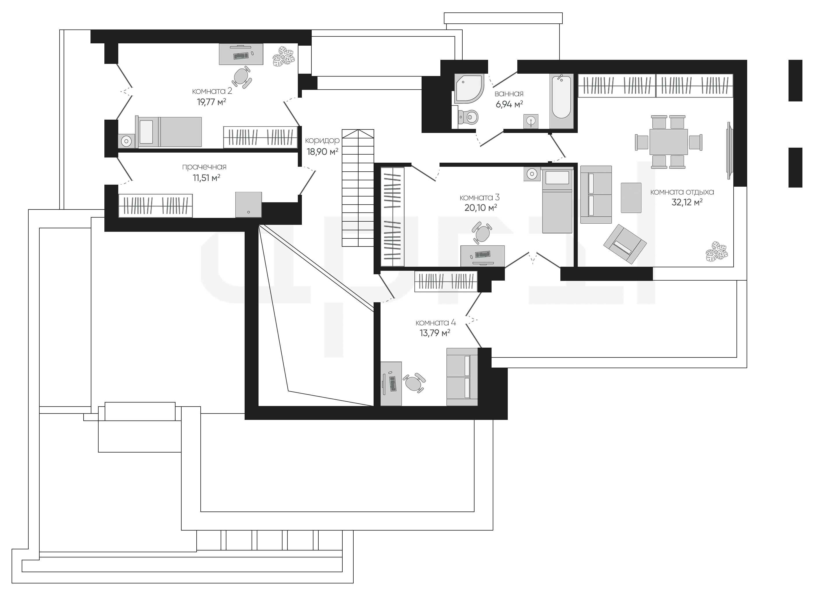
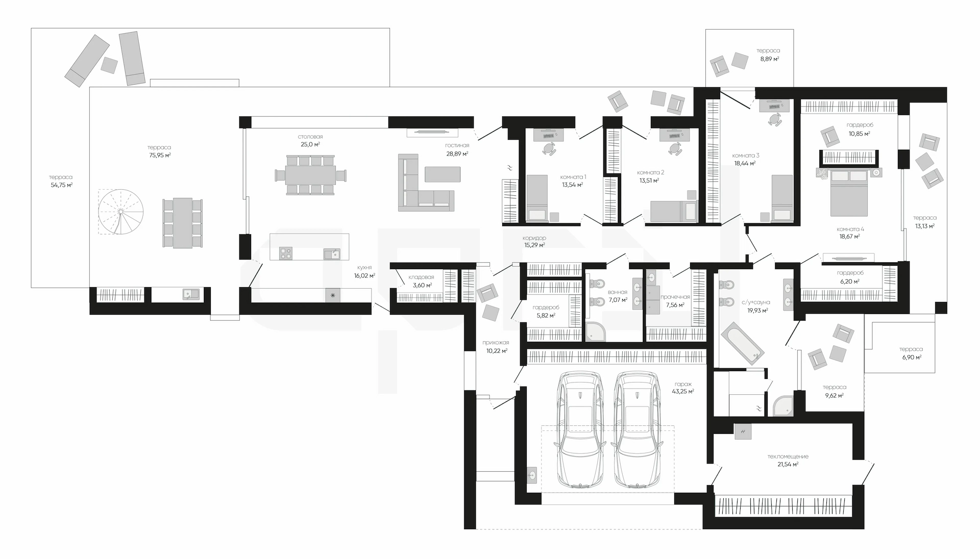
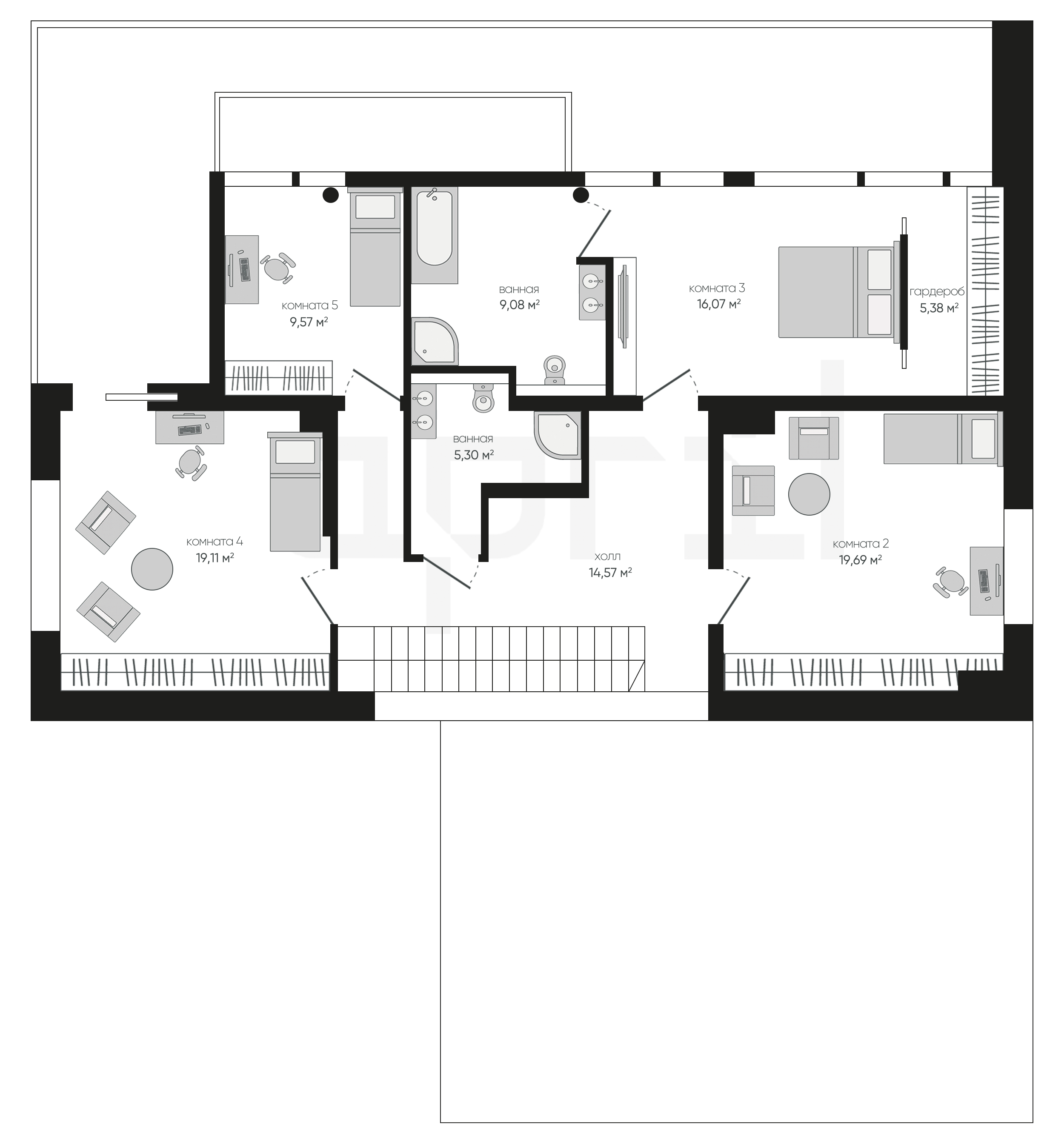
Особенности планировки с сауной

Специально разработанные планировки учитывают все нюансы размещения парной — от правильной вентиляции до оптимальной теплоизоляции помещений. Продуманное зонирование позволяет обустроить полноценную релакс-зону, изолированную от жилых комнат.

Преимущества решения:

  • Отдельный блок с грамотной гидро- и пароизоляцией

  • Эргономичное зонирование пространства для отдыха

  • Энергоэффективные системы отопления и вентиляции

  • Натуральная древесина для создания особого микроклимата

Оставьте заявку для расчета стоимости дома с сауной — мы подготовим детальную смету и предложим оптимальный проект для вашего участка в Тюмени!

Частые вопросы

  • Встроенная сауна позволяет пользоваться ею круглый год без выхода на улицу, экономит место на участке и обеспечивает комфортный переход в душевую или бассейн.

  • Предлагаем: финские сауны (сухой пар до 110°C), русские бани (влажный пар с вениками), инфракрасные кабины (мягкий прогрев), хаммам (низкотемпературный пар).

  • Популярные варианты:

    -Цокольный этаж – хорошая теплоизоляция

    -Рядом с ванной – удобный доступ к воде

    -Отдельный блок с выходом во двор – для любителей контраста.

  • Да, проектируем:

    -Крытые мини-бассейны (3-4 м длиной)

    -Купели с подогревом

    -Зону отдыха с шезлонгами.

  • Используем: вагонку из липы, кедра или абаши (не нагревается), стеклянные двери и панели (визуально расширяют пространство), кафель в моечной (устойчив к влаге).

мы используем файлы cookie
Используя сайт april-dom.ru, Вы соглашаетесь с использованием файлов cookie, которые указаны в Политике обработки Персональных данных.
/projects/filter/doma-s-saunoj/