о проекте

Дом выполнен в современном стиле с элементами минимализма, характеризующимся чистыми линиями, простыми формами и отсутствием излишнего декора.

ЭТАЖНОСТЬ
2
ПЛОЩАДЬ
220.97 м²
1
этаж
2
этаж
ПАРАМЕТРЫ ПРОЕКТА
220.97 м²
Общая площадь
220.97 м²
1 Этаж площадь
152,12 м²
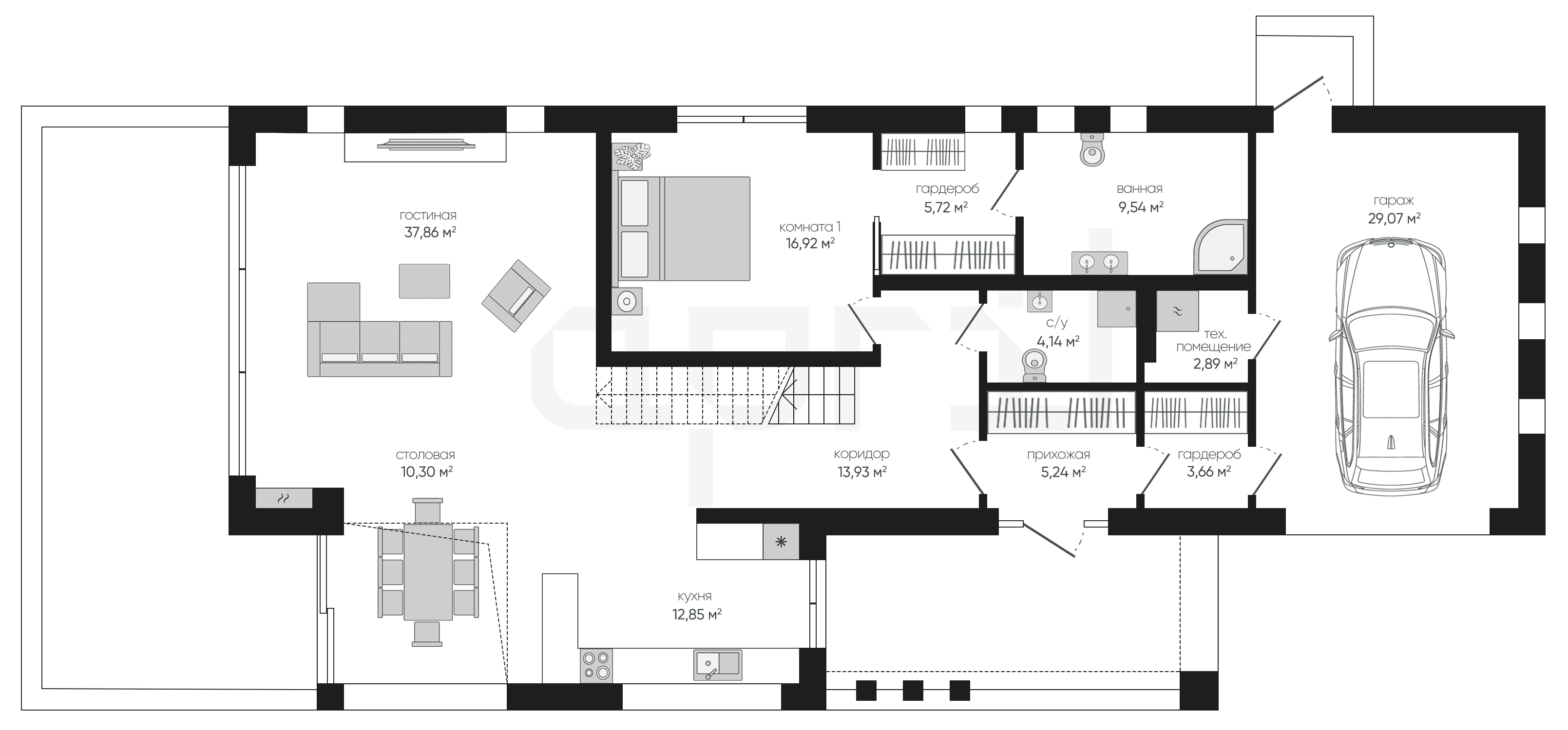
Прихожая
5,24 м²
Гардероб
3,66 м²
Коридор
13,93 м²
Гостиная
37,86 м²
Столовая
10,30 м²
Кухня
12,85 м²
Комната 1
16,92 м²
1 этаж
2 этаж
все характеристики
жилой дом
Общая площадь
220.97 м²
1 Этаж площадь
152,12 м²
Прихожая
5,24 м²
Гардероб
3,66 м²
Коридор
13,93 м²
Гостиная
37,86 м²
Столовая
10,30 м²
Кухня
12,85 м²
Комната 1
16,92 м²
Гардероб
5,72 м²
Ванная
9,54 м²
С/у
4,14 м²
Техническое помещение
2,89 м²
Гараж
29,07 м²
2 Этаж площадь
68,85 м²
Коридор
10 м² (2 эт.)
Антресоль
4,38 м² (2 эт.)
Комната 2
14,67 м² (2 эт.)
Комната 3
13,71 м² (2 эт.)
Комната 4
13,38 м² (2 эт.)
Ванная
12,71 м² (2 эт.)
планировка
все характеристики
все характеристики
жилой дом
Общая площадь
220.97 м²
1 Этаж площадь
152,12 м²
Прихожая
5,24 м²
Гардероб
3,66 м²
Коридор
13,93 м²
Гостиная
37,86 м²
Столовая
10,30 м²
Кухня
12,85 м²
Комната 1
16,92 м²
Гардероб
5,72 м²
Ванная
9,54 м²
С/у
4,14 м²
Техническое помещение
2,89 м²
Гараж
29,07 м²
2 Этаж площадь
68,85 м²
Коридор
10 м² (2 эт.)
Антресоль
4,38 м² (2 эт.)
Комната 2
14,67 м² (2 эт.)
Комната 3
13,71 м² (2 эт.)
Комната 4
13,38 м² (2 эт.)
Ванная
12,71 м² (2 эт.)
экстерьер
Остались вопросы?
Напиши нам.
Наш ведущий инженер свяжется с вами в ближайшее время.
Обязательно к заполнению
Обязательно к заполнению
ДАННЫЕ ПОЛУЧЕНЫ

данные успешно отправлены

Ведущий инженер компании свяжется с вами в ближайшее время.
мы используем файлы cookie
Используя сайт april-dom.ru, Вы соглашаетесь с использованием файлов cookie, которые указаны в Политике обработки Персональных данных.
/projects/a375/