о проекте

Проект представляет собой предложение современного, функционального и комфортного дома с полноценным этажом и двускатной крышей.

ЭТАЖНОСТЬ
2
ПЛОЩАДЬ
233.51 м²
1
этаж
2
этаж
ПАРАМЕТРЫ ПРОЕКТА
233.51 м²
Общая площадь
233.51 м²
1 Этаж площадь
126,94 м²
Прихожая
8,58 м²
Коридор
10,34 м²
Гостиная-столовая
30,31 м²
Кухня
9,82 м²
Кладовая
3,66 м²
Комната 1
13,39 м²
С/у
4,60 м²
1 этаж
2 этаж
все характеристики
жилой дом
Общая площадь
233.51 м²
1 Этаж площадь
126,94 м²
Прихожая
8,58 м²
Коридор
10,34 м²
Гостиная-столовая
30,31 м²
Кухня
9,82 м²
Кладовая
3,66 м²
Комната 1
13,39 м²
С/у
4,60 м²
Техническое помещение
5,88 м²
Гараж
40,36 м²
2 Этаж площадь
106,57
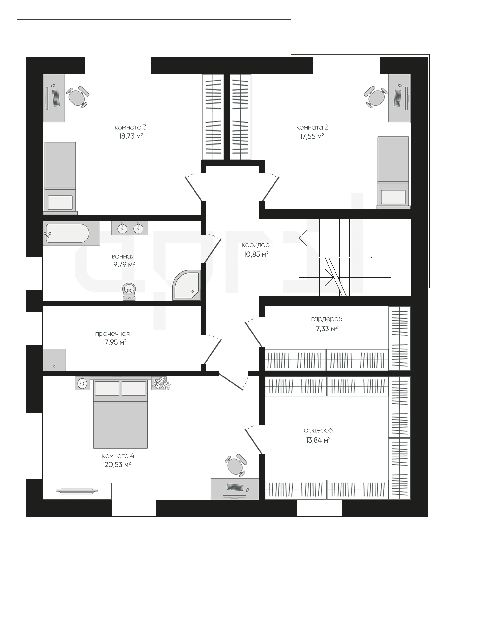
Коридор
10,85 м² (2 эт.)
Комната 2
17,55 м² (2 эт.)
Комната 3
18,73 м² (2 эт.)
Ванная
9,79 м² (2 эт.)
Прачечная
7,95 м² (2 эт.)
Комната 4
20,53 м² (2 эт.)
Гардероб
13,84 м² (2 эт.)
Гардероб
7,33 м² (2 эт.)
планировка
все характеристики
все характеристики
жилой дом
Общая площадь
233.51 м²
1 Этаж площадь
126,94 м²
Прихожая
8,58 м²
Коридор
10,34 м²
Гостиная-столовая
30,31 м²
Кухня
9,82 м²
Кладовая
3,66 м²
Комната 1
13,39 м²
С/у
4,60 м²
Техническое помещение
5,88 м²
Гараж
40,36 м²
2 Этаж площадь
106,57
Коридор
10,85 м² (2 эт.)
Комната 2
17,55 м² (2 эт.)
Комната 3
18,73 м² (2 эт.)
Ванная
9,79 м² (2 эт.)
Прачечная
7,95 м² (2 эт.)
Комната 4
20,53 м² (2 эт.)
Гардероб
13,84 м² (2 эт.)
Гардероб
7,33 м² (2 эт.)
экстерьер
Остались вопросы?
Напиши нам.
Наш ведущий инженер свяжется с вами в ближайшее время.
Обязательно к заполнению
Обязательно к заполнению
ДАННЫЕ ПОЛУЧЕНЫ

данные успешно отправлены

Ведущий инженер компании свяжется с вами в ближайшее время.
мы используем файлы cookie
Используя сайт april-dom.ru, Вы соглашаетесь с использованием файлов cookie, которые указаны в Политике обработки Персональных данных.
/projects/a267/