о проекте

Проект является ярким представителем современного архитектурного стиля, сочетающего эстетику Хайтек с функциональностью и комфортом.

ЭТАЖНОСТЬ
2
ПЛОЩАДЬ
226.70 м²
1
этаж
2
этаж
ПАРАМЕТРЫ ПРОЕКТА
226.70 м²
Общая площадь
226.70 м²
1 Этаж площадь
124,68 м²
Прихожая
3,96 м²
Холл
6,91 м²
Гостиная
31,83 м²
Столовая
10,55 м²
Кухня
10,57 м²
Кладовая
1,82 м²
С/у
2 м²
1 этаж
2 этаж
все характеристики
жилой дом
Общая площадь
226.70 м²
1 Этаж площадь
124,68 м²
Прихожая
3,96 м²
Холл
6,91 м²
Гостиная
31,83 м²
Столовая
10,55 м²
Кухня
10,57 м²
Кладовая
1,82 м²
С/у
2 м²
Коридор
2,99 м²
Комната 1
14,42 м²
Ванная
3,65 м²
Гардероб
7,37 м²
Техническое помещение
7,92 м²
Гараж
20,69 м²
Терраса
6,75 м²
Терраса
21,78 м²
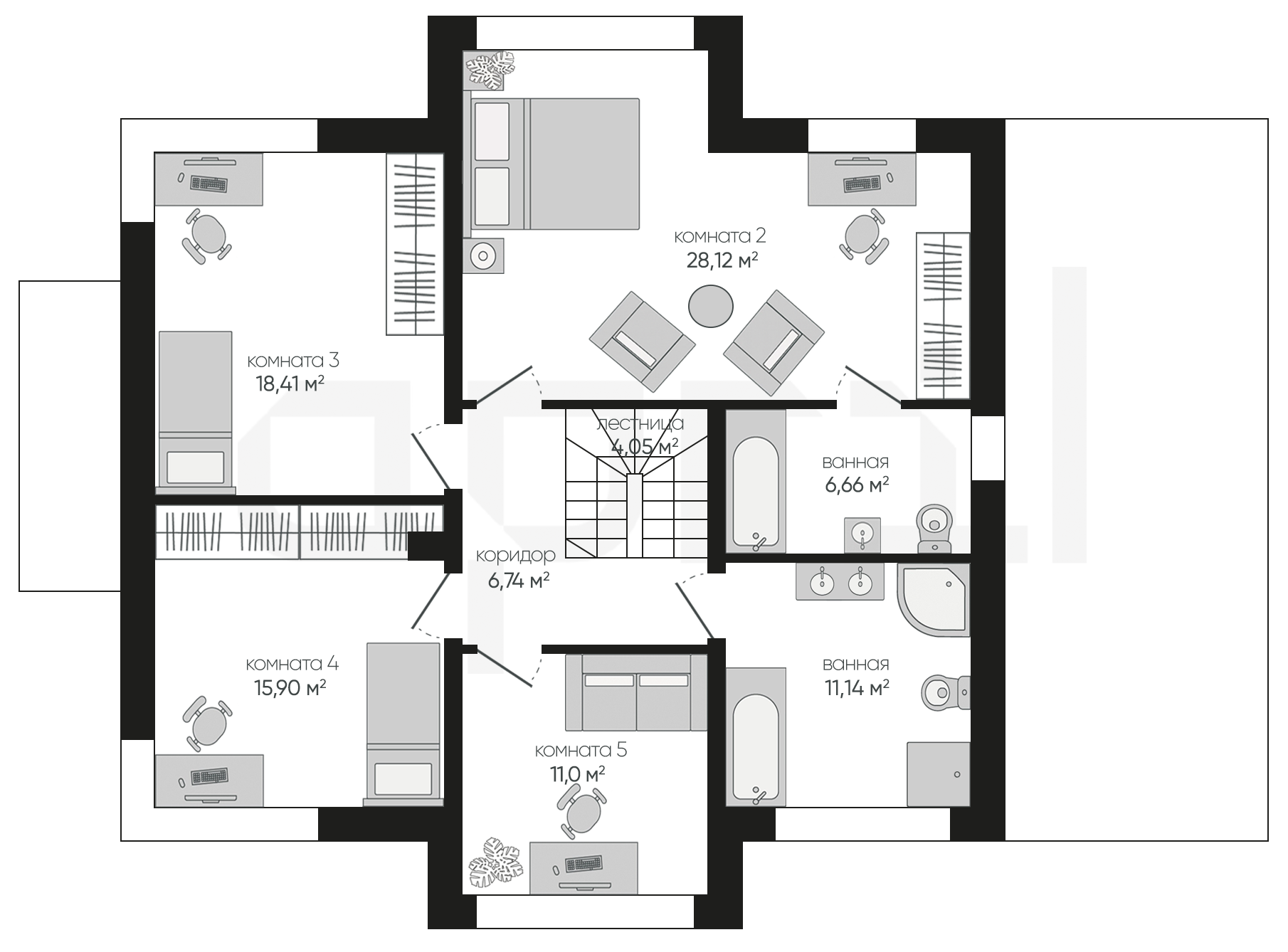
2 Этаж площадь
102,02 м²
Лестница
4,05 м² (2 эт.)
Коридор
6,74 м² (2 эт.)
Комната 2
28,12 м² (2 эт.)
Ванная
6,66 м² (2 эт.)
Комната 3
18,41 м² (2 эт.)
Комната 4
15,90 м² (2 эт.)
Комната 5
11 м² (2 эт.)
Ванная
11,14 м² (2 эт.)
планировка
все характеристики
все характеристики
жилой дом
Общая площадь
226.70 м²
1 Этаж площадь
124,68 м²
Прихожая
3,96 м²
Холл
6,91 м²
Гостиная
31,83 м²
Столовая
10,55 м²
Кухня
10,57 м²
Кладовая
1,82 м²
С/у
2 м²
Коридор
2,99 м²
Комната 1
14,42 м²
Ванная
3,65 м²
Гардероб
7,37 м²
Техническое помещение
7,92 м²
Гараж
20,69 м²
Терраса
6,75 м²
Терраса
21,78 м²
2 Этаж площадь
102,02 м²
Лестница
4,05 м² (2 эт.)
Коридор
6,74 м² (2 эт.)
Комната 2
28,12 м² (2 эт.)
Ванная
6,66 м² (2 эт.)
Комната 3
18,41 м² (2 эт.)
Комната 4
15,90 м² (2 эт.)
Комната 5
11 м² (2 эт.)
Ванная
11,14 м² (2 эт.)
экстерьер
Остались вопросы?
Напиши нам.
Наш ведущий инженер свяжется с вами в ближайшее время.
Обязательно к заполнению
Обязательно к заполнению
ДАННЫЕ ПОЛУЧЕНЫ

данные успешно отправлены

Ведущий инженер компании свяжется с вами в ближайшее время.
мы используем файлы cookie
Используя сайт april-dom.ru, Вы соглашаетесь с использованием файлов cookie, которые указаны в Политике обработки Персональных данных.
/projects/a464/