о проекте

Проект привлекателен строгими линиями, большими окнами, террасой и большим гаражом.

ЭТАЖНОСТЬ
2
ПЛОЩАДЬ
231.70 м²
1
этаж
2
этаж
ПАРАМЕТРЫ ПРОЕКТА
231.70 м²
Общая площадь
231.70 м²
1 Этаж площадь
160,41 м²
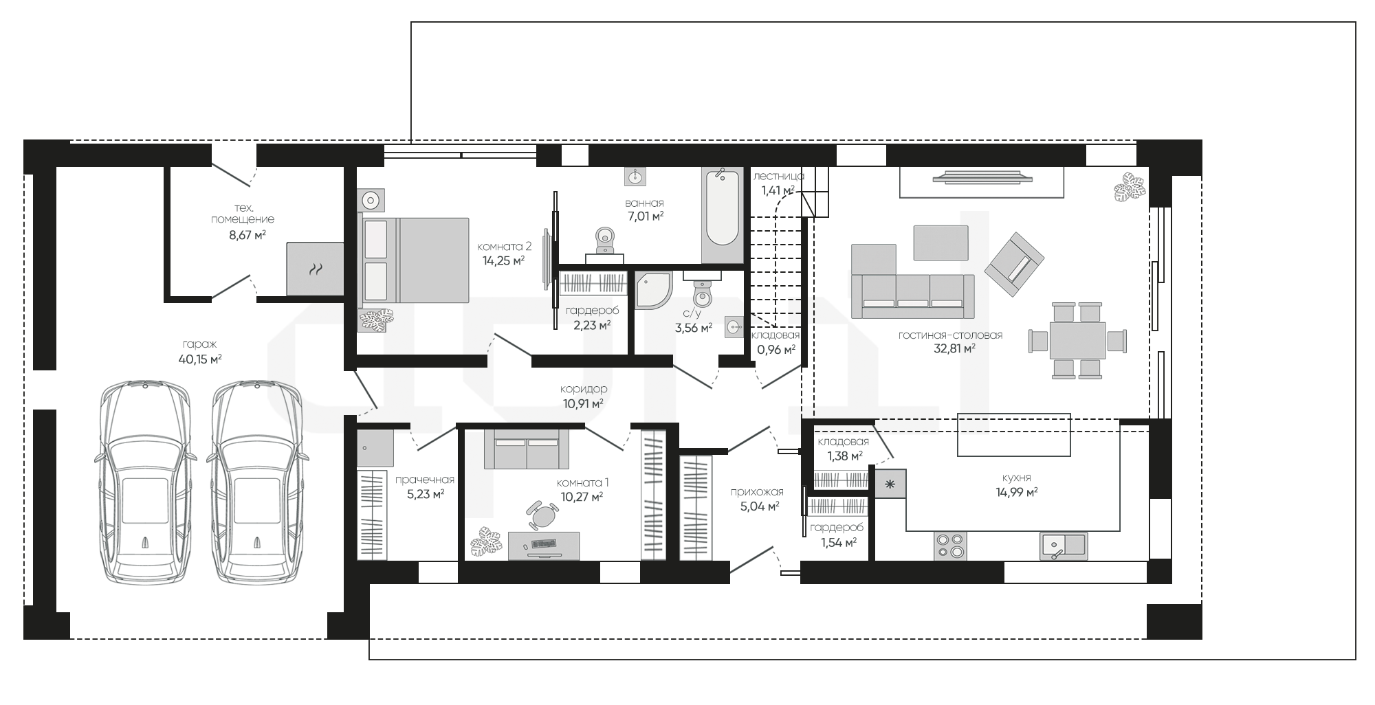
Прихожая
5,04 м²
Гардероб
1,54 м²
Коридор
10,91 м²
Гостиная-столовая
32,81 м²
Кухня
14,99 м²
Кладовая
1,38 м²
Лестница
1,41 м²
1 этаж
2 этаж
все характеристики
жилой дом
Общая площадь
231.70 м²
1 Этаж площадь
160,41 м²
Прихожая
5,04 м²
Гардероб
1,54 м²
Коридор
10,91 м²
Гостиная-столовая
32,81 м²
Кухня
14,99 м²
Кладовая
1,38 м²
Лестница
1,41 м²
Кладовая
0,96 м²
С/у
3,56 м²
Комната 1
10,27 м²
Прачечная
5,23 м²
Комната 2
14,25 м²
Ванная
7,01 м²
Гардероб
2,23 м²
Техническое помещение
8,67 м²
Гараж
40,15 м²
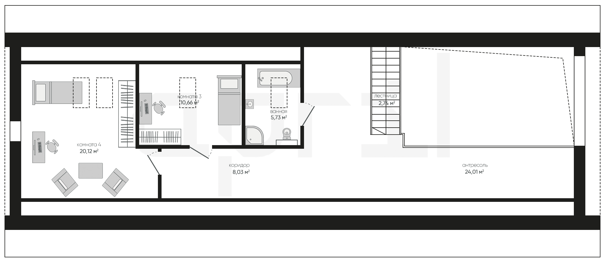
2 Этаж площадь
71,29 м²
Лестница
2,74 м² (2 эт.)
Антресоль
24,01 м² (2 эт.)
Коридор
8,03 м² (2 эт.)
Ванная
5,73 м² (2 эт.)
Комната 3
10,66 м² (2 эт.)
Комната 4
20,12 м² (2 эт.)
планировка
все характеристики
все характеристики
жилой дом
Общая площадь
231.70 м²
1 Этаж площадь
160,41 м²
Прихожая
5,04 м²
Гардероб
1,54 м²
Коридор
10,91 м²
Гостиная-столовая
32,81 м²
Кухня
14,99 м²
Кладовая
1,38 м²
Лестница
1,41 м²
Кладовая
0,96 м²
С/у
3,56 м²
Комната 1
10,27 м²
Прачечная
5,23 м²
Комната 2
14,25 м²
Ванная
7,01 м²
Гардероб
2,23 м²
Техническое помещение
8,67 м²
Гараж
40,15 м²
2 Этаж площадь
71,29 м²
Лестница
2,74 м² (2 эт.)
Антресоль
24,01 м² (2 эт.)
Коридор
8,03 м² (2 эт.)
Ванная
5,73 м² (2 эт.)
Комната 3
10,66 м² (2 эт.)
Комната 4
20,12 м² (2 эт.)
экстерьер
Остались вопросы?
Напиши нам.
Наш ведущий инженер свяжется с вами в ближайшее время.
Обязательно к заполнению
Обязательно к заполнению
ДАННЫЕ ПОЛУЧЕНЫ

данные успешно отправлены

Ведущий инженер компании свяжется с вами в ближайшее время.
мы используем файлы cookie
Используя сайт april-dom.ru, Вы соглашаетесь с использованием файлов cookie, которые указаны в Политике обработки Персональных данных.
/projects/a288/