о проекте

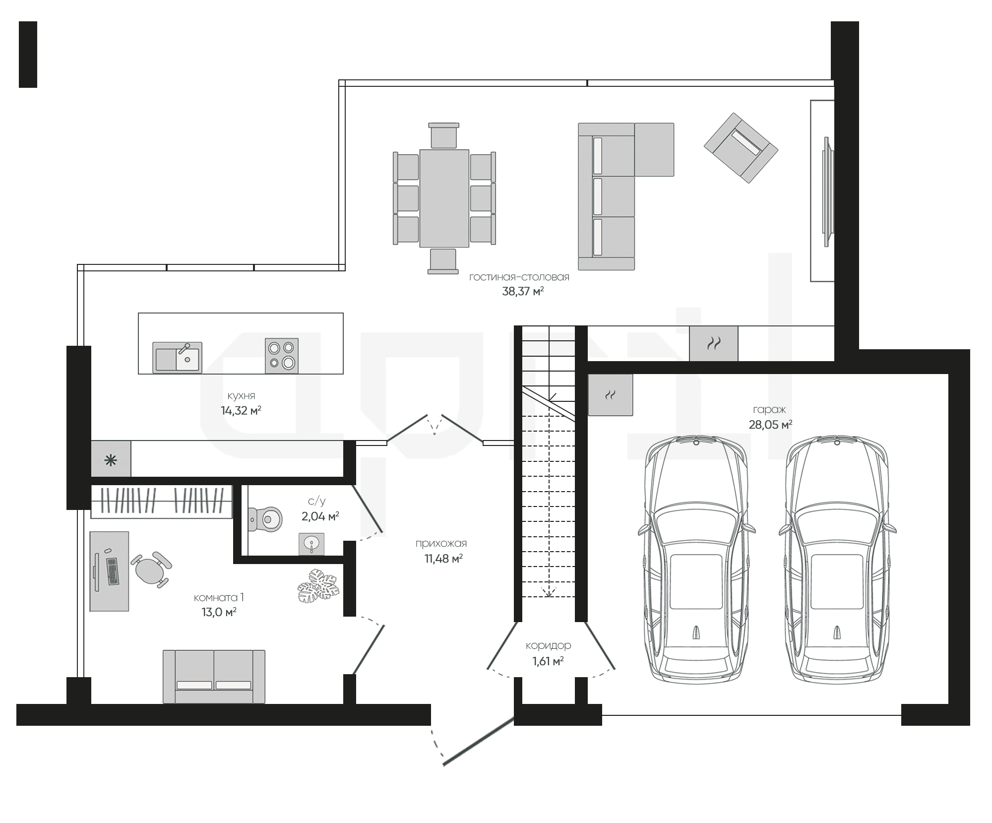
Планировка дома демонстрирует функциональное и хорошо организованное жилое пространство с четким разделением зон и удобным доступом к основным помещениям. Включенный в проект гараж на два автомобиля значительно повышает комфорт современной семьи.

ЭТАЖНОСТЬ
2
ПЛОЩАДЬ
207.22 м²
1
этаж
2
этаж
ПАРАМЕТРЫ ПРОЕКТА
207.22 м²
Общая площадь
207.22 м²
1 Этаж площадь
108,87 м²
Прихожая
11,48 м²
Гостиная-столовая
38,37 м²
Кухня
14,32 м²
С/у
2,04 м²
Комната 1
13 м²
Коридор
1,61 м²
Гараж
28,05 м²
1 этаж
2 этаж
все характеристики
жилой дом
Общая площадь
207.22 м²
1 Этаж площадь
108,87 м²
Прихожая
11,48 м²
Гостиная-столовая
38,37 м²
Кухня
14,32 м²
С/у
2,04 м²
Комната 1
13 м²
Коридор
1,61 м²
Гараж
28,05 м²
2 Этаж площадь
98,35 м²
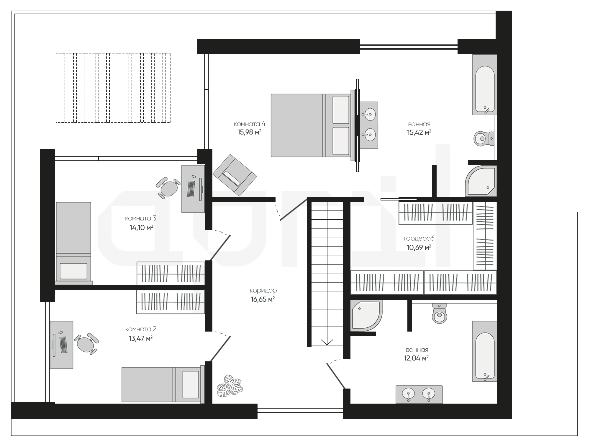
Коридор
16,65 м² (2 эт.)
Ванная
12,04 м² (2 эт.)
Комната 2
13,47 м² (2 эт.)
Комната 3
14,10 м² (2 эт.)
Комната 4
15,98 м² (2 эт.)
Ванная
15,42 м² (2 эт.)
Гардероб
10,69 м² (2 эт.)
планировка
все характеристики
все характеристики
жилой дом
Общая площадь
207.22 м²
1 Этаж площадь
108,87 м²
Прихожая
11,48 м²
Гостиная-столовая
38,37 м²
Кухня
14,32 м²
С/у
2,04 м²
Комната 1
13 м²
Коридор
1,61 м²
Гараж
28,05 м²
2 Этаж площадь
98,35 м²
Коридор
16,65 м² (2 эт.)
Ванная
12,04 м² (2 эт.)
Комната 2
13,47 м² (2 эт.)
Комната 3
14,10 м² (2 эт.)
Комната 4
15,98 м² (2 эт.)
Ванная
15,42 м² (2 эт.)
Гардероб
10,69 м² (2 эт.)
экстерьер
Остались вопросы?
Напиши нам.
Наш ведущий инженер свяжется с вами в ближайшее время.
Обязательно к заполнению
Обязательно к заполнению
ДАННЫЕ ПОЛУЧЕНЫ

данные успешно отправлены

Ведущий инженер компании свяжется с вами в ближайшее время.
мы используем файлы cookie
Используя сайт april-dom.ru, Вы соглашаетесь с использованием файлов cookie, которые указаны в Политике обработки Персональных данных.
/projects/a364/