о проекте

В проекте объединили современную архитектуру, детали и функции в традиционную форму дома с двускатной крышей. Удачные пропорции и сочетание правильно использованных материалов создают целостный, эстетически привлекательный эффект.

ЭТАЖНОСТЬ
2
ПЛОЩАДЬ
216.26 м²
1
этаж
2
этаж
ПАРАМЕТРЫ ПРОЕКТА
216.26 м²
Общая площадь
216.26 м²
1 Этаж площадь
141,49 м²
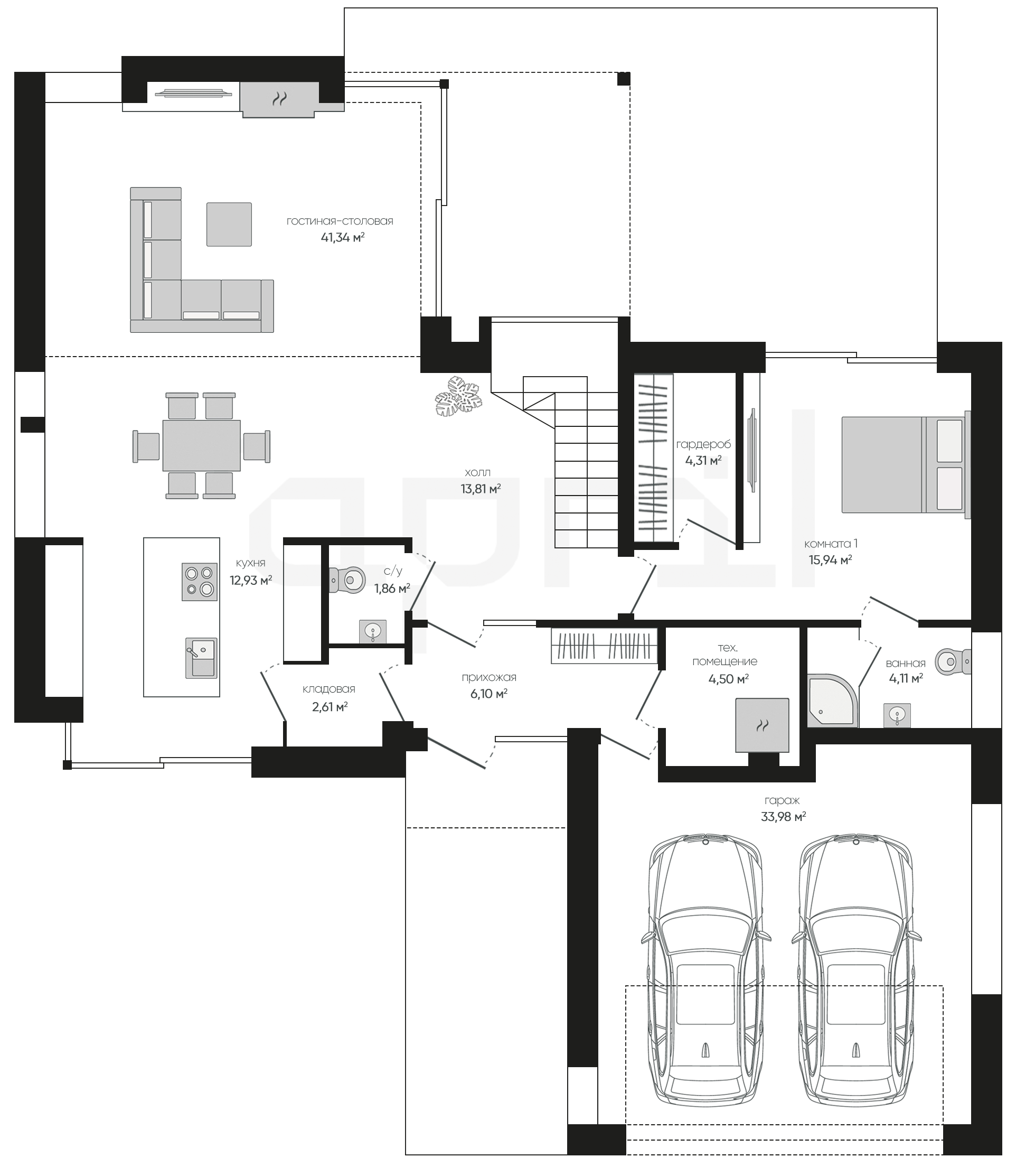
Прихожая
6,10 м²
Холл
13,81 м²
Гостиная-столовая
41,34 м²
Кухня
12,93 м²
Кладовая
2,61 м²
С/у
1,86 м²
Комната 1
15,94 м²
1 этаж
2 этаж
все характеристики
жилой дом
Общая площадь
216.26 м²
1 Этаж площадь
141,49 м²
Прихожая
6,10 м²
Холл
13,81 м²
Гостиная-столовая
41,34 м²
Кухня
12,93 м²
Кладовая
2,61 м²
С/у
1,86 м²
Комната 1
15,94 м²
Ванная
4,11 м²
Гардероб
4,31 м²
Техническое помещение
4,50 м²
Гараж
33,98 м²
2 Этаж площадь
74,77 м²
Холл
12,82 м² (2 эт.)
Антресоль
9,68 м² (2 эт.)
Комната 2
13,49 м² (2 эт.)
Комната 3
13,88 м² (2 эт.)
Ванная
7,23 м² (2 эт.)
Комната 4
17,67 м² (2 эт.)
планировка
все характеристики
все характеристики
жилой дом
Общая площадь
216.26 м²
1 Этаж площадь
141,49 м²
Прихожая
6,10 м²
Холл
13,81 м²
Гостиная-столовая
41,34 м²
Кухня
12,93 м²
Кладовая
2,61 м²
С/у
1,86 м²
Комната 1
15,94 м²
Ванная
4,11 м²
Гардероб
4,31 м²
Техническое помещение
4,50 м²
Гараж
33,98 м²
2 Этаж площадь
74,77 м²
Холл
12,82 м² (2 эт.)
Антресоль
9,68 м² (2 эт.)
Комната 2
13,49 м² (2 эт.)
Комната 3
13,88 м² (2 эт.)
Ванная
7,23 м² (2 эт.)
Комната 4
17,67 м² (2 эт.)
экстерьер
гостиная-столовая
Остались вопросы?
Напиши нам.
Наш ведущий инженер свяжется с вами в ближайшее время.
Обязательно к заполнению
Обязательно к заполнению
ДАННЫЕ ПОЛУЧЕНЫ

данные успешно отправлены

Ведущий инженер компании свяжется с вами в ближайшее время.
мы используем файлы cookie
Используя сайт april-dom.ru, Вы соглашаетесь с использованием файлов cookie, которые указаны в Политике обработки Персональных данных.
/projects/a164/