о проекте

Проект воплощает эстетику прогрессивного минимализма в стиле Хайтек. Динамичная композиция из взаимопроникающих кубов разной высоты создает уникальный архитектурный ритм.

ЭТАЖНОСТЬ
2
ПЛОЩАДЬ
355.50 м²
1
этаж
2
этаж
ПАРАМЕТРЫ ПРОЕКТА
355.50 м²
Общая площадь
355.50 м²
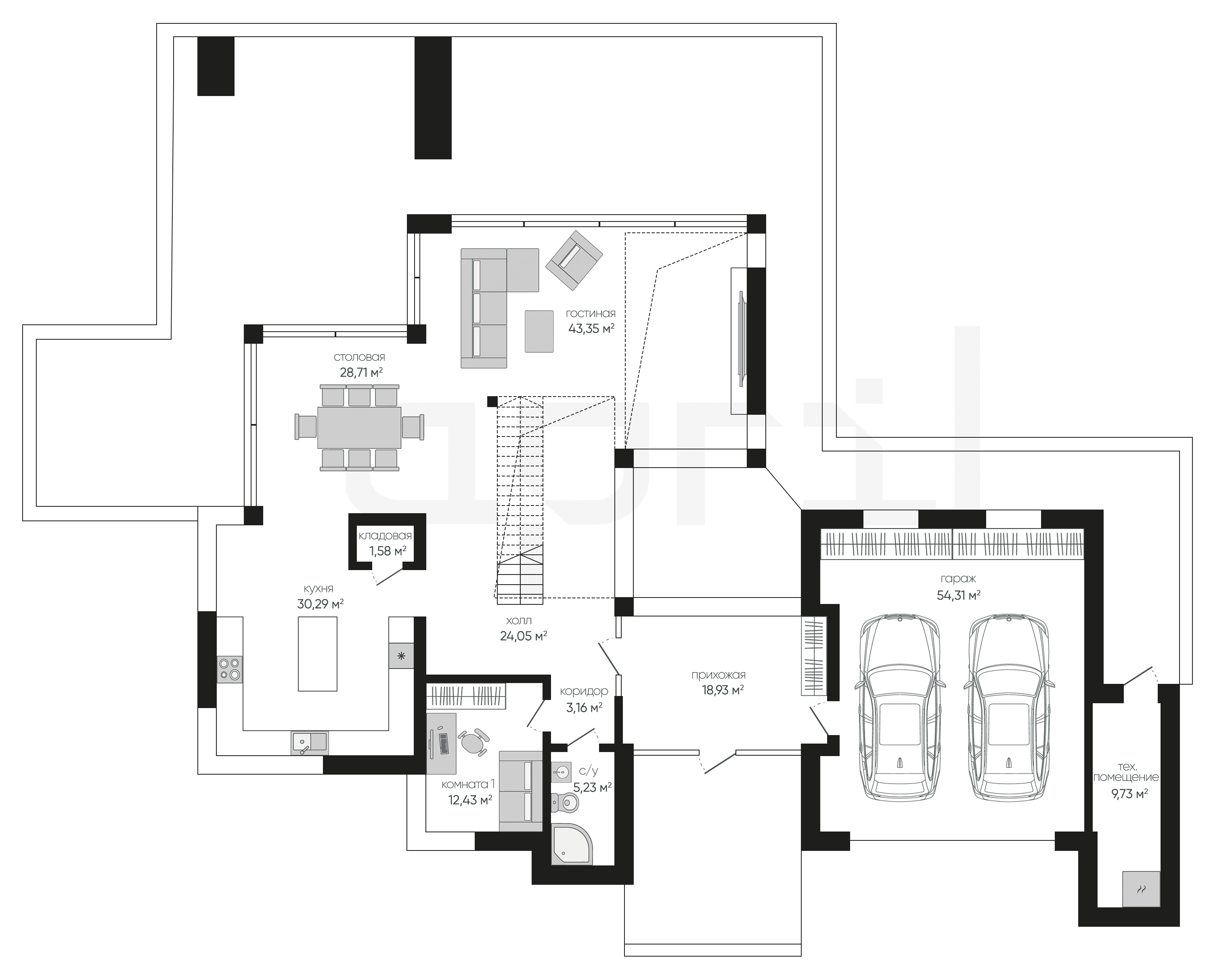
1 Этаж площадь
231,77 м²
Прихожая
18,93 м²
Холл
24,05 м²
Гостиная
43,35 м²
Столовая
28,71 м²
Кухня
30,29 м²
Кладовая
1,58 м²
Коридор
3,16 м²
1 этаж
2 этаж
все характеристики
жилой дом
Общая площадь
355.50 м²
1 Этаж площадь
231,77 м²
Прихожая
18,93 м²
Холл
24,05 м²
Гостиная
43,35 м²
Столовая
28,71 м²
Кухня
30,29 м²
Кладовая
1,58 м²
Коридор
3,16 м²
Комната 1
12,43 м²
С/у
5,23 м²
Техническое помещение
9,73 м²
Гараж
54,31 м²
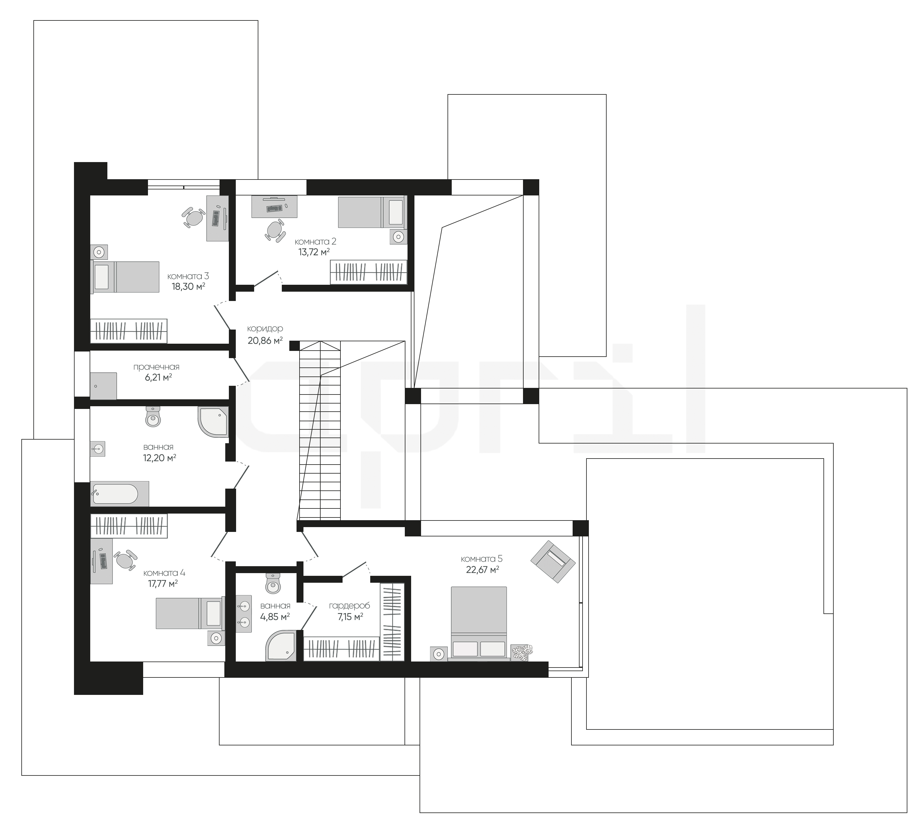
2 Этаж площадь
123,73 м²
Коридор
20,86 м² (2 эт.)
Комната 2
13,72 м² (2 эт.)
Комната 3
18,30 м² (2 эт.)
Прачечная
6,21 м² (2 эт.)
Ванная
12,20 м² (2 эт.)
Комната 4
17,77 м² (2 эт.)
Комната 5
22,67 м² (2 эт.)
Гардероб
7,15 м² (2 эт.)
Ванная
4,85 м² (2 эт.)
планировка
все характеристики
все характеристики
жилой дом
Общая площадь
355.50 м²
1 Этаж площадь
231,77 м²
Прихожая
18,93 м²
Холл
24,05 м²
Гостиная
43,35 м²
Столовая
28,71 м²
Кухня
30,29 м²
Кладовая
1,58 м²
Коридор
3,16 м²
Комната 1
12,43 м²
С/у
5,23 м²
Техническое помещение
9,73 м²
Гараж
54,31 м²
2 Этаж площадь
123,73 м²
Коридор
20,86 м² (2 эт.)
Комната 2
13,72 м² (2 эт.)
Комната 3
18,30 м² (2 эт.)
Прачечная
6,21 м² (2 эт.)
Ванная
12,20 м² (2 эт.)
Комната 4
17,77 м² (2 эт.)
Комната 5
22,67 м² (2 эт.)
Гардероб
7,15 м² (2 эт.)
Ванная
4,85 м² (2 эт.)
экстерьер
Остались вопросы?
Напиши нам.
Наш ведущий инженер свяжется с вами в ближайшее время.
Обязательно к заполнению
Обязательно к заполнению
ДАННЫЕ ПОЛУЧЕНЫ

данные успешно отправлены

Ведущий инженер компании свяжется с вами в ближайшее время.
мы используем файлы cookie
Используя сайт april-dom.ru, Вы соглашаетесь с использованием файлов cookie, которые указаны в Политике обработки Персональных данных.
/projects/a481/