а468
Проект двухэтажного дома в современном стиле с интегрированным гаражом и террасой.
Плоская крыша придает зданию характерный минималистичный облик и повышает его функциональность.
Фасадное решение строится на контрасте фактур: грубого необработанного бетона и натурального дерева. Вертикальные деревянные рейки улучшают теплотехнические характеристики стен и формируют ритмичный рисунок фасада.
Плоская крыша придает зданию характерный минималистичный облик и повышает его функциональность.
Фасадное решение строится на контрасте фактур: грубого необработанного бетона и натурального дерева. Вертикальные деревянные рейки улучшают теплотехнические характеристики стен и формируют ритмичный рисунок фасада.
о проекте
Проект представляет собой образец современного функционального жилья, где четко разделены общественная и приватная зона. Главная особенность проекта — сочетание открытого пространства первого этажа с продуманной системой хранения и отдыха на втором.
ЭТАЖНОСТЬ
2
ПЛОЩАДЬ
368.78 м²
ПАРАМЕТРЫ ПРОЕКТА
368.78 м²
Общая площадь
368.78 м²
1 Этаж площадь
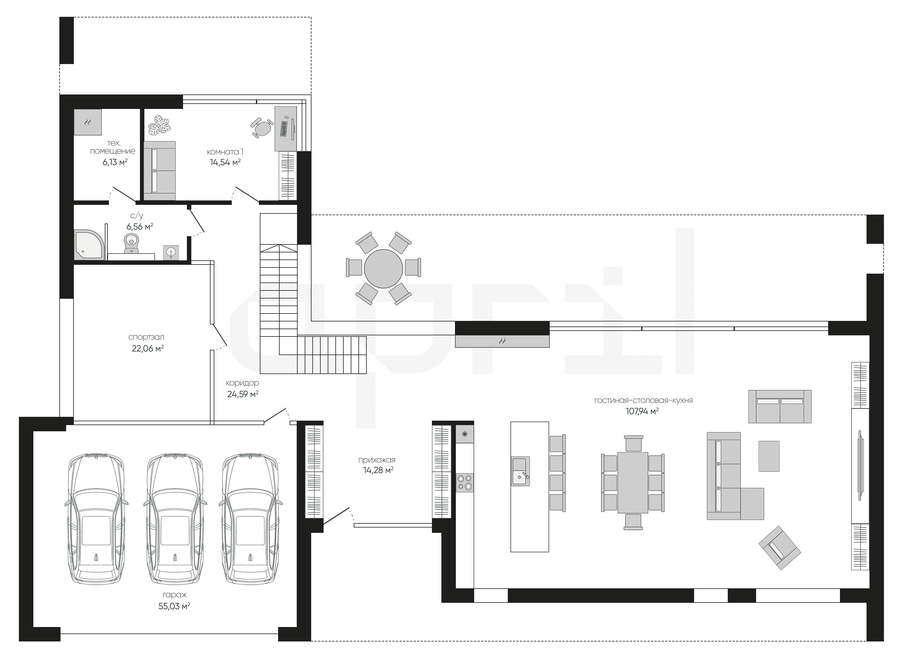
251,13 м²
Прихожая
14,28 м²
Гостиная-столовая-кухня
107,94 м²
Коридор
24,59 м²
Комната 1
14,54 м²
С/у
6,56 м²
Техническое помещение
6,13 м²
Спортзал
22,06 м²
Остались вопросы?
Напиши нам.
Напиши нам.
Наш ведущий инженер свяжется с вами в ближайшее время.
ДАННЫЕ ПОЛУЧЕНЫ
данные успешно отправлены
Ведущий инженер компании свяжется с вами в ближайшее время.
Дома 1 этаж
Дома 2 этажа
Дома 1 этаж с гаражом
Дома 120 м2
Дома 150 м2
Дома 2 этажа с гаражом
Дома 200 м2
Дома 250 м2
Дома 3 этажа
Дома в скандинавском стиле
Дома в стиле райта
Дома в стиле хайтек
Дома до 100 м2
Дома с гаражом
Дома с мансардой
Дома с сауной
Дома 1 этаж с гаражом и террасой
Дома 1 этаж с террасой
Дома в стиле барнхаус
Дома в стиле шале
Дома из газобетона
Дома из газобетона 1 этаж
Дома из камня
Дома из керамических блоков
Дома из кирпича
Дома из пеноблоков
Дома с зимним садом
Дома с подвалом
Дома с террасой
Дома с цокольным этажом
Фахверковые дома
Дома с бассейном