о проекте

Впечатляющая форма и эстетичный внешний фасад делают готовый проект современного дома исключительно привлекательным для современных семей, ценящих комфорт и удобство проживания, а также ощущение простора в интерьере благодаря интересному остеклению.

ЭТАЖНОСТЬ
2
ПЛОЩАДЬ
349.70 м²
1
этаж
2
этаж
ПАРАМЕТРЫ ПРОЕКТА
349.70 м²
Общая площадь
349.70 м²
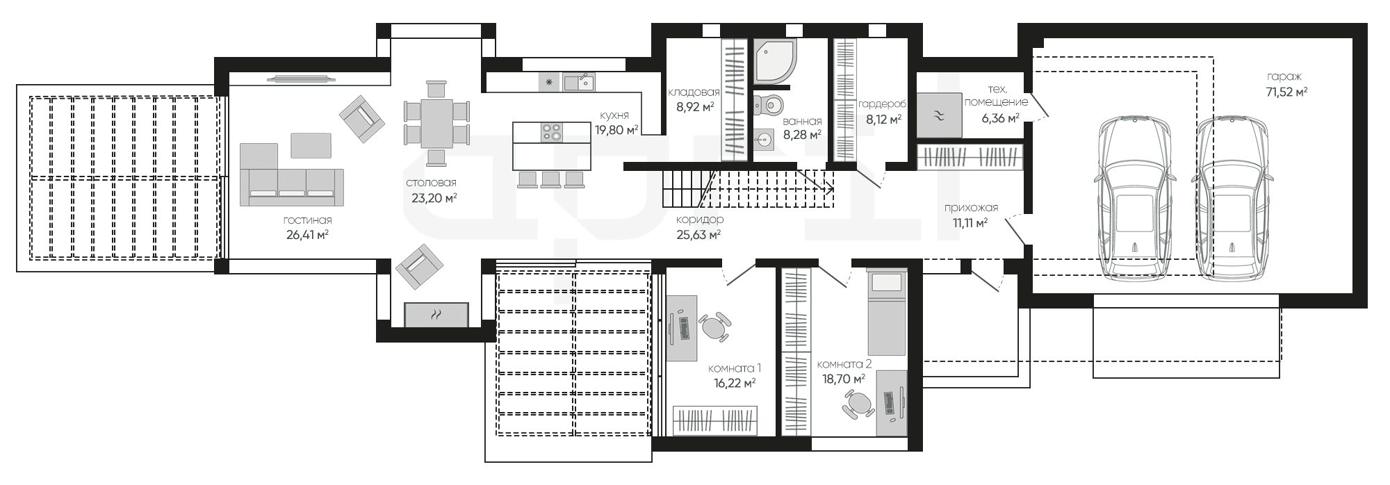
1 Этаж площадь
244,27 м²
Прихожая
11,11 м²
Гардероб
8,12 м²
Ванная
8,28 м²
Коридор
25,63 м²
Гостиная
26,41 м²
Столовая
23,20 м²
Кухня
19,80 м²
1 этаж
2 этаж
все характеристики
жилой дом
Общая площадь
349.70 м²
1 Этаж площадь
244,27 м²
Прихожая
11,11 м²
Гардероб
8,12 м²
Ванная
8,28 м²
Коридор
25,63 м²
Гостиная
26,41 м²
Столовая
23,20 м²
Кухня
19,80 м²
Кладовая
8,92 м²
Комната 1
16,22 м²
Комната 2
18,70 м²
Техническое помещение
6,36 м²
Гараж
71,52 м²
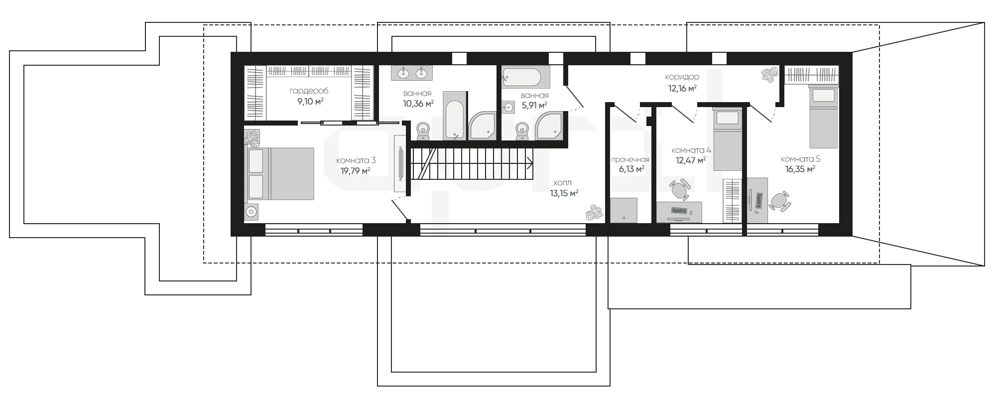
2 Этаж площадь
105,43 м²
Холл
13,15 м² (2 эт.)
Комната 3
19,79 м² (2 эт.)
Гардероб
9,10 м² (2 эт.)
Ванная
10,36 м² (2 эт.)
Ванная
5,91 м² (2 эт.)
Коридор
12,16 м² (2 эт.)
Прачечная
6,13 м² (2 эт.)
Комната 4
12,47 м² (2 эт.)
Комната 5
16,36 м² (2 эт.)
планировка
все характеристики
все характеристики
жилой дом
Общая площадь
349.70 м²
1 Этаж площадь
244,27 м²
Прихожая
11,11 м²
Гардероб
8,12 м²
Ванная
8,28 м²
Коридор
25,63 м²
Гостиная
26,41 м²
Столовая
23,20 м²
Кухня
19,80 м²
Кладовая
8,92 м²
Комната 1
16,22 м²
Комната 2
18,70 м²
Техническое помещение
6,36 м²
Гараж
71,52 м²
2 Этаж площадь
105,43 м²
Холл
13,15 м² (2 эт.)
Комната 3
19,79 м² (2 эт.)
Гардероб
9,10 м² (2 эт.)
Ванная
10,36 м² (2 эт.)
Ванная
5,91 м² (2 эт.)
Коридор
12,16 м² (2 эт.)
Прачечная
6,13 м² (2 эт.)
Комната 4
12,47 м² (2 эт.)
Комната 5
16,36 м² (2 эт.)
экстерьер
Остались вопросы?
Напиши нам.
Наш ведущий инженер свяжется с вами в ближайшее время.
Обязательно к заполнению
Обязательно к заполнению
ДАННЫЕ ПОЛУЧЕНЫ

данные успешно отправлены

Ведущий инженер компании свяжется с вами в ближайшее время.
мы используем файлы cookie
Используя сайт april-dom.ru, Вы соглашаетесь с использованием файлов cookie, которые указаны в Политике обработки Персональных данных.
/projects/a205/