о проекте

Основные преимущества заключаются в обширной жилой площади, продуманной планировке с пятью комнатами, несколькими ванными комнатами и наличием двухместного гаража. Дом предлагает функциональные зоны как для совместного времяпрепровождения, так и для личного пространства, включая возможность выхода на эксплуатируемую крышу над гаражом.

ЭТАЖНОСТЬ
2
ПЛОЩАДЬ
375.21 м²
1
этаж
2
этаж
ПАРАМЕТРЫ ПРОЕКТА
375.21 м²
Общая площадь
375.21 м²
1 Этаж площадь
230,70 м²
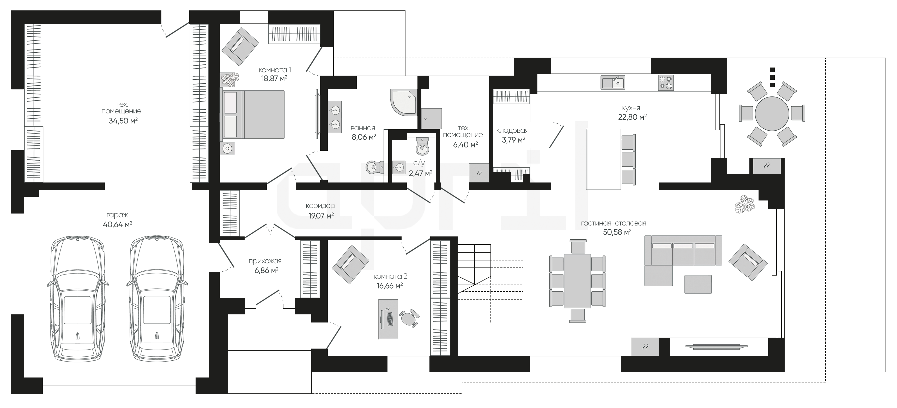
Прихожая
6,86 м²
Коридор
19,07 м²
Гостиная-столовая
50,58 м²
Кухня
22,80 м²
Кладовая
3,79 м²
Техническое помещение
6,40 м²
С/у
2,47 м²
1 этаж
2 этаж
все характеристики
жилой дом
Общая площадь
375.21 м²
1 Этаж площадь
230,70 м²
Прихожая
6,86 м²
Коридор
19,07 м²
Гостиная-столовая
50,58 м²
Кухня
22,80 м²
Кладовая
3,79 м²
Техническое помещение
6,40 м²
С/у
2,47 м²
Комната 1
18,87 м²
Ванная
8,06 м²
Комната 2
16,66 м²
Техническое помещение
34,50 м²
Гараж
40,64 м²
2 Этаж площадь
144,51 м²
Холл
34,63 м² (2 эт.)
Комната 3
20,14 м² (2 эт.)
Гардероб
4,54 м² (2 эт.)
Комната 4
20,44 м² (2 эт.)
Гардероб
4,72 м² (2 эт.)
Ванная
9,08 м² (2 эт.)
Комната 5
27,07 м² (2 эт.)
Гардероб
9,81 м² (2 эт.)
Ванная
14,08 м² (2 эт.)
планировка
все характеристики
все характеристики
жилой дом
Общая площадь
375.21 м²
1 Этаж площадь
230,70 м²
Прихожая
6,86 м²
Коридор
19,07 м²
Гостиная-столовая
50,58 м²
Кухня
22,80 м²
Кладовая
3,79 м²
Техническое помещение
6,40 м²
С/у
2,47 м²
Комната 1
18,87 м²
Ванная
8,06 м²
Комната 2
16,66 м²
Техническое помещение
34,50 м²
Гараж
40,64 м²
2 Этаж площадь
144,51 м²
Холл
34,63 м² (2 эт.)
Комната 3
20,14 м² (2 эт.)
Гардероб
4,54 м² (2 эт.)
Комната 4
20,44 м² (2 эт.)
Гардероб
4,72 м² (2 эт.)
Ванная
9,08 м² (2 эт.)
Комната 5
27,07 м² (2 эт.)
Гардероб
9,81 м² (2 эт.)
Ванная
14,08 м² (2 эт.)
экстерьер
Остались вопросы?
Напиши нам.
Наш ведущий инженер свяжется с вами в ближайшее время.
Обязательно к заполнению
Обязательно к заполнению
ДАННЫЕ ПОЛУЧЕНЫ

данные успешно отправлены

Ведущий инженер компании свяжется с вами в ближайшее время.
мы используем файлы cookie
Используя сайт april-dom.ru, Вы соглашаетесь с использованием файлов cookie, которые указаны в Политике обработки Персональных данных.
/projects/a437/