а435
Проект современного двухэтажного дома с гаражом и террасой.
Фасад сочетает белую гладкую штукатурку, серую каменную облицовку на первом этаже и деревянные панели на втором этаже, создавая визуальный контраст.
Дизайн дома характеризуется чистыми линиями, большими панорамными окнами и минималистичным дизайном.
Крыша в проекте, с углом наклона 30°, обеспечивает хороший баланс между эффективным отводом осадков и созданием гармоничного современного внешнего вида здания.
Фасад сочетает белую гладкую штукатурку, серую каменную облицовку на первом этаже и деревянные панели на втором этаже, создавая визуальный контраст.
Дизайн дома характеризуется чистыми линиями, большими панорамными окнами и минималистичным дизайном.
Крыша в проекте, с углом наклона 30°, обеспечивает хороший баланс между эффективным отводом осадков и созданием гармоничного современного внешнего вида здания.
о проекте
Четырехскатная крыша с уклоном 30° встроена в конструкцию, скрывая каркас дома. Это придает дому вид современной виллы с плоской крышей.
ЭТАЖНОСТЬ
2
ПЛОЩАДЬ
210.10 м²
ПАРАМЕТРЫ ПРОЕКТА
210.10 м²
Общая площадь
210.10 м²
1 Этаж площадь
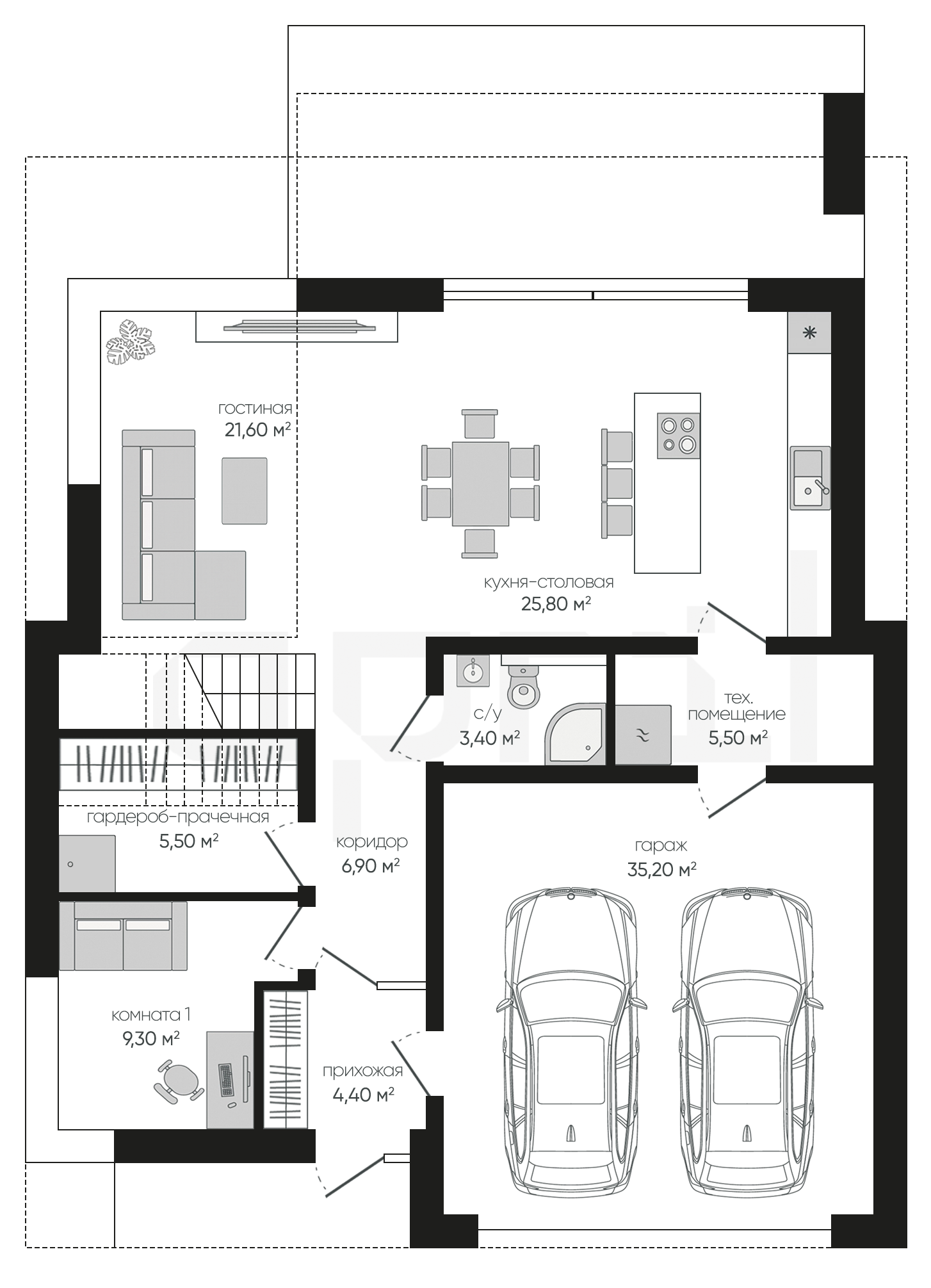
117,60 м²
Прихожая
4,40 м²
Коридор
6,90 м²
С/у
3,40 м²
Гостиная
21,60 м²
Кухня-столовая
25,80 м²
Гардероб-прачечная
5,50 м²
Комната 1
9,30 м²
Остались вопросы?
Напиши нам.
Напиши нам.
Наш ведущий инженер свяжется с вами в ближайшее время.
ДАННЫЕ ПОЛУЧЕНЫ
данные успешно отправлены
Ведущий инженер компании свяжется с вами в ближайшее время.
Дома 1 этаж
Дома 2 этажа
Дома 1 этаж с гаражом
Дома 120 м2
Дома 150 м2
Дома 2 этажа с гаражом
Дома 200 м2
Дома 250 м2
Дома 3 этажа
Дома в скандинавском стиле
Дома в стиле райта
Дома в стиле хайтек
Дома до 100 м2
Дома с гаражом
Дома с мансардой
Дома с сауной
Дома 1 этаж с гаражом и террасой
Дома 1 этаж с террасой
Дома в стиле барнхаус
Дома в стиле шале
Дома из газобетона
Дома из газобетона 1 этаж
Дома из камня
Дома из керамических блоков
Дома из кирпича
Дома из пеноблоков
Дома с зимним садом
Дома с подвалом
Дома с террасой
Дома с цокольным этажом
Фахверковые дома
Дома с бассейном