а425
Проект современного двухэтажного дома с гаражом и террасой.
Внешняя отделка фасада сочетает несколько материалов: светлые прямоугольные панели, серую штукатурку, а также вставки из натурального дерева. Такое сочетание создает контраст и подчеркивает горизонтальные и вертикальные линии здания.
Большое остекление является одной из примечательных особенностей. Оно не только создает привлекательный внешний вид, но и способствует естественному освещению внутренних помещений.
Внешняя отделка фасада сочетает несколько материалов: светлые прямоугольные панели, серую штукатурку, а также вставки из натурального дерева. Такое сочетание создает контраст и подчеркивает горизонтальные и вертикальные линии здания.
Большое остекление является одной из примечательных особенностей. Оно не только создает привлекательный внешний вид, но и способствует естественному освещению внутренних помещений.
о проекте
Дизайн дома выполнен в современном стиле Хайтек с элементами минимализма. Он характеризуется строгими геометрическими формами, плоской крышей и сочетанием различных материалов отделки.
ЭТАЖНОСТЬ
2
ПЛОЩАДЬ
207.34 м²
ПАРАМЕТРЫ ПРОЕКТА
207.34 м²
Общая площадь
207.34 м²
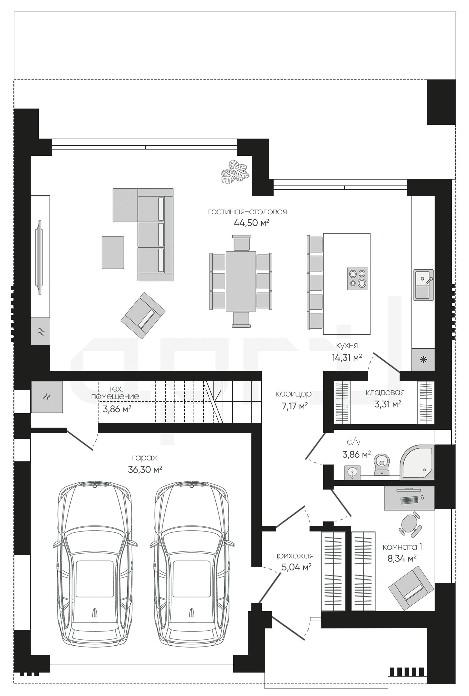
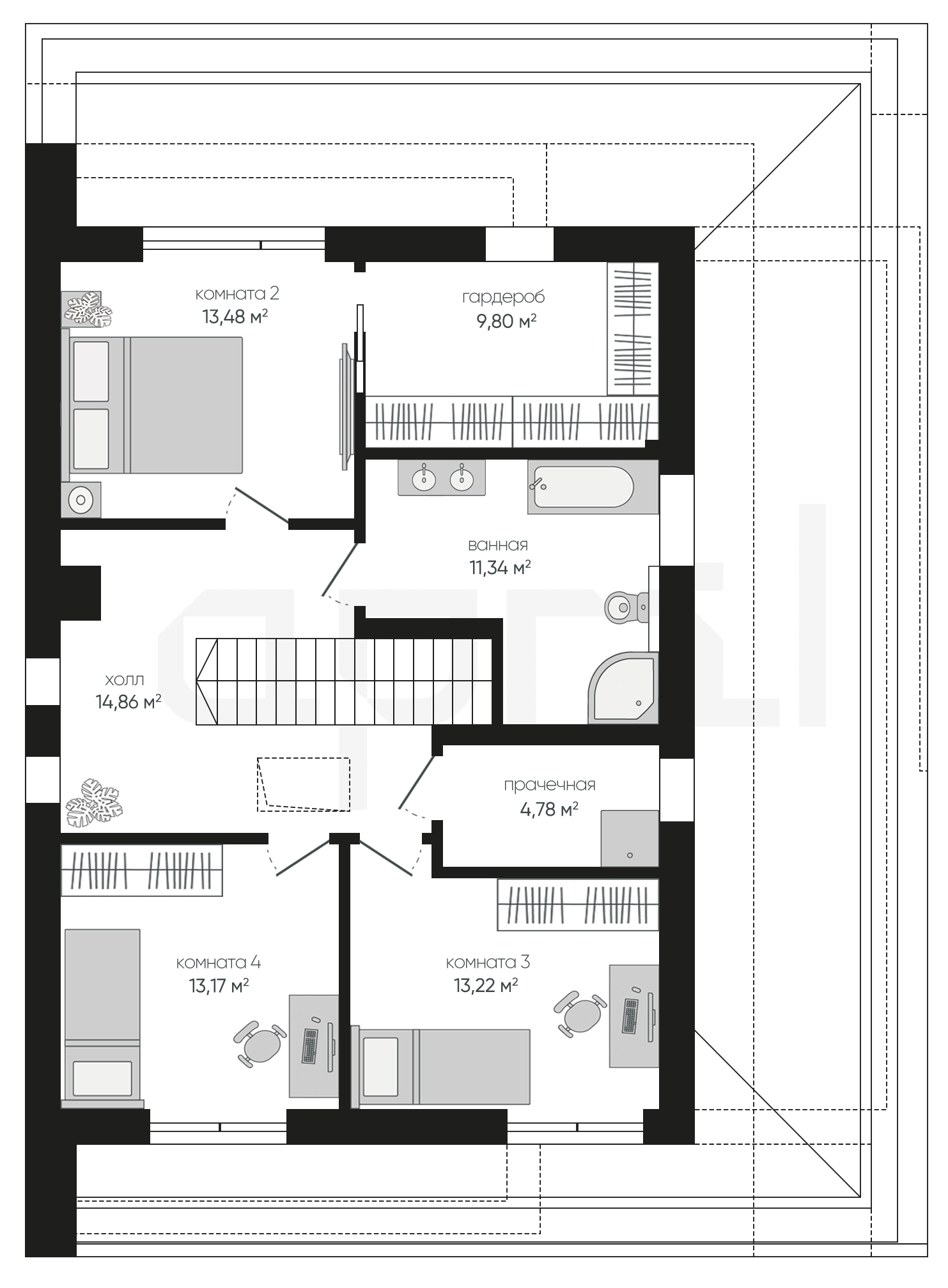
1 Этаж площадь
126,69 м²
Прихожая
5,04 м²
Коридор
7,17 м²
Гостиная-столовая
44,50 м²
Кухня
14,31 м²
Кладовая
3,31 м²
С/у
3,86 м²
Комната 1
8,34 м²
Остались вопросы?
Напиши нам.
Напиши нам.
Наш ведущий инженер свяжется с вами в ближайшее время.
ДАННЫЕ ПОЛУЧЕНЫ
данные успешно отправлены
Ведущий инженер компании свяжется с вами в ближайшее время.
Дома 1 этаж
Дома 2 этажа
Дома 1 этаж с гаражом
Дома 120 м2
Дома 150 м2
Дома 2 этажа с гаражом
Дома 200 м2
Дома 250 м2
Дома 3 этажа
Дома в скандинавском стиле
Дома в стиле райта
Дома в стиле хайтек
Дома до 100 м2
Дома с гаражом
Дома с мансардой
Дома с сауной
Дома 1 этаж с гаражом и террасой
Дома 1 этаж с террасой
Дома в стиле барнхаус
Дома в стиле шале
Дома из газобетона
Дома из газобетона 1 этаж
Дома из камня
Дома из керамических блоков
Дома из кирпича
Дома из пеноблоков
Дома с зимним садом
Дома с подвалом
Дома с террасой
Дома с цокольным этажом
Фахверковые дома
Дома с бассейном