о проекте

Проект с современной архитектурой, подходит для тех кто уделяет особое внимание комфорту и открыт для современных решений в дизайне.

ЭТАЖНОСТЬ
1
ПЛОЩАДЬ
195.47 м²
1
этаж
ПАРАМЕТРЫ ПРОЕКТА
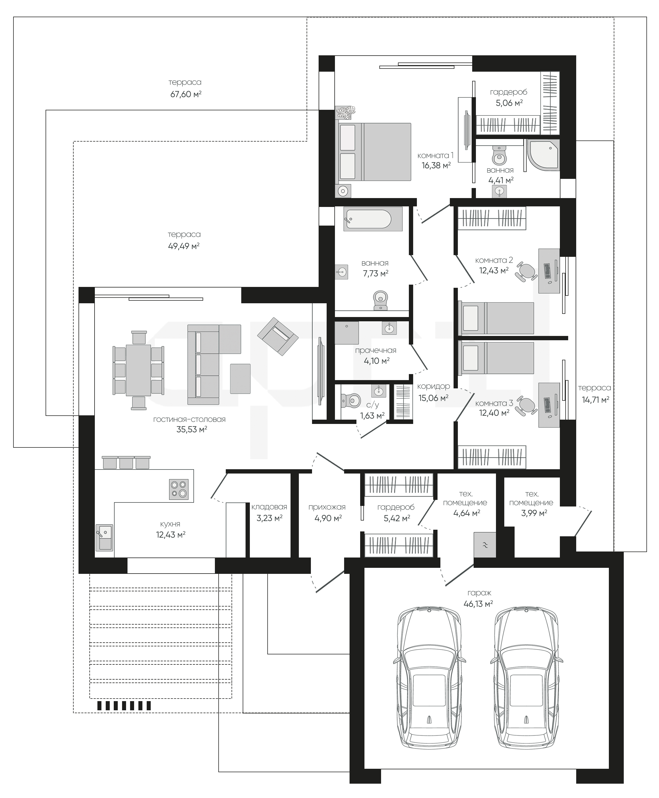
195.47 м²
Общая площадь
195.47 м²
Прихожая
4,90 м²
Гардероб
5,42 м²
Гостиная-столовая
35,53 м²
Кухня
12,43 м²
Кладовая
3,23 м²
С/у
1,63 м²
Коридор
15,06 м²
Прачечная
4,10 м²
1 этаж
все характеристики
жилой дом
Общая площадь
195.47 м²
Прихожая
4,90 м²
Гардероб
5,42 м²
Гостиная-столовая
35,53 м²
Кухня
12,43 м²
Кладовая
3,23 м²
С/у
1,63 м²
Коридор
15,06 м²
Прачечная
4,10 м²
Ванная
7,73 м²
Комната 1
16,38 м²
Гардероб
5,06 м²
Ванная
4,41 м²
Комната 2
12,43 м²
Комната 3
12,40 м²
Техническое помещение
4,64 м²
Техническое помещение
3,99 м²
Гараж
46,13 м²
Терраса
14,71 м²
Терраса
49,49 м²
Терраса
67,60 м²
планировка
все характеристики
все характеристики
жилой дом
Общая площадь
195.47 м²
Прихожая
4,90 м²
Гардероб
5,42 м²
Гостиная-столовая
35,53 м²
Кухня
12,43 м²
Кладовая
3,23 м²
С/у
1,63 м²
Коридор
15,06 м²
Прачечная
4,10 м²
Ванная
7,73 м²
Комната 1
16,38 м²
Гардероб
5,06 м²
Ванная
4,41 м²
Комната 2
12,43 м²
Комната 3
12,40 м²
Техническое помещение
4,64 м²
Техническое помещение
3,99 м²
Гараж
46,13 м²
Терраса
14,71 м²
Терраса
49,49 м²
Терраса
67,60 м²
экстерьер
Остались вопросы?
Напиши нам.
Наш ведущий инженер свяжется с вами в ближайшее время.
Обязательно к заполнению
Обязательно к заполнению
ДАННЫЕ ПОЛУЧЕНЫ

данные успешно отправлены

Ведущий инженер компании свяжется с вами в ближайшее время.
мы используем файлы cookie
Используя сайт april-dom.ru, Вы соглашаетесь с использованием файлов cookie, которые указаны в Политике обработки Персональных данных.
/projects/a356/