о проекте

Интегрированный в конструкцию дома навес обеспечивает парковочное место для двух машин, являясь при этом частью архитектурного решения.

ЭТАЖНОСТЬ
2
ПЛОЩАДЬ
138.35 м²
1
этаж
2
этаж
ПАРАМЕТРЫ ПРОЕКТА
138.35 м²
Общая площадь
138.35 м²
1 Этаж площадь
55 м²
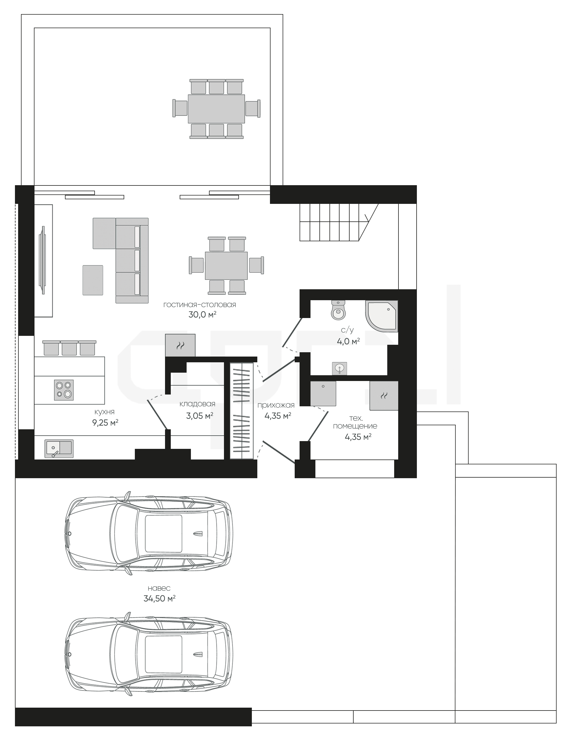
Прихожая
4,35 м²
Гостиная-столовая
30 м²
Кухня
9,25 м²
Кладовая
3,05 м²
С/у
4 м²
Техническое помещение
4,35 м²
Навес
34,50 м²
1 этаж
2 этаж
все характеристики
жилой дом
Общая площадь
138.35 м²
1 Этаж площадь
55 м²
Прихожая
4,35 м²
Гостиная-столовая
30 м²
Кухня
9,25 м²
Кладовая
3,05 м²
С/у
4 м²
Техническое помещение
4,35 м²
Навес
34,50 м²
2 Этаж площадь
83,35 м²
Холл
13,90 м² (2 эт.)
Комната 1
15,75 м² (2 эт.)
Ванная
8,10 м² (2 эт.)
Комната 2
17,45 м² (2 эт.)
Ванная
6,60 м² (2 эт.)
Гардероб
5,60 м² (2 эт.)
Комната 3
15,95 м² (2 эт.)
планировка
все характеристики
все характеристики
жилой дом
Общая площадь
138.35 м²
1 Этаж площадь
55 м²
Прихожая
4,35 м²
Гостиная-столовая
30 м²
Кухня
9,25 м²
Кладовая
3,05 м²
С/у
4 м²
Техническое помещение
4,35 м²
Навес
34,50 м²
2 Этаж площадь
83,35 м²
Холл
13,90 м² (2 эт.)
Комната 1
15,75 м² (2 эт.)
Ванная
8,10 м² (2 эт.)
Комната 2
17,45 м² (2 эт.)
Ванная
6,60 м² (2 эт.)
Гардероб
5,60 м² (2 эт.)
Комната 3
15,95 м² (2 эт.)
экстерьер
Остались вопросы?
Напиши нам.
Наш ведущий инженер свяжется с вами в ближайшее время.
Обязательно к заполнению
Обязательно к заполнению
ДАННЫЕ ПОЛУЧЕНЫ

данные успешно отправлены

Ведущий инженер компании свяжется с вами в ближайшее время.
мы используем файлы cookie
Используя сайт april-dom.ru, Вы соглашаетесь с использованием файлов cookie, которые указаны в Политике обработки Персональных данных.
/projects/a429/