о проекте

Дом можно расположить на небольшом участке, а его простая конструкция и несложная крыша, несомненно, снизят затраты на строительство и последующую эксплуатацию.

ЭТАЖНОСТЬ
1
ПЛОЩАДЬ
122.88 м²
1
этаж
2
этаж
ПАРАМЕТРЫ ПРОЕКТА
122.88 м²
Общая площадь
122.88 м²
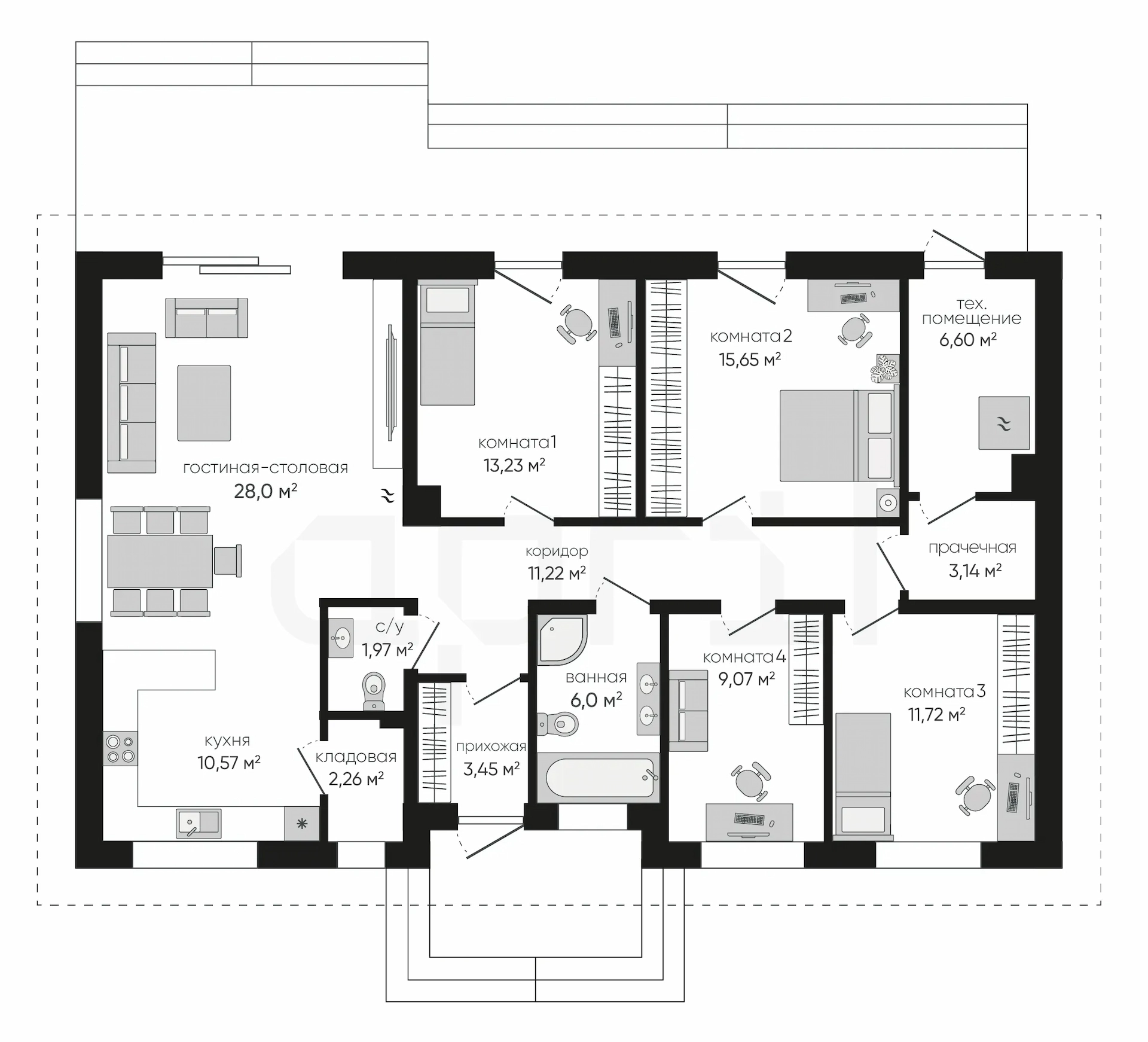
Прихожая
3,45 м²
Коридор
11,22 м²
Гостиная+столовая
28 м²
Кухня
10,57 м²
Кладовая
2,26 м²
С/у
1,97 м²
Комната 1
13,23 м²
Комната 2
15,65 м²
1 этаж
2 этаж
все характеристики
жилой дом
Общая площадь
122.88 м²
Прихожая
3,45 м²
Коридор
11,22 м²
Гостиная+столовая
28 м²
Кухня
10,57 м²
Кладовая
2,26 м²
С/у
1,97 м²
Комната 1
13,23 м²
Комната 2
15,65 м²
Техническое помещение
6,60 м²
Прачечная
3,14 м²
Комната 3
11,72 м²
Комната 4
9,07 м²
Ванная комната
6 м²
Чердак
53,45 м²
планировка
все характеристики
все характеристики
жилой дом
Общая площадь
122.88 м²
Прихожая
3,45 м²
Коридор
11,22 м²
Гостиная+столовая
28 м²
Кухня
10,57 м²
Кладовая
2,26 м²
С/у
1,97 м²
Комната 1
13,23 м²
Комната 2
15,65 м²
Техническое помещение
6,60 м²
Прачечная
3,14 м²
Комната 3
11,72 м²
Комната 4
9,07 м²
Ванная комната
6 м²
Чердак
53,45 м²
экстерьер
Остались вопросы?
Напиши нам.
Наш ведущий инженер свяжется с вами в ближайшее время.
Обязательно к заполнению
Обязательно к заполнению
ДАННЫЕ ПОЛУЧЕНЫ

данные успешно отправлены

Ведущий инженер компании свяжется с вами в ближайшее время.
мы используем файлы cookie
Используя сайт april-dom.ru, Вы соглашаетесь с использованием файлов cookie, которые указаны в Политике обработки Персональных данных.
/projects/a14/