а319
Проект современного дома с мансардным этажом, двускатной крышей и террасой.
Верхняя часть дома облицована темным кирпичом, что создает контраст с белой отделкой нижней части с добавлением деревянных панелей. Крыша дома двускатная с мансардными окнами, что позволяет проникать большему количеству света на второй этаж.
Окна на фасадах большие с современными рамами, что подчеркивает стиль дома.
Верхняя часть дома облицована темным кирпичом, что создает контраст с белой отделкой нижней части с добавлением деревянных панелей. Крыша дома двускатная с мансардными окнами, что позволяет проникать большему количеству света на второй этаж.
Окна на фасадах большие с современными рамами, что подчеркивает стиль дома.
о проекте
Двускатная крыша без карнизов в сочетании с минималистичным и элегантным фасадом повышают эстетическую ценность здания, а многочисленные остекления гарантируют обильное естественное освещение.
ЭТАЖНОСТЬ
2
ПЛОЩАДЬ
128.81 м²
ПАРАМЕТРЫ ПРОЕКТА
128.81 м²
Общая площадь
128.81 м²
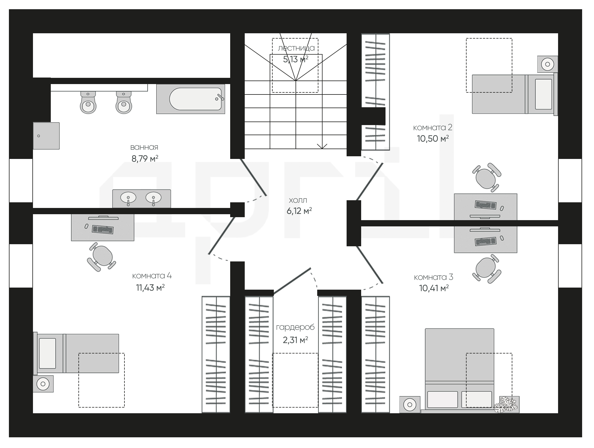
1 Этаж площадь
74,12 м²
Прихожая
2,86 м²
Холл
10,79 м²
Гостиная-столовая
20,60 м²
Кухня
8,22 м²
Кладовая
2,29 м²
Комната 1
13,05 м²
Ванная
6,77 м²
Остались вопросы?
Напиши нам.
Напиши нам.
Наш ведущий инженер свяжется с вами в ближайшее время.
ДАННЫЕ ПОЛУЧЕНЫ
данные успешно отправлены
Ведущий инженер компании свяжется с вами в ближайшее время.
Дома 1 этаж
Дома 2 этажа
Дома 1 этаж с гаражом
Дома 120 м2
Дома 150 м2
Дома 2 этажа с гаражом
Дома 200 м2
Дома 250 м2
Дома 3 этажа
Дома в скандинавском стиле
Дома в стиле райта
Дома в стиле хайтек
Дома до 100 м2
Дома с гаражом
Дома с мансардой
Дома с сауной
Дома 1 этаж с гаражом и террасой
Дома 1 этаж с террасой
Дома в стиле барнхаус
Дома в стиле шале
Дома из газобетона
Дома из газобетона 1 этаж
Дома из камня
Дома из керамических блоков
Дома из кирпича
Дома из пеноблоков
Дома с зимним садом
Дома с подвалом
Дома с террасой
Дома с цокольным этажом
Фахверковые дома
Дома с бассейном