о проекте

Кубическая форма и плоская крыша создают современный и функциональный проект, подходящий для любителей просторных интерьеров и современной архитектуры.

ЭТАЖНОСТЬ
2
ПЛОЩАДЬ
158.32 м²
1
этаж
2
этаж
ПАРАМЕТРЫ ПРОЕКТА
158.32 м²
Общая площадь
158.32 м²
1 Этаж площадь
93,92 м²
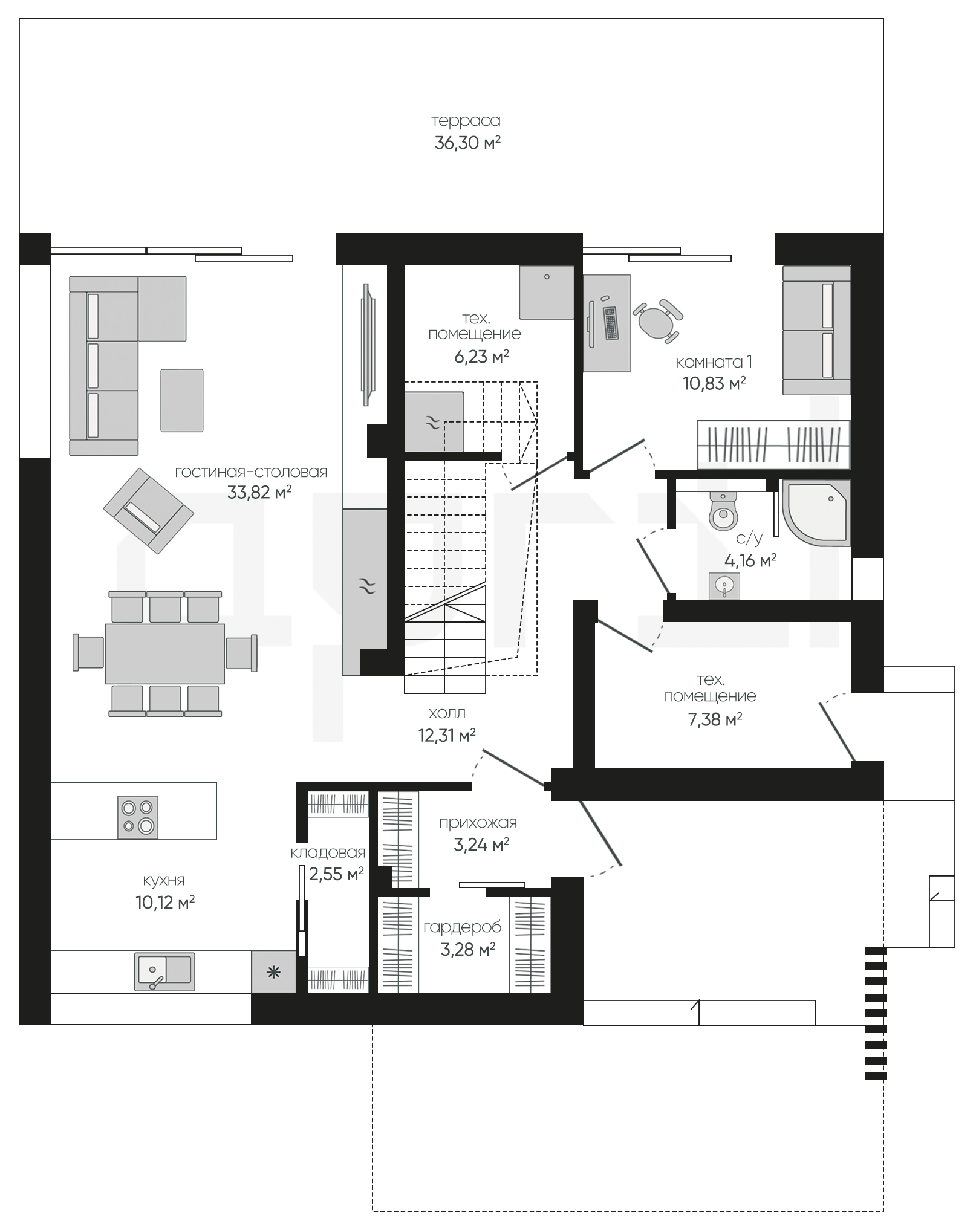
Прихожая
3,24 м²
Гардероб
3,28 м²
Холл
12,31 м²
Гостиная-столовая
33,82 м²
Кухня
10,12 м²
Кладовая
2,55 м²
Комната 1
10,83 м²
1 этаж
2 этаж
все характеристики
жилой дом
Общая площадь
158.32 м²
1 Этаж площадь
93,92 м²
Прихожая
3,24 м²
Гардероб
3,28 м²
Холл
12,31 м²
Гостиная-столовая
33,82 м²
Кухня
10,12 м²
Кладовая
2,55 м²
Комната 1
10,83 м²
С/у
4,16 м²
Техническое помещение
6,23 м²
Техническое помещение
7,38 м²
Терраса
36,30 м²
2 Этаж площадь
64,40 м²
Коридор
16,34 м² (2 эт.)
Комната 2
10,09 м² (2 эт.)
Комната 3
10,50 м² (2 эт.)
Комната 4
14,60 м² (2 эт.)
Ванная
5,19 м² (2 эт.)
Гардероб
2,90 м² (2 эт.)
Ванная
4,78 м² (2 эт.)
Терраса
52,40 м² (2 эт.)
планировка
все характеристики
все характеристики
жилой дом
Общая площадь
158.32 м²
1 Этаж площадь
93,92 м²
Прихожая
3,24 м²
Гардероб
3,28 м²
Холл
12,31 м²
Гостиная-столовая
33,82 м²
Кухня
10,12 м²
Кладовая
2,55 м²
Комната 1
10,83 м²
С/у
4,16 м²
Техническое помещение
6,23 м²
Техническое помещение
7,38 м²
Терраса
36,30 м²
2 Этаж площадь
64,40 м²
Коридор
16,34 м² (2 эт.)
Комната 2
10,09 м² (2 эт.)
Комната 3
10,50 м² (2 эт.)
Комната 4
14,60 м² (2 эт.)
Ванная
5,19 м² (2 эт.)
Гардероб
2,90 м² (2 эт.)
Ванная
4,78 м² (2 эт.)
Терраса
52,40 м² (2 эт.)
экстерьер
гостиная-столовая
спальня
ванная
Остались вопросы?
Напиши нам.
Наш ведущий инженер свяжется с вами в ближайшее время.
Обязательно к заполнению
Обязательно к заполнению
ДАННЫЕ ПОЛУЧЕНЫ

данные успешно отправлены

Ведущий инженер компании свяжется с вами в ближайшее время.
мы используем файлы cookie
Используя сайт april-dom.ru, Вы соглашаетесь с использованием файлов cookie, которые указаны в Политике обработки Персональных данных.
/projects/a361/