а423
Проект современного одноэтажного дома с плоской крышей и террасой.
В отделке фасада сочетаются несколько материалов. Основная часть стен покрыта белой штукатуркой, что придает зданию чистый и современный вид. Нижняя часть фасада облицована натуральным камнем с элементами деревянных панелей.
В отделке фасада сочетаются несколько материалов. Основная часть стен покрыта белой штукатуркой, что придает зданию чистый и современный вид. Нижняя часть фасада облицована натуральным камнем с элементами деревянных панелей.
о проекте
Дом спроектирован в современном стиле Хайтек с использованием элементов минимализма и натуральных материалов. Простая форма дома дополнена бетонными перголами: у входа и над террасой в задней части дома, а также деревянной перголой над боковой террасой.
ЭТАЖНОСТЬ
1
ПЛОЩАДЬ
120.33 м²
ПАРАМЕТРЫ ПРОЕКТА
120.33 м²
Общая площадь
120.33 м²
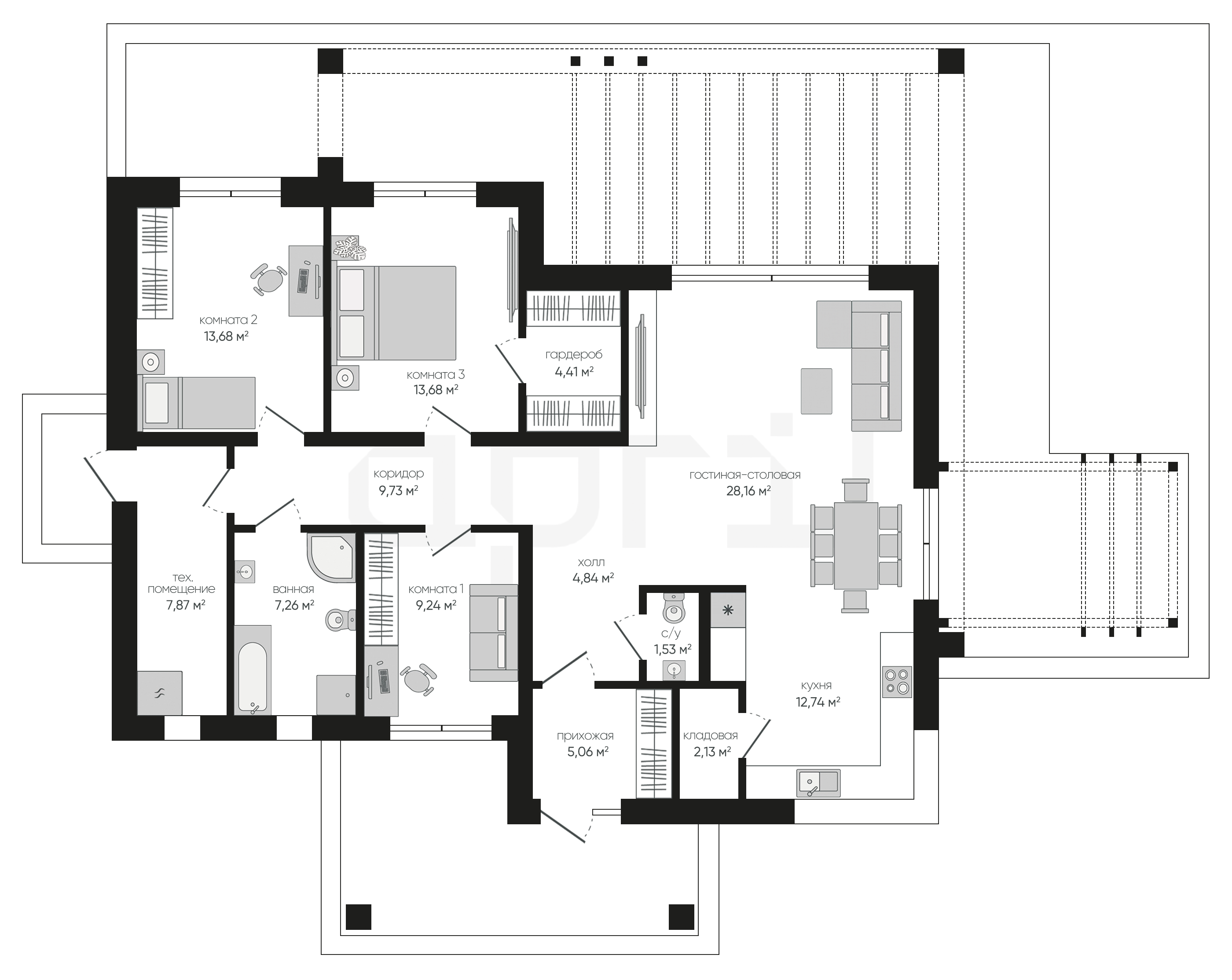
Прихожая
5,06 м²
Холл
4,84 м²
Гостиная-столовая
28,16 м²
Кухня
12,74 м²
Кладовая
2,13 м²
С/у
1,53 м²
Коридор
9,73 м²
Комната 1
9,24 м²
Остались вопросы?
Напиши нам.
Напиши нам.
Наш ведущий инженер свяжется с вами в ближайшее время.
ДАННЫЕ ПОЛУЧЕНЫ
данные успешно отправлены
Ведущий инженер компании свяжется с вами в ближайшее время.
Дома 1 этаж
Дома 2 этажа
Дома 1 этаж с гаражом
Дома 120 м2
Дома 150 м2
Дома 2 этажа с гаражом
Дома 200 м2
Дома 250 м2
Дома 3 этажа
Дома в скандинавском стиле
Дома в стиле райта
Дома в стиле хайтек
Дома до 100 м2
Дома с гаражом
Дома с мансардой
Дома с сауной
Дома 1 этаж с гаражом и террасой
Дома 1 этаж с террасой
Дома в стиле барнхаус
Дома в стиле шале
Дома из газобетона
Дома из газобетона 1 этаж
Дома из камня
Дома из керамических блоков
Дома из кирпича
Дома из пеноблоков
Дома с зимним садом
Дома с подвалом
Дома с террасой
Дома с цокольным этажом
Фахверковые дома
Дома с бассейном