о проекте

Дом спроектирован на двух уровнях, что позволяет функционально разделить помещения и обеспечить максимальный комфорт. Проект впечатляет как своим внешним видом, так и практичной планировкой пространства.

ЭТАЖНОСТЬ
2
ПЛОЩАДЬ
132.92 м²
1
этаж
2
этаж
ПАРАМЕТРЫ ПРОЕКТА
132.92 м²
Общая площадь
132.92 м²
1 Этаж площадь
68,78 м²
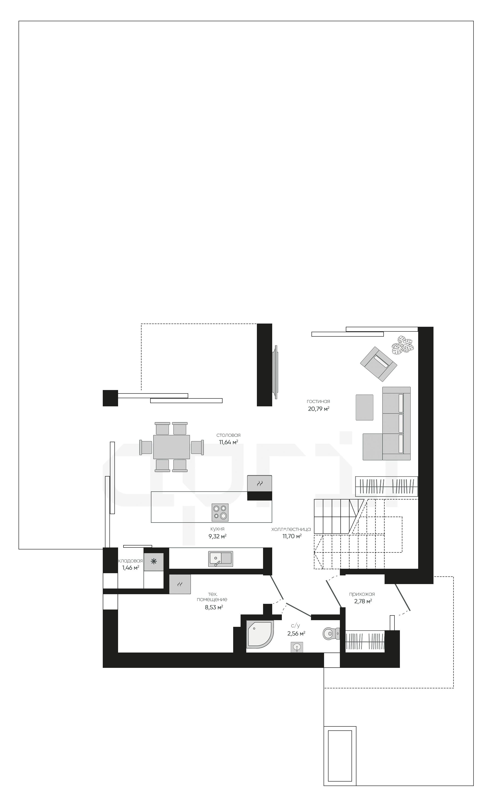
Прихожая
2,78 м²
Холл+лестница
11,70 м²
Гостиная
20,79 м²
Столовая
11,64 м²
Кухня
9,32 м²
Кладовая
1,46 м²
С/у
2,56 м²
1 этаж
2 этаж
все характеристики
жилой дом
Общая площадь
132.92 м²
1 Этаж площадь
68,78 м²
Прихожая
2,78 м²
Холл+лестница
11,70 м²
Гостиная
20,79 м²
Столовая
11,64 м²
Кухня
9,32 м²
Кладовая
1,46 м²
С/у
2,56 м²
Техническое помещение
8,53 м²
2 Этаж площадь
64,14 м²
Коридор
5,79 м² (2 эт.)
Комната 2
21,73 м² (2 эт.)
Комната 3
13,59 м² (2 эт.)
Комната 4
13,76 м² (2 эт.)
С/у
2,28 м² (2 эт.)
Ванная
6,99 м² (2 эт.)
планировка
все характеристики
все характеристики
жилой дом
Общая площадь
132.92 м²
1 Этаж площадь
68,78 м²
Прихожая
2,78 м²
Холл+лестница
11,70 м²
Гостиная
20,79 м²
Столовая
11,64 м²
Кухня
9,32 м²
Кладовая
1,46 м²
С/у
2,56 м²
Техническое помещение
8,53 м²
2 Этаж площадь
64,14 м²
Коридор
5,79 м² (2 эт.)
Комната 2
21,73 м² (2 эт.)
Комната 3
13,59 м² (2 эт.)
Комната 4
13,76 м² (2 эт.)
С/у
2,28 м² (2 эт.)
Ванная
6,99 м² (2 эт.)
экстерьер
Остались вопросы?
Напиши нам.
Наш ведущий инженер свяжется с вами в ближайшее время.
Обязательно к заполнению
Обязательно к заполнению
ДАННЫЕ ПОЛУЧЕНЫ

данные успешно отправлены

Ведущий инженер компании свяжется с вами в ближайшее время.
мы используем файлы cookie
Используя сайт april-dom.ru, Вы соглашаетесь с использованием файлов cookie, которые указаны в Политике обработки Персональных данных.
/projects/a260/