а241
Проест современного дома с мансардой и террасой.
Дизайн привлекает внимание современным стилем, где все элементы, включая мансардные окна, имеют очень современную форму, а во всей цветовой гамме преобладают различные оттенки серого. Стена вокруг входа и под окнами со стороны сада облицована светлой клинкерной плиткой, а фасад покрывает серая силиконовая штукатурка.
Дизайн привлекает внимание современным стилем, где все элементы, включая мансардные окна, имеют очень современную форму, а во всей цветовой гамме преобладают различные оттенки серого. Стена вокруг входа и под окнами со стороны сада облицована светлой клинкерной плиткой, а фасад покрывает серая силиконовая штукатурка.
о проекте
Дом с мансардой сочетает в себе современные элементы дизайна с функциональностью, что делает его удобным и привлекательным для проживания.
ЭТАЖНОСТЬ
2
ПЛОЩАДЬ
144.30 м²
ПАРАМЕТРЫ ПРОЕКТА
144.30 м²
Общая площадь
144.30 м²
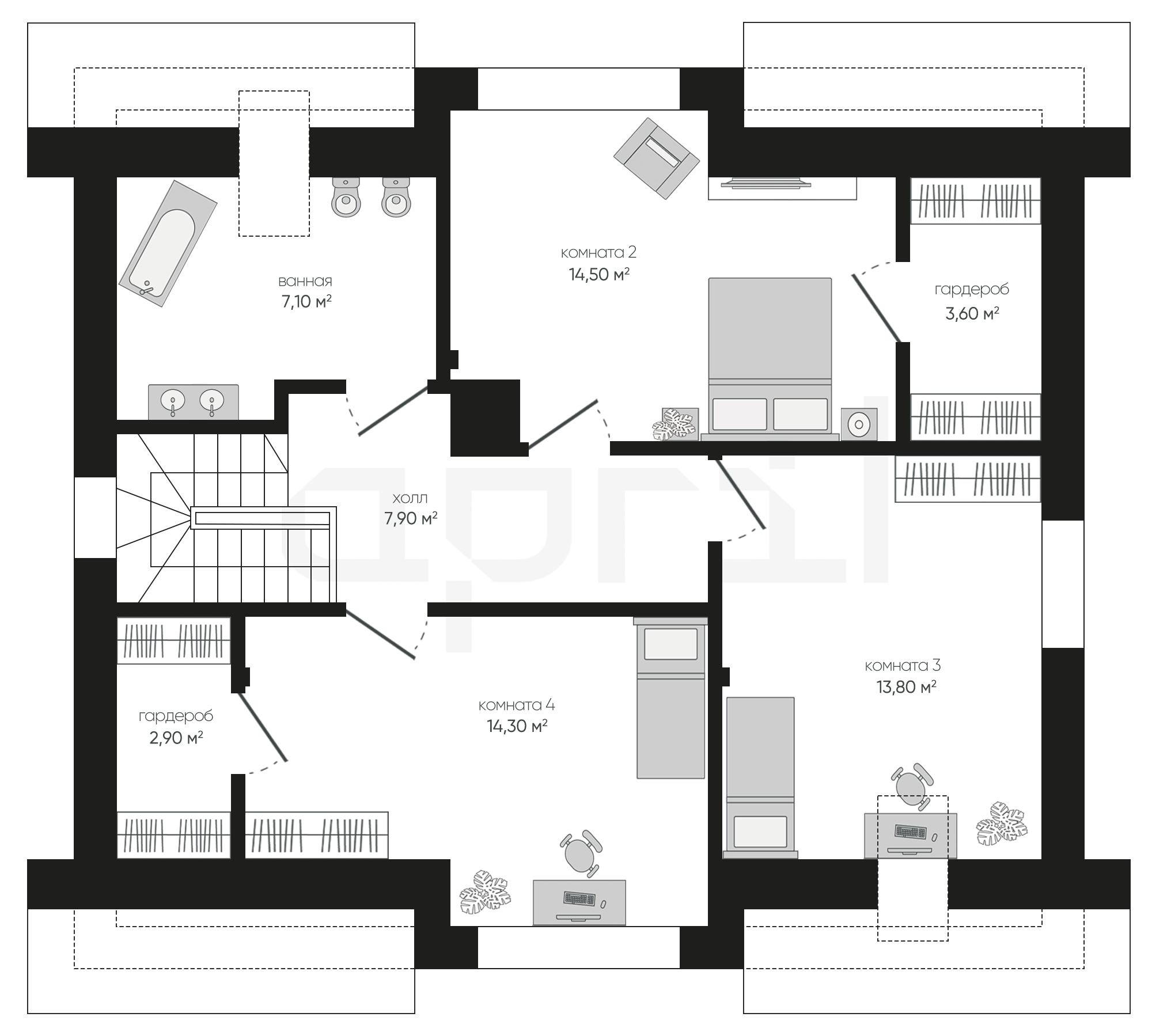
1 Этаж площадь
80,20 м²
Прихожая
4,70 м²
Холл
8,20 м²
Гостиная-столовая
33 м²
Кухня
10,30 м²
Кладовая
1,60 м²
Комната 1
11,20 м²
С/у
3,30 м²
Остались вопросы?
Напиши нам.
Напиши нам.
Наш ведущий инженер свяжется с вами в ближайшее время.
ДАННЫЕ ПОЛУЧЕНЫ
данные успешно отправлены
Ведущий инженер компании свяжется с вами в ближайшее время.
Дома 1 этаж
Дома 2 этажа
Дома 1 этаж с гаражом
Дома 120 м2
Дома 150 м2
Дома 2 этажа с гаражом
Дома 200 м2
Дома 250 м2
Дома 3 этажа
Дома в скандинавском стиле
Дома в стиле райта
Дома в стиле хайтек
Дома до 100 м2
Дома с гаражом
Дома с мансардой
Дома с сауной
Дома 1 этаж с гаражом и террасой
Дома 1 этаж с террасой
Дома в стиле барнхаус
Дома в стиле шале
Дома из газобетона
Дома из газобетона 1 этаж
Дома из камня
Дома из керамических блоков
Дома из кирпича
Дома из пеноблоков
Дома с зимним садом
Дома с подвалом
Дома с террасой
Дома с цокольным этажом
Фахверковые дома
Дома с бассейном