о проекте

Дом обладает современным, минималистичным дизайном и отличается чистыми линиями, сочетанием материалов и функциональным пространством.

ЭТАЖНОСТЬ
2
ПЛОЩАДЬ
225.88 м²
1
этаж
2
этаж
ПАРАМЕТРЫ ПРОЕКТА
225.88 м²
Общая площадь
225.88 м²
1 Этаж площадь
145,17 м²
Прихожая
7,47 м²
Коридор
4,25 м²
Гостиная
33,34 м²
Столовая
11,42 м²
Кухня
12,64 м²
Кладовая
4,13 м²
С/у
2,52 м²
1 этаж
2 этаж
все характеристики
жилой дом
Общая площадь
225.88 м²
1 Этаж площадь
145,17 м²
Прихожая
7,47 м²
Коридор
4,25 м²
Гостиная
33,34 м²
Столовая
11,42 м²
Кухня
12,64 м²
Кладовая
4,13 м²
С/у
2,52 м²
Комната 1
8,20 м²
Прачечная
3,44 м²
Техническое помещение
8,60 м²
Гараж
49,16 м²
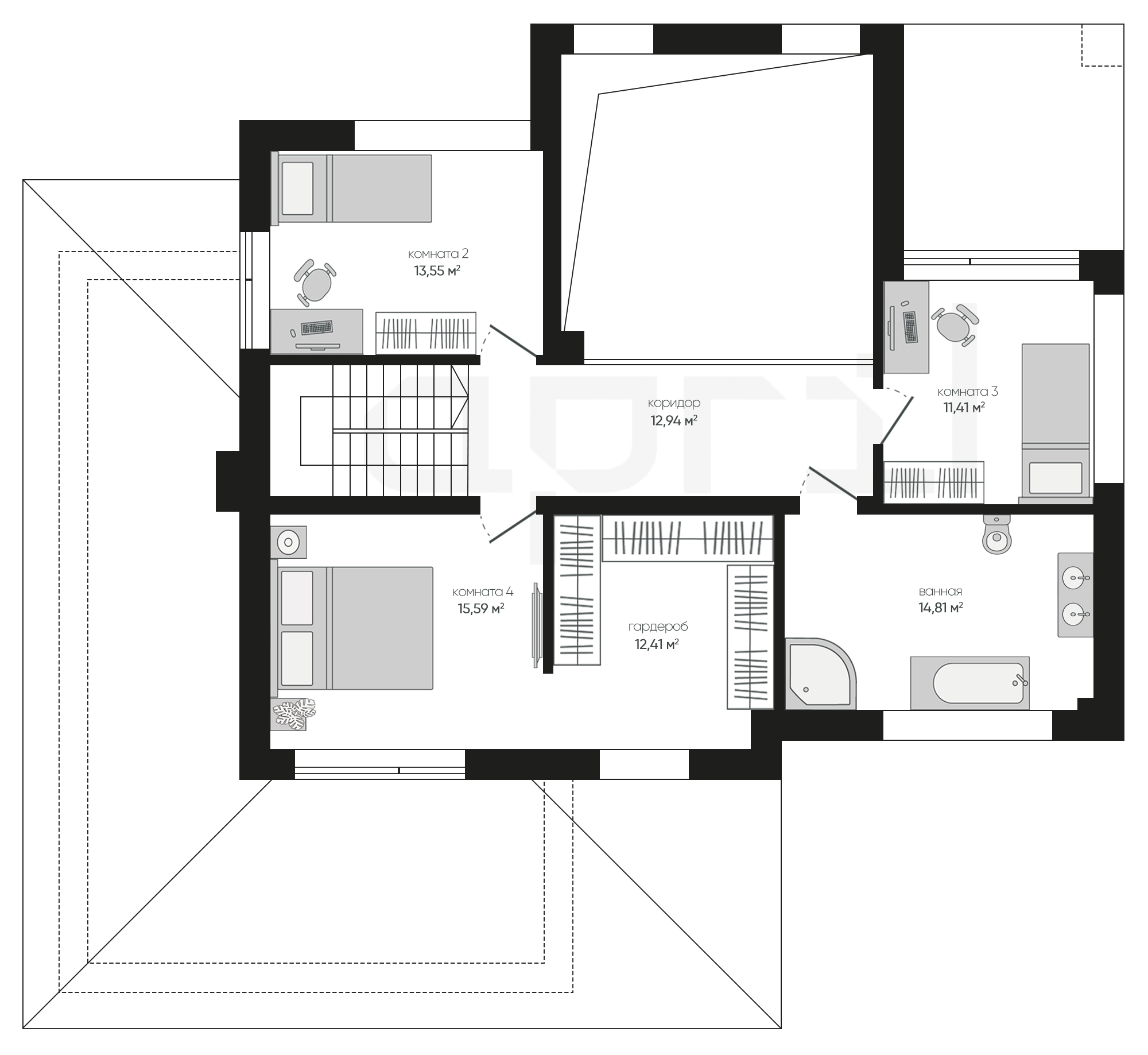
2 Этаж площадь
80,71 м²
Коридор
12,94 м² (2 эт.)
Комната 2
13,55 м² (2 эт.)
Комната 3
11,41 м² (2 эт.)
Ванная
14,81 м² (2 эт.)
Комната 4
15,59 м² (2 эт.)
Гардероб
12,41 м² (2 эт.)
планировка
все характеристики
все характеристики
жилой дом
Общая площадь
225.88 м²
1 Этаж площадь
145,17 м²
Прихожая
7,47 м²
Коридор
4,25 м²
Гостиная
33,34 м²
Столовая
11,42 м²
Кухня
12,64 м²
Кладовая
4,13 м²
С/у
2,52 м²
Комната 1
8,20 м²
Прачечная
3,44 м²
Техническое помещение
8,60 м²
Гараж
49,16 м²
2 Этаж площадь
80,71 м²
Коридор
12,94 м² (2 эт.)
Комната 2
13,55 м² (2 эт.)
Комната 3
11,41 м² (2 эт.)
Ванная
14,81 м² (2 эт.)
Комната 4
15,59 м² (2 эт.)
Гардероб
12,41 м² (2 эт.)
экстерьер
Остались вопросы?
Напиши нам.
Наш ведущий инженер свяжется с вами в ближайшее время.
Обязательно к заполнению
Обязательно к заполнению
ДАННЫЕ ПОЛУЧЕНЫ

данные успешно отправлены

Ведущий инженер компании свяжется с вами в ближайшее время.
мы используем файлы cookie
Используя сайт april-dom.ru, Вы соглашаетесь с использованием файлов cookie, которые указаны в Политике обработки Персональных данных.
/projects/a175/