а301
Проект современного одноэтажного дома с гаражом и террасой.
Современный минимализм дома достигнут благодаря фасадам, отделанным контрастной белой и черной штукатуркой, разнообразной облицовкой в цвете натурального дерева, которая прекрасно сочетается с серым фальцевым металлом.
Стиль дополнительно подчеркивается огромным остеклением в жилой зоне, которое, наряду с отступающим входом, является главным акцентом дома.
Современный минимализм дома достигнут благодаря фасадам, отделанным контрастной белой и черной штукатуркой, разнообразной облицовкой в цвете натурального дерева, которая прекрасно сочетается с серым фальцевым металлом.
Стиль дополнительно подчеркивается огромным остеклением в жилой зоне, которое, наряду с отступающим входом, является главным акцентом дома.
о проекте
В доме основной корпус здания покрыт двускатной крышей, соседствует с простым корпусом гаража и входной зоны, покрытой плоской крышей.
ЭТАЖНОСТЬ
1
ПЛОЩАДЬ
182.98 м²
ПАРАМЕТРЫ ПРОЕКТА
182.98 м²
Общая площадь
182.98 м²
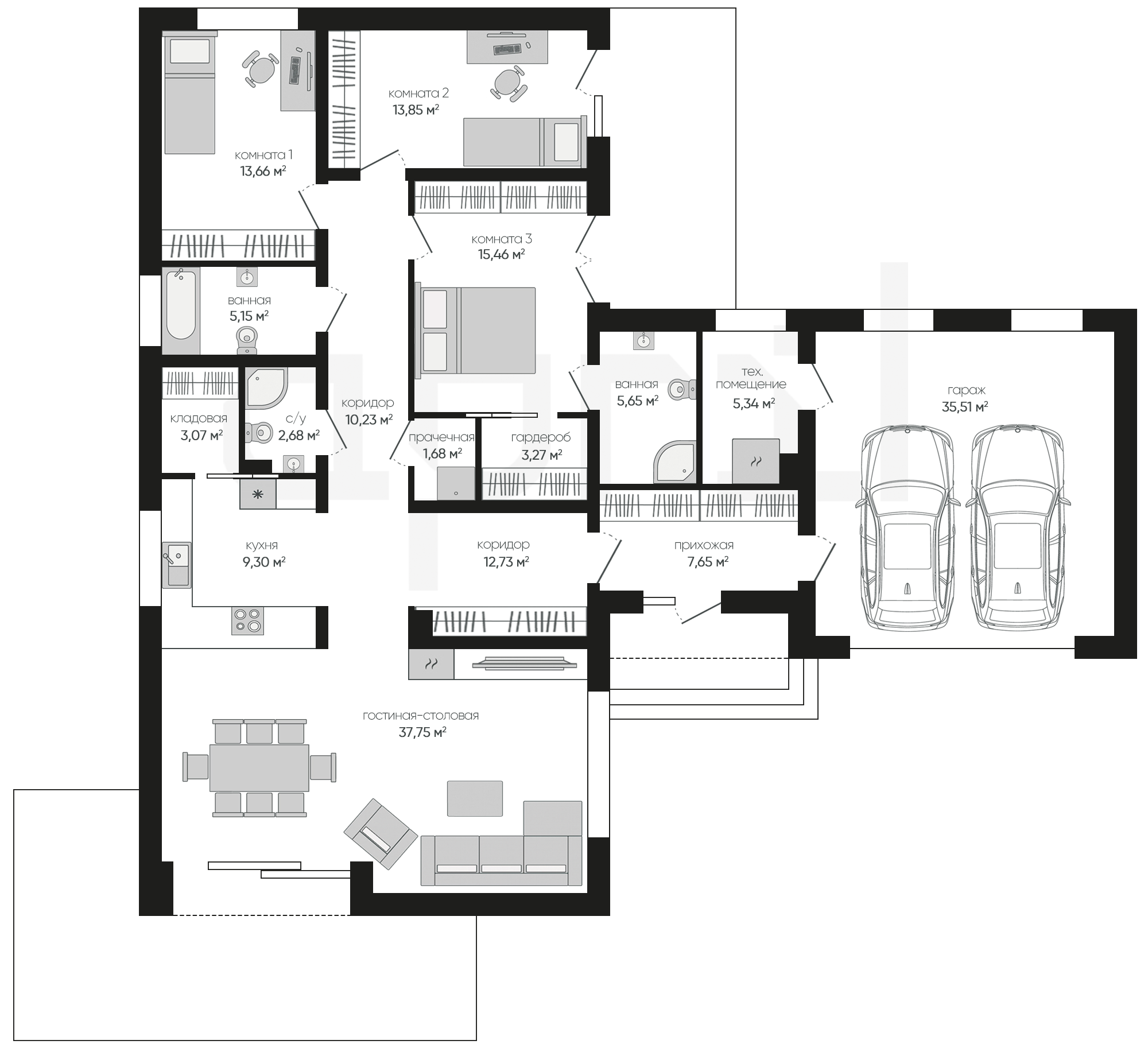
Прихожая
7,65 м²
Коридор
12,73 м²
Гостиная-столовая
37,75 м²
Кухня
9,30 м²
Кладовая
3,07 м²
Коридор
10,23 м²
С/у
2,68 м²
Ванная
5,15 м²
Остались вопросы?
Напиши нам.
Напиши нам.
Наш ведущий инженер свяжется с вами в ближайшее время.
ДАННЫЕ ПОЛУЧЕНЫ
данные успешно отправлены
Ведущий инженер компании свяжется с вами в ближайшее время.
Дома 1 этаж
Дома 2 этажа
Дома 1 этаж с гаражом
Дома 120 м2
Дома 150 м2
Дома 2 этажа с гаражом
Дома 200 м2
Дома 250 м2
Дома 3 этажа
Дома в скандинавском стиле
Дома в стиле райта
Дома в стиле хайтек
Дома до 100 м2
Дома с гаражом
Дома с мансардой
Дома с сауной
Дома 1 этаж с гаражом и террасой
Дома 1 этаж с террасой
Дома в стиле барнхаус
Дома в стиле шале
Дома из газобетона
Дома из газобетона 1 этаж
Дома из камня
Дома из керамических блоков
Дома из кирпича
Дома из пеноблоков
Дома с зимним садом
Дома с подвалом
Дома с террасой
Дома с цокольным этажом
Фахверковые дома
Дома с бассейном