о проекте

Проект двухэтажного дома с современной отделкой в стиле хайтек. В проекте предусмотрен гараж на две машины и большая площадь террасы на первом этаже и на втором.

ЭТАЖНОСТЬ
2
ПЛОЩАДЬ
228.26 м²
1
этаж
2
этаж
ПАРАМЕТРЫ ПРОЕКТА
228.26 м²
Общая площадь
228.26 м²
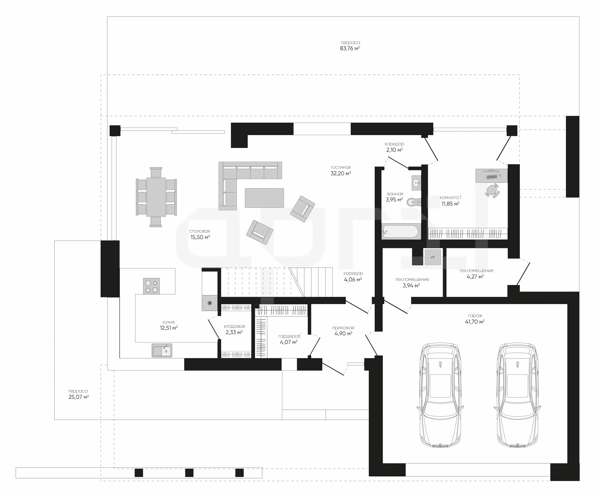
1 Этаж площадь
143,38 м²
Прихожая
4,90 м²
Гардероб
4,07 м²
Коридор
4,06 м²
Гостиная
32,20 м²
Столовая
15,50 м²
Кухня
12,51 м²
Кладовая
2,33 м²
1 этаж
2 этаж
все характеристики
жилой дом
Общая площадь
228.26 м²
1 Этаж площадь
143,38 м²
Прихожая
4,90 м²
Гардероб
4,07 м²
Коридор
4,06 м²
Гостиная
32,20 м²
Столовая
15,50 м²
Кухня
12,51 м²
Кладовая
2,33 м²
Коридор
2,10 м²
Ванная комната
3,95 м²
Комната 1
11,85 м²
Техническое помещение
3,94 м²
Техническое помещение
4,27 м²
Гараж
41,70 м²
Терраса
25,07 м²
Терраса
83,76 м²
2 Этаж площадь
84,88 м²
Коридор
10,69 м² (2 эт.)
Комната 2
16,64 м² (2 эт.)
Ванная комната
4,22 м² (2 эт.)
Прачечная
3,28 м² (2 эт.)
Ванная комната
10,28 м² (2 эт.)
Комната 3
15,32 м² (2 эт.)
Гардероб
6,30 м² (2 эт.)
Комната 4
18,15 м² (2 эт.)
Терраса
72,74 м² (2 эт.)
планировка
все характеристики
все характеристики
жилой дом
Общая площадь
228.26 м²
1 Этаж площадь
143,38 м²
Прихожая
4,90 м²
Гардероб
4,07 м²
Коридор
4,06 м²
Гостиная
32,20 м²
Столовая
15,50 м²
Кухня
12,51 м²
Кладовая
2,33 м²
Коридор
2,10 м²
Ванная комната
3,95 м²
Комната 1
11,85 м²
Техническое помещение
3,94 м²
Техническое помещение
4,27 м²
Гараж
41,70 м²
Терраса
25,07 м²
Терраса
83,76 м²
2 Этаж площадь
84,88 м²
Коридор
10,69 м² (2 эт.)
Комната 2
16,64 м² (2 эт.)
Ванная комната
4,22 м² (2 эт.)
Прачечная
3,28 м² (2 эт.)
Ванная комната
10,28 м² (2 эт.)
Комната 3
15,32 м² (2 эт.)
Гардероб
6,30 м² (2 эт.)
Комната 4
18,15 м² (2 эт.)
Терраса
72,74 м² (2 эт.)
экстерьер
гостиная
ванная комната
спальня
Остались вопросы?
Напиши нам.
Наш ведущий инженер свяжется с вами в ближайшее время.
Обязательно к заполнению
Обязательно к заполнению
ДАННЫЕ ПОЛУЧЕНЫ

данные успешно отправлены

Ведущий инженер компании свяжется с вами в ближайшее время.
мы используем файлы cookie
Используя сайт april-dom.ru, Вы соглашаетесь с использованием файлов cookie, которые указаны в Политике обработки Персональных данных.
/projects/a115/