о проекте

Дом выглядит стильным, современным и функциональным с ярко выраженным архитектурным дизайном, ориентированным на минимализм и утонченность.

ЭТАЖНОСТЬ
2
ПЛОЩАДЬ
230.2 м²
1
этаж
2
этаж
ПАРАМЕТРЫ ПРОЕКТА
230.2 м²
Общая площадь
230.2 м²
1 Этаж площадь
123,59 м²
Прихожая
8,29 м²
Холл
6,02 м²
Гостиная-столовая-кухня
60,24 м²
Кладовая
6,50 м²
Техническое помещение
2,14 м²
Ванная
3,53 м²
Гараж
36,87 м²
1 этаж
2 этаж
все характеристики
жилой дом
Общая площадь
230.2 м²
1 Этаж площадь
123,59 м²
Прихожая
8,29 м²
Холл
6,02 м²
Гостиная-столовая-кухня
60,24 м²
Кладовая
6,50 м²
Техническое помещение
2,14 м²
Ванная
3,53 м²
Гараж
36,87 м²
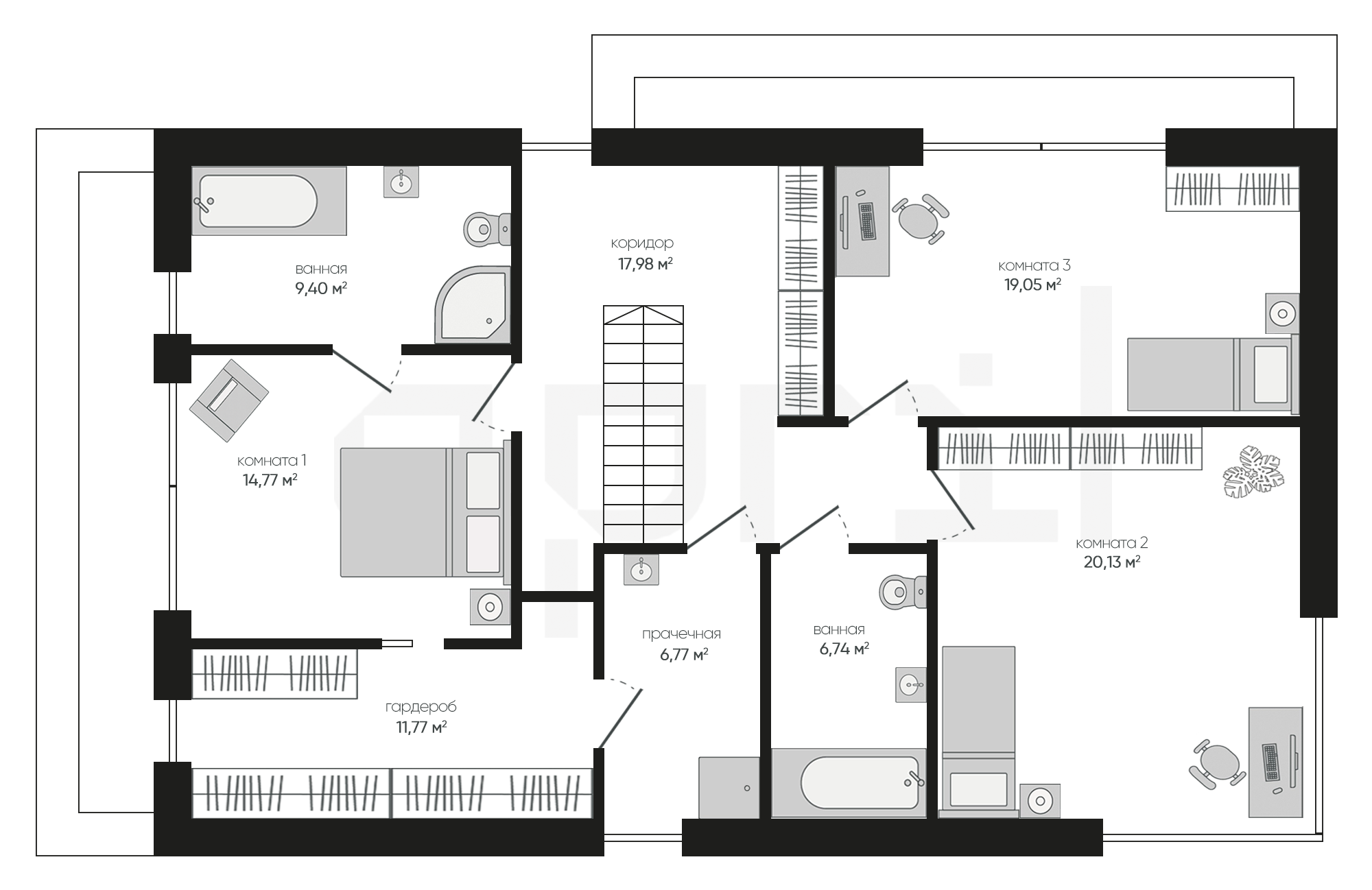
2 Этаж площадь
106,61 м²
Коридор
17,98 м² (2 эт.)
Комната 1
14,77 м² (2 эт.)
Ванная
9,40 м² (2 эт.)
Гардероб
11,77 м² (2 эт.)
Прачечная
6,77 м² (2 эт.)
Ванная
6,74 м² (2 эт.)
Комната 2
20,13 м² (2 эт.)
Комната 3
19,05 м² (2 эт.)
планировка
все характеристики
все характеристики
жилой дом
Общая площадь
230.2 м²
1 Этаж площадь
123,59 м²
Прихожая
8,29 м²
Холл
6,02 м²
Гостиная-столовая-кухня
60,24 м²
Кладовая
6,50 м²
Техническое помещение
2,14 м²
Ванная
3,53 м²
Гараж
36,87 м²
2 Этаж площадь
106,61 м²
Коридор
17,98 м² (2 эт.)
Комната 1
14,77 м² (2 эт.)
Ванная
9,40 м² (2 эт.)
Гардероб
11,77 м² (2 эт.)
Прачечная
6,77 м² (2 эт.)
Ванная
6,74 м² (2 эт.)
Комната 2
20,13 м² (2 эт.)
Комната 3
19,05 м² (2 эт.)
экстерьер
Остались вопросы?
Напиши нам.
Наш ведущий инженер свяжется с вами в ближайшее время.
Обязательно к заполнению
Обязательно к заполнению
ДАННЫЕ ПОЛУЧЕНЫ

данные успешно отправлены

Ведущий инженер компании свяжется с вами в ближайшее время.
мы используем файлы cookie
Используя сайт april-dom.ru, Вы соглашаетесь с использованием файлов cookie, которые указаны в Политике обработки Персональных данных.
/projects/a174/