a183
Проект современного одноэтажного дома в стихе хайтек.
Фасады покрыты белой и серой силиконовой штукатуркой, также можно использовать другие гармоничные цвета и материалы. Современности добавляет плоская крыша и большое панорамное остекление.
Фасады покрыты белой и серой силиконовой штукатуркой, также можно использовать другие гармоничные цвета и материалы. Современности добавляет плоская крыша и большое панорамное остекление.
о проекте
Дизайн проекта минималистичен, каждая архитектурная деталь несёт в себе функциональную нагрузку. Минимум деталей и полное отсутствие украшений главный признак минимализма, зато света и объёма более, чем достаточно.
ЭТАЖНОСТЬ
1
ПЛОЩАДЬ
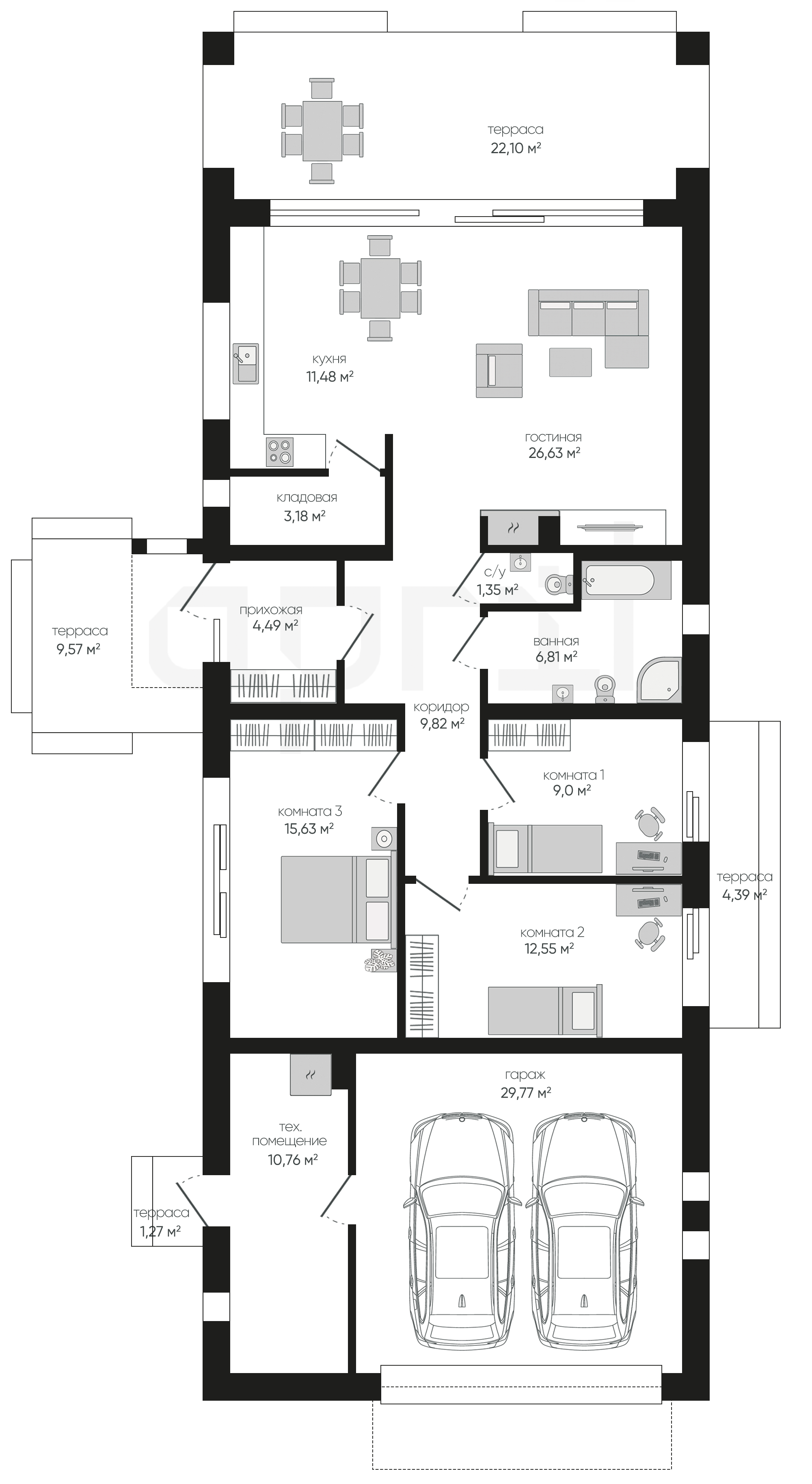
141.47 м²
ПАРАМЕТРЫ ПРОЕКТА
141.47 м²
Общая площадь
141.47 м²
Прихожая
4,49 м²
Гостиная
26,63 м²
Кухня
11,48 м²
Кладовая
3,18 м²
С/у
1,35 м²
Коридор
9,82 м²
Ванная
6,81 м²
Комната 1
9 м²
Остались вопросы?
Напиши нам.
Напиши нам.
Наш ведущий инженер свяжется с вами в ближайшее время.
ДАННЫЕ ПОЛУЧЕНЫ
данные успешно отправлены
Ведущий инженер компании свяжется с вами в ближайшее время.
Дома 1 этаж
Дома 2 этажа
Дома 1 этаж с гаражом
Дома 120 м2
Дома 150 м2
Дома 2 этажа с гаражом
Дома 200 м2
Дома 250 м2
Дома 3 этажа
Дома в скандинавском стиле
Дома в стиле райта
Дома в стиле хайтек
Дома до 100 м2
Дома с гаражом
Дома с мансардой
Дома с сауной
Дома 1 этаж с гаражом и террасой
Дома 1 этаж с террасой
Дома в стиле барнхаус
Дома в стиле шале
Дома из газобетона
Дома из газобетона 1 этаж
Дома из камня
Дома из керамических блоков
Дома из кирпича
Дома из пеноблоков
Дома с зимним садом
Дома с подвалом
Дома с террасой
Дома с цокольным этажом
Фахверковые дома
Дома с бассейном