а366
Проект современного одноэтажного дома с плоской крышей, встроенным гаражом и террасой.
Фасад покрыт единым отделочным материалом, которым является минеральная плитка в форме длинного кирпича. Фасад имеет акцент в виде зеленого патио, ограничивающего вид на гостиную.
Фасад покрыт единым отделочным материалом, которым является минеральная плитка в форме длинного кирпича. Фасад имеет акцент в виде зеленого патио, ограничивающего вид на гостиную.
о проекте
Дом спроектирован в современном стиле Хайтек, характеризующемся чистыми линиями, простыми формами и использованием натуральных материалов.
ЭТАЖНОСТЬ
1
ПЛОЩАДЬ
160.24 м²
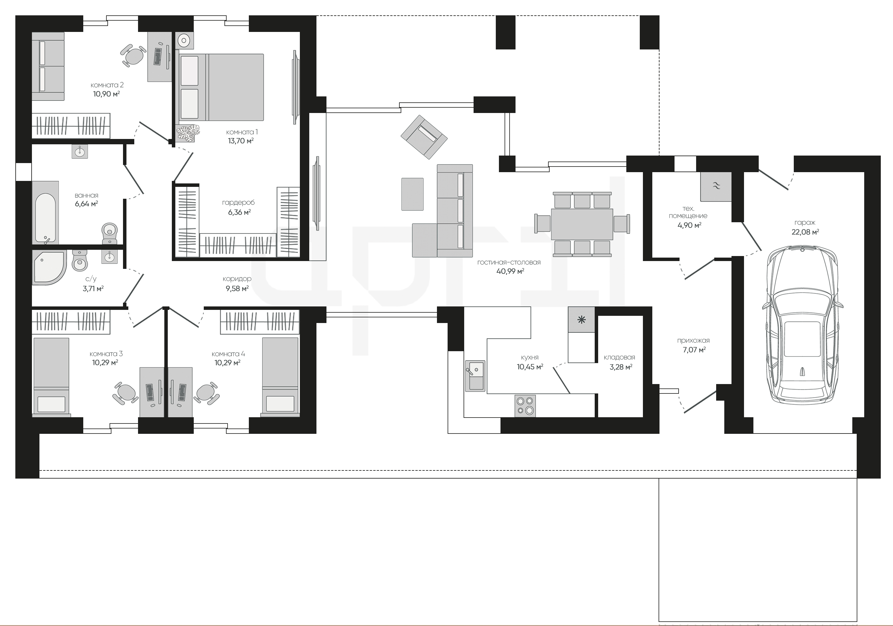
ПАРАМЕТРЫ ПРОЕКТА
160.24 м²
Общая площадь
160.24 м²
Прихожая
7,07 м²
Гостиная-столовая
40,99 м²
Кухня
10,45 м²
Кладовая
3,28 м²
Коридор
9,58 м²
Комната 1
13,70 м²
Гардероб
6,36 м²
Комната 2
10,90 м²
Остались вопросы?
Напиши нам.
Напиши нам.
Наш ведущий инженер свяжется с вами в ближайшее время.
ДАННЫЕ ПОЛУЧЕНЫ
данные успешно отправлены
Ведущий инженер компании свяжется с вами в ближайшее время.
Дома 1 этаж
Дома 2 этажа
Дома 1 этаж с гаражом
Дома 120 м2
Дома 150 м2
Дома 2 этажа с гаражом
Дома 200 м2
Дома 250 м2
Дома 3 этажа
Дома в скандинавском стиле
Дома в стиле райта
Дома в стиле хайтек
Дома до 100 м2
Дома с гаражом
Дома с мансардой
Дома с сауной
Дома 1 этаж с гаражом и террасой
Дома 1 этаж с террасой
Дома в стиле барнхаус
Дома в стиле шале
Дома из газобетона
Дома из газобетона 1 этаж
Дома из камня
Дома из керамических блоков
Дома из кирпича
Дома из пеноблоков
Дома с зимним садом
Дома с подвалом
Дома с террасой
Дома с цокольным этажом
Фахверковые дома
Дома с бассейном