а399
Проект небольшого двухэтажного дома кубической формы с плоской крышей.
Отсутствие сложных архитектурных элементов подчеркивает современный характер здания.
Основным материалом отделки фасада является деревянный сайдинг, расположенный горизонтально и вертикально. Это придает дому теплоту и естественность, а также создает ощущение уюта.
Отсутствие сложных архитектурных элементов подчеркивает современный характер здания.
Основным материалом отделки фасада является деревянный сайдинг, расположенный горизонтально и вертикально. Это придает дому теплоту и естественность, а также создает ощущение уюта.
о проекте
Одним из преимуществ этого проекта является возможность возведения даже на небольшом участке из-за небольших габаритов.
ЭТАЖНОСТЬ
2
ПЛОЩАДЬ
137.52 м²
ПАРАМЕТРЫ ПРОЕКТА
137.52 м²
Общая площадь
137.52 м²
1 Этаж площадь
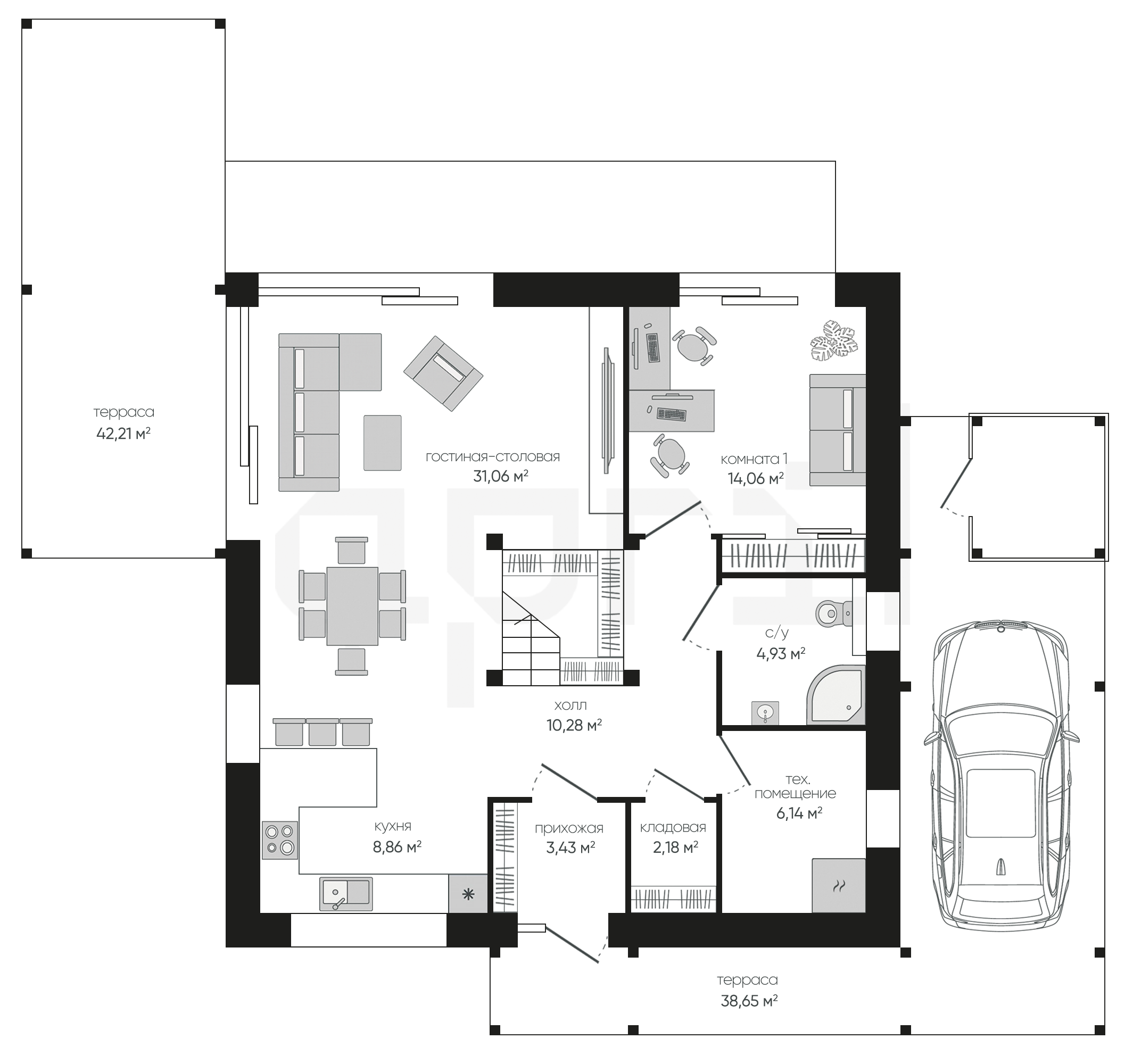
80,94 м²
Прихожая
3,43 м²
Холл
10,28 м²
Гостиная-столовая
31,06 м²
Кухня
8,86 м²
Кладовая
2,18 м²
Комната 1
14,06 м²
С/у
4,93 м²
Остались вопросы?
Напиши нам.
Напиши нам.
Наш ведущий инженер свяжется с вами в ближайшее время.
ДАННЫЕ ПОЛУЧЕНЫ
данные успешно отправлены
Ведущий инженер компании свяжется с вами в ближайшее время.
Дома 1 этаж
Дома 2 этажа
Дома 1 этаж с гаражом
Дома 120 м2
Дома 150 м2
Дома 2 этажа с гаражом
Дома 200 м2
Дома 250 м2
Дома 3 этажа
Дома в скандинавском стиле
Дома в стиле райта
Дома в стиле хайтек
Дома до 100 м2
Дома с гаражом
Дома с мансардой
Дома с сауной
Дома 1 этаж с гаражом и террасой
Дома 1 этаж с террасой
Дома в стиле барнхаус
Дома в стиле шале
Дома из газобетона
Дома из газобетона 1 этаж
Дома из камня
Дома из керамических блоков
Дома из кирпича
Дома из пеноблоков
Дома с зимним садом
Дома с подвалом
Дома с террасой
Дома с цокольным этажом
Фахверковые дома
Дома с бассейном