о проекте

Дом с мансардой предлагает четкое разделение дневной и ночной зоны.

ЭТАЖНОСТЬ
2
ПЛОЩАДЬ
138.16 м²
1
этаж
2
этаж
ПАРАМЕТРЫ ПРОЕКТА
138.16 м²
Общая площадь
138.16 м²
1 Этаж площадь
74,87 м²
Прихожая
4,19 м²
Коридор
3,14 м²
Гостиная-столовая
26,60 м²
Кухня
13,08 м²
Кладовая
4,95 м²
Комната 1
11,90 м²
С/у
3,46 м²
1 этаж
2 этаж
все характеристики
жилой дом
Общая площадь
138.16 м²
1 Этаж площадь
74,87 м²
Прихожая
4,19 м²
Коридор
3,14 м²
Гостиная-столовая
26,60 м²
Кухня
13,08 м²
Кладовая
4,95 м²
Комната 1
11,90 м²
С/у
3,46 м²
Техническое помещение
4,64 м²
Лестница
2,91 м²
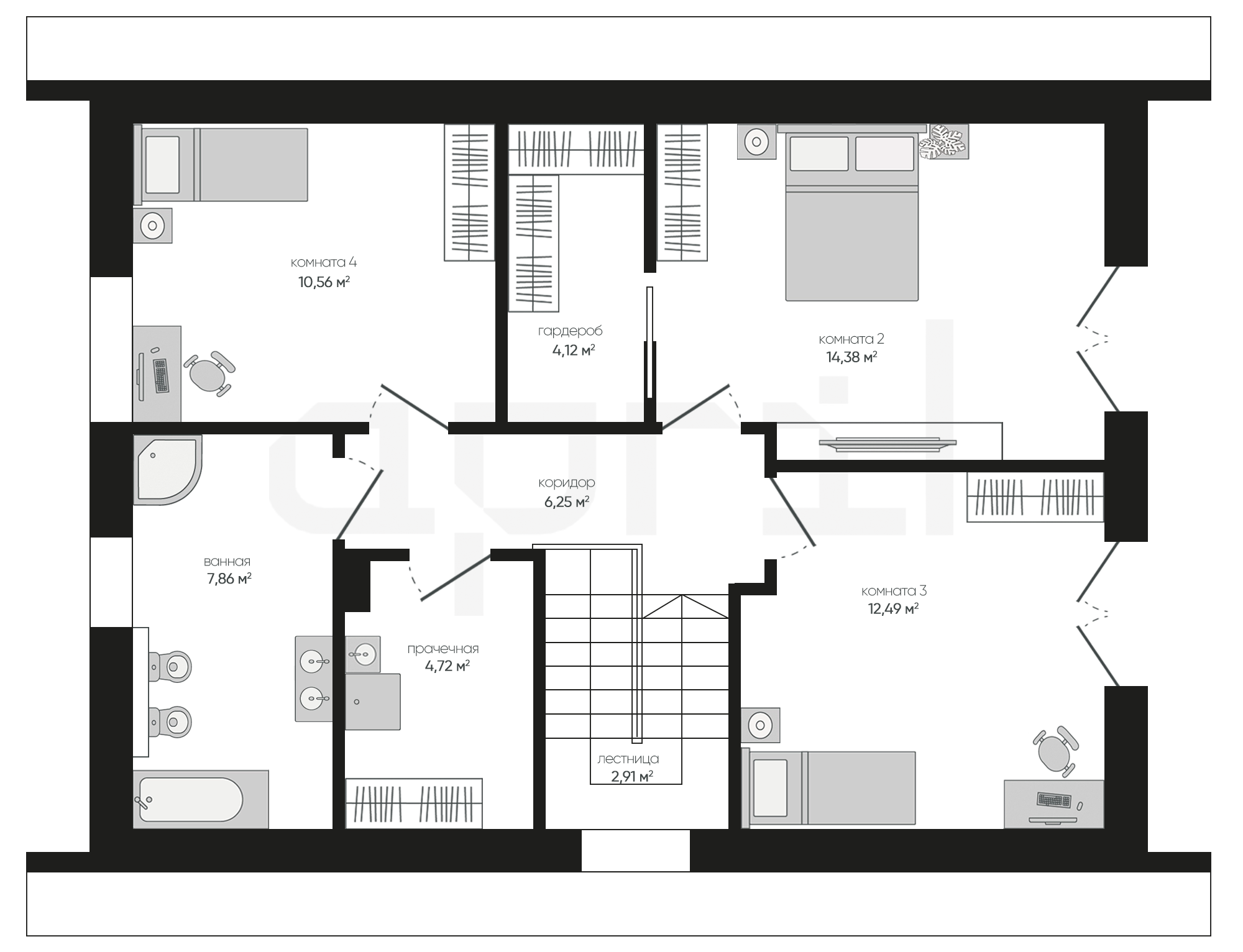
2 Этаж площадь
63,29 м²
Лестница
2,91 м² (2 эт.)
Коридор
6,25 м² (2 эт.)
Комната 2
14,38 м² (2 эт.)
Гардероб
4,12 м² (2 эт.)
Комната 3
12,49 м² (2 эт.)
Комната 4
10,56 м² (2 эт.)
Ванная
7,86 м² (2 эт.)
Прачечная
4,72 м² (2 эт.)
планировка
все характеристики
все характеристики
жилой дом
Общая площадь
138.16 м²
1 Этаж площадь
74,87 м²
Прихожая
4,19 м²
Коридор
3,14 м²
Гостиная-столовая
26,60 м²
Кухня
13,08 м²
Кладовая
4,95 м²
Комната 1
11,90 м²
С/у
3,46 м²
Техническое помещение
4,64 м²
Лестница
2,91 м²
2 Этаж площадь
63,29 м²
Лестница
2,91 м² (2 эт.)
Коридор
6,25 м² (2 эт.)
Комната 2
14,38 м² (2 эт.)
Гардероб
4,12 м² (2 эт.)
Комната 3
12,49 м² (2 эт.)
Комната 4
10,56 м² (2 эт.)
Ванная
7,86 м² (2 эт.)
Прачечная
4,72 м² (2 эт.)
экстерьер
Остались вопросы?
Напиши нам.
Наш ведущий инженер свяжется с вами в ближайшее время.
Обязательно к заполнению
Обязательно к заполнению
ДАННЫЕ ПОЛУЧЕНЫ

данные успешно отправлены

Ведущий инженер компании свяжется с вами в ближайшее время.
мы используем файлы cookie
Используя сайт april-dom.ru, Вы соглашаетесь с использованием файлов cookie, которые указаны в Политике обработки Персональных данных.
/projects/a255/