о проекте

Проект двухэтажного дома с гаражом и террасой. Дом имеет чистоту линий и минимализм в оформлении экстерьера, что характерно для современной архитектурной эстетики.

ЭТАЖНОСТЬ
2
ПЛОЩАДЬ
230.08 м²
1
этаж
2
этаж
ПАРАМЕТРЫ ПРОЕКТА
230.08 м²
Общая площадь
230.08 м²
1 Этаж площадь
143,35 м²
Прихожая
7,91 м²
Гардероб
5,30 м²
Ванная
5,10 м²
Гостиная-столовая
34,38 м²
Кухня
16,30 м²
Комната 1
13,23 м²
Лестница
8,51 м²
1 этаж
2 этаж
все характеристики
жилой дом
Общая площадь
230.08 м²
1 Этаж площадь
143,35 м²
Прихожая
7,91 м²
Гардероб
5,30 м²
Ванная
5,10 м²
Гостиная-столовая
34,38 м²
Кухня
16,30 м²
Комната 1
13,23 м²
Лестница
8,51 м²
Техническое помещение
10,65 м²
Гараж
41,97 м²
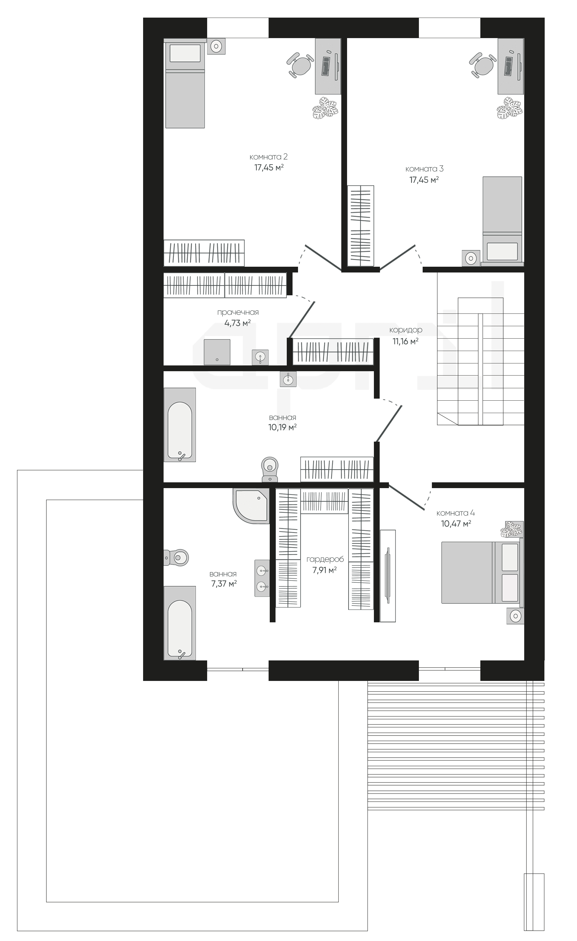
2 Этаж площадь
86,73 м²
Коридор
11,16 м² (2 эт.)
Прачечная
4,73 м² (2 эт.)
Комната 2
17,45 м² (2 эт.)
Комната 3
17,45 м² (2 эт.)
Ванная
10,19 м² (2 эт.)
Комната 4
10,47 м² (2 эт.)
Гардероб
7,91 м² (2 эт.)
Ванная
7,37 м² (2 эт.)
планировка
все характеристики
все характеристики
жилой дом
Общая площадь
230.08 м²
1 Этаж площадь
143,35 м²
Прихожая
7,91 м²
Гардероб
5,30 м²
Ванная
5,10 м²
Гостиная-столовая
34,38 м²
Кухня
16,30 м²
Комната 1
13,23 м²
Лестница
8,51 м²
Техническое помещение
10,65 м²
Гараж
41,97 м²
2 Этаж площадь
86,73 м²
Коридор
11,16 м² (2 эт.)
Прачечная
4,73 м² (2 эт.)
Комната 2
17,45 м² (2 эт.)
Комната 3
17,45 м² (2 эт.)
Ванная
10,19 м² (2 эт.)
Комната 4
10,47 м² (2 эт.)
Гардероб
7,91 м² (2 эт.)
Ванная
7,37 м² (2 эт.)
экстерьер
Остались вопросы?
Напиши нам.
Наш ведущий инженер свяжется с вами в ближайшее время.
Обязательно к заполнению
Обязательно к заполнению
ДАННЫЕ ПОЛУЧЕНЫ

данные успешно отправлены

Ведущий инженер компании свяжется с вами в ближайшее время.
мы используем файлы cookie
Используя сайт april-dom.ru, Вы соглашаетесь с использованием файлов cookie, которые указаны в Политике обработки Персональных данных.
/projects/a155/