о проекте

ЭТАЖНОСТЬ
2
ПЛОЩАДЬ
419.52 м²
1
этаж
2
этаж
3
этаж
ПАРАМЕТРЫ ПРОЕКТА
419.52 м²
Общая площадь
419.52 м²
1 Этаж площадь
244,74 м²
Прихожая
5,63 м²
Гардероб
7,07 м²
Холл
29,07 м²
С/у
4,46 м²
Гостиная+столовая
85,19 м²
Кухня
22,06 м²
Кладовая
5,63 м²
1 этаж
2 этаж
3 этаж
все характеристики
жилой дом
Общая площадь
419.52 м²
1 Этаж площадь
244,74 м²
Прихожая
5,63 м²
Гардероб
7,07 м²
Холл
29,07 м²
С/у
4,46 м²
Гостиная+столовая
85,19 м²
Кухня
22,06 м²
Кладовая
5,63 м²
Коридор
4,84 м²
Прачечная
9,18 м²
Техническое помещение
10,72 м²
Гараж
60,89 м²
2 Этаж площадь
174,78 м²
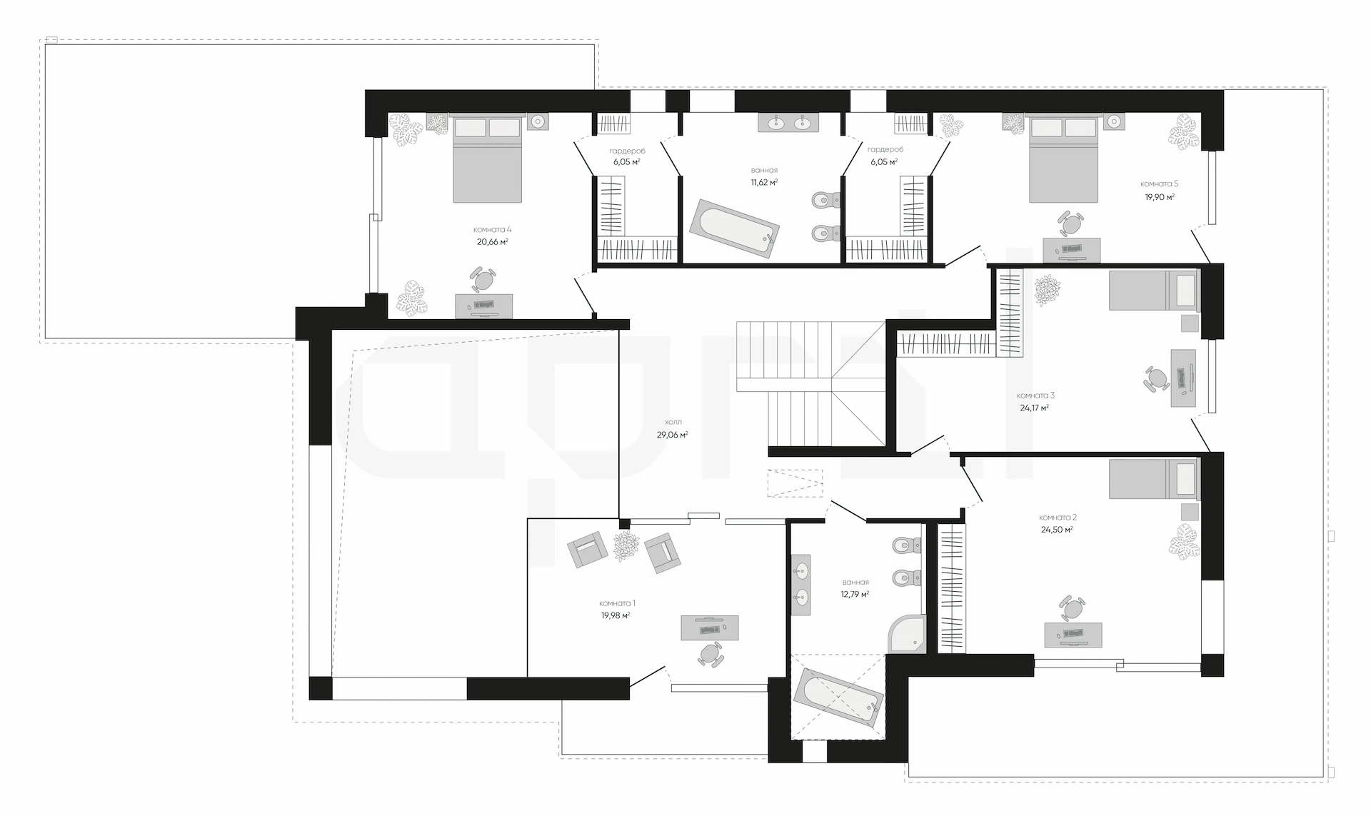
Холл
29,06 м² (2 эт.)
Комната 1
19,98 м² (2 эт.)
Ванная комната
12,79 м² (2 эт.)
Комната 2
24,50 м² (2 эт.)
Комната 3
24,17 м² (2 эт.)
Комната 4
20,66 м² (2 эт.)
Гардероб
6,05 м² (2 эт.)
Ванная комната
11,62 м² (2 эт.)
Комната 5
19,90 м² (2 эт.)
Гардероб
6,05 м² (2 эт.)
Чердак
166,3 м² (3 эт.)
планировка
все характеристики
все характеристики
жилой дом
Общая площадь
419.52 м²
1 Этаж площадь
244,74 м²
Прихожая
5,63 м²
Гардероб
7,07 м²
Холл
29,07 м²
С/у
4,46 м²
Гостиная+столовая
85,19 м²
Кухня
22,06 м²
Кладовая
5,63 м²
Коридор
4,84 м²
Прачечная
9,18 м²
Техническое помещение
10,72 м²
Гараж
60,89 м²
2 Этаж площадь
174,78 м²
Холл
29,06 м² (2 эт.)
Комната 1
19,98 м² (2 эт.)
Ванная комната
12,79 м² (2 эт.)
Комната 2
24,50 м² (2 эт.)
Комната 3
24,17 м² (2 эт.)
Комната 4
20,66 м² (2 эт.)
Гардероб
6,05 м² (2 эт.)
Ванная комната
11,62 м² (2 эт.)
Комната 5
19,90 м² (2 эт.)
Гардероб
6,05 м² (2 эт.)
Чердак
166,3 м² (3 эт.)
экстерьер
гостиная + столовая
Остались вопросы?
Напиши нам.
Наш ведущий инженер свяжется с вами в ближайшее время.
Обязательно к заполнению
Обязательно к заполнению
ДАННЫЕ ПОЛУЧЕНЫ

данные успешно отправлены

Ведущий инженер компании свяжется с вами в ближайшее время.
мы используем файлы cookie
Используя сайт april-dom.ru, Вы соглашаетесь с использованием файлов cookie, которые указаны в Политике обработки Персональных данных.
/projects/a99/