а478
Проект современного двухэтажного дома с плоской крышей, гаражом и террасой.
В отделке фасадов использовано контрастное сочетание материалов: основной визуальный эффект строится на противопоставлении графитовых плоскостей и выступающих ярко-белых элементов. Белое штукатурное обрамление создает четкую геометрическую рамку, визуально объединяющую этажи. Акцентом служит вертикальная отделка деревом в центральной части фасада и на террасе — она разбивает монотонность темных панелей и придает облику благородную текстуру.
В отделке фасадов использовано контрастное сочетание материалов: основной визуальный эффект строится на противопоставлении графитовых плоскостей и выступающих ярко-белых элементов. Белое штукатурное обрамление создает четкую геометрическую рамку, визуально объединяющую этажи. Акцентом служит вертикальная отделка деревом в центральной части фасада и на террасе — она разбивает монотонность темных панелей и придает облику благородную текстуру.
о проекте
Дизайн дома выполнен в стиле Хайтек с элементами минимализма. Это типичный проект современной городской виллы, где основное внимание уделено геометрии, функциональности и панорамному остеклению.
ЭТАЖНОСТЬ
2
ПЛОЩАДЬ
442.55 м²
ПАРАМЕТРЫ ПРОЕКТА
442.55 м²
Общая площадь
442.55 м²
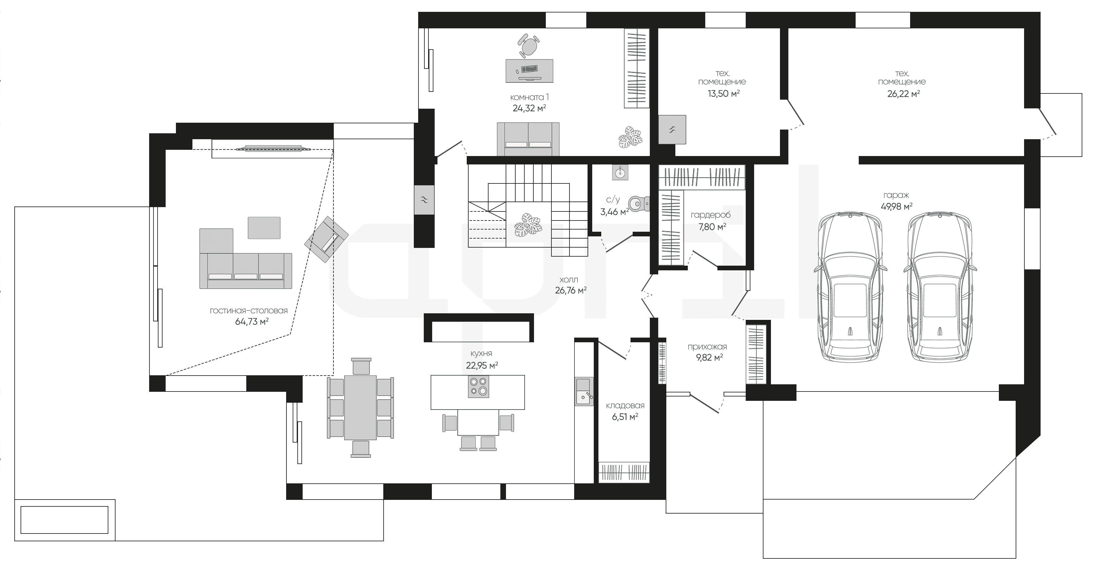
1 Этаж площадь
256,05 м²
Прихожая
9,82 м²
Гардероб
7,80 м²
Холл
26,76 м²
Гостиная-столовая
64,73 м²
Кухня
22,95 м²
Кладовая
6,51 м²
С/у
3,46 м²
Остались вопросы?
Напиши нам.
Напиши нам.
Наш ведущий инженер свяжется с вами в ближайшее время.
ДАННЫЕ ПОЛУЧЕНЫ
данные успешно отправлены
Ведущий инженер компании свяжется с вами в ближайшее время.
Дома 1 этаж
Дома 2 этажа
Дома 1 этаж с гаражом
Дома 120 м2
Дома 150 м2
Дома 2 этажа с гаражом
Дома 200 м2
Дома 250 м2
Дома 3 этажа
Дома в скандинавском стиле
Дома в стиле райта
Дома в стиле хайтек
Дома до 100 м2
Дома с гаражом
Дома с мансардой
Дома с сауной
Дома 1 этаж с гаражом и террасой
Дома 1 этаж с террасой
Дома в стиле барнхаус
Дома в стиле шале
Дома из газобетона
Дома из газобетона 1 этаж
Дома из камня
Дома из керамических блоков
Дома из кирпича
Дома из пеноблоков
Дома с зимним садом
Дома с подвалом
Дома с террасой
Дома с цокольным этажом
Фахверковые дома
Дома с бассейном