о проекте

Эстетичный внешний вид и продуманная функциональная планировка делают проект отличным вариантом для людей, желающих иметь дом с садом.

ЭТАЖНОСТЬ
2
ПЛОЩАДЬ
390.32 м²
1
этаж
2
этаж
ПАРАМЕТРЫ ПРОЕКТА
390.32 м²
Общая площадь
390.32 м²
1 Этаж площадь
212,38 м²
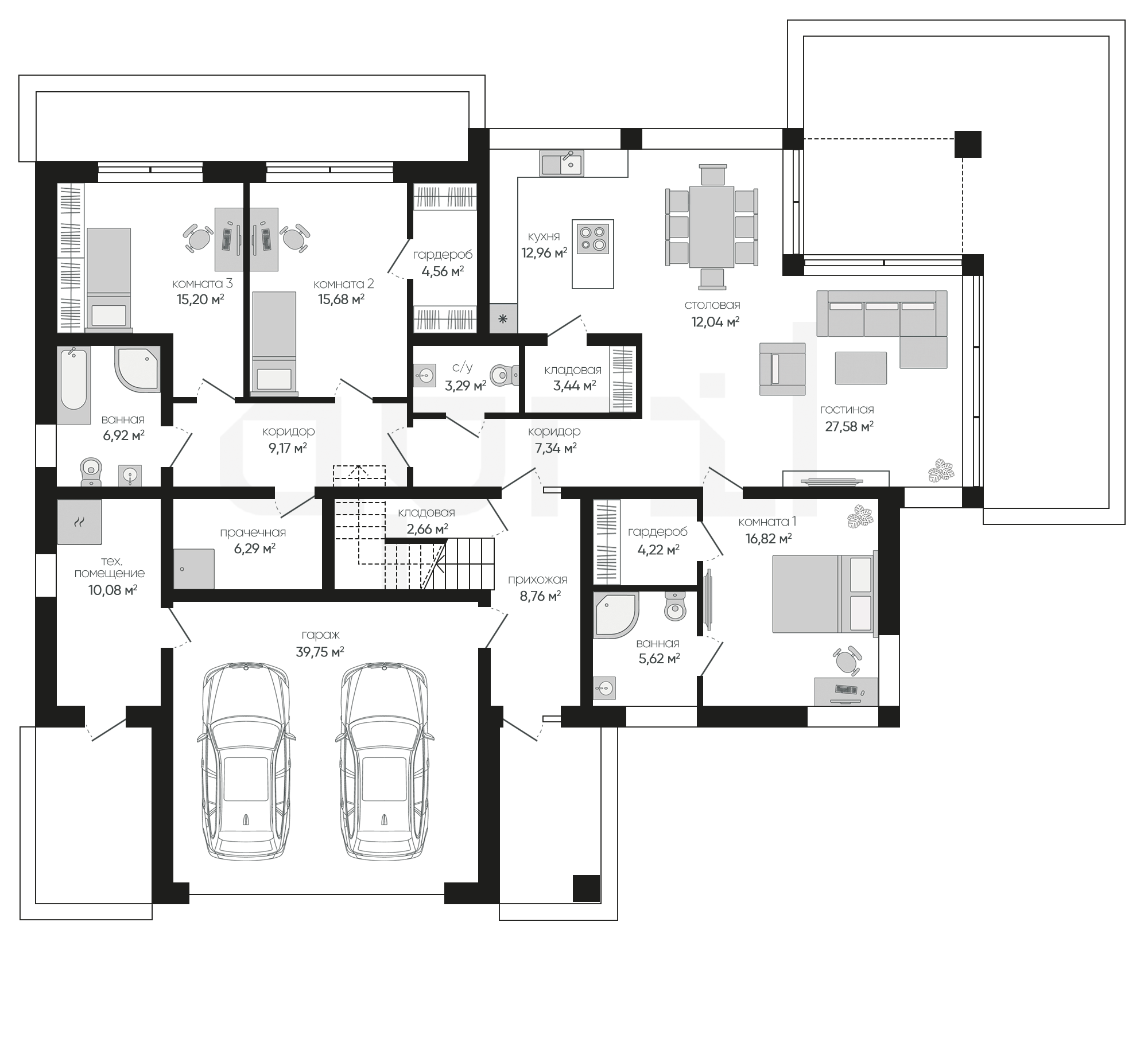
Прихожая
8,76 м²
Кладовая
2,66 м²
Коридор
7,34 м²
Гостиная
27,58 м²
Столовая
12,04 м²
Кухня
12,96 м²
Кладовая
3,44 м²
1 этаж
2 этаж
все характеристики
жилой дом
Общая площадь
390.32 м²
1 Этаж площадь
212,38 м²
Прихожая
8,76 м²
Кладовая
2,66 м²
Коридор
7,34 м²
Гостиная
27,58 м²
Столовая
12,04 м²
Кухня
12,96 м²
Кладовая
3,44 м²
Комната 1
16,82 м²
Ванная
5,62 м²
Гардероб
4,22 м²
С/у
3,29 м²
Коридор
9,17 м²
Комната 2
15,68 м²
Гардероб
4,56 м²
Комната 3
15,20 м²
Ванная
6,92 м²
Прачечная
6,29 м²
Техническое помещение
10,08 м²
Гараж
39,75 м²
2 Этаж площадь
177,94 м²
Коридор
6,19 м² (2 эт.)
Гардероб
2,49 м² (2 эт.)
Гостиная-столовая
44,31 м² (2 эт.)
Кухня
14,09 м² (2 эт.)
Кладовая
5,10 м² (2 эт.)
С/у
2,85 м² (2 эт.)
Коридор
15,12 м² (2 эт.)
Комната 4
17,62 м² (2 эт.)
Гардероб
7,71 м² (2 эт.)
Ванная
9,18 м² (2 эт.)
Комната 5
11,83 м² (2 эт.)
Комната 6
16,59 м² (2 эт.)
Гардероб
4,45 м² (2 эт.)
Ванная
13,38 м² (2 эт.)
Прачечная
7,03 м² (2 эт.)
планировка
все характеристики
все характеристики
жилой дом
Общая площадь
390.32 м²
1 Этаж площадь
212,38 м²
Прихожая
8,76 м²
Кладовая
2,66 м²
Коридор
7,34 м²
Гостиная
27,58 м²
Столовая
12,04 м²
Кухня
12,96 м²
Кладовая
3,44 м²
Комната 1
16,82 м²
Ванная
5,62 м²
Гардероб
4,22 м²
С/у
3,29 м²
Коридор
9,17 м²
Комната 2
15,68 м²
Гардероб
4,56 м²
Комната 3
15,20 м²
Ванная
6,92 м²
Прачечная
6,29 м²
Техническое помещение
10,08 м²
Гараж
39,75 м²
2 Этаж площадь
177,94 м²
Коридор
6,19 м² (2 эт.)
Гардероб
2,49 м² (2 эт.)
Гостиная-столовая
44,31 м² (2 эт.)
Кухня
14,09 м² (2 эт.)
Кладовая
5,10 м² (2 эт.)
С/у
2,85 м² (2 эт.)
Коридор
15,12 м² (2 эт.)
Комната 4
17,62 м² (2 эт.)
Гардероб
7,71 м² (2 эт.)
Ванная
9,18 м² (2 эт.)
Комната 5
11,83 м² (2 эт.)
Комната 6
16,59 м² (2 эт.)
Гардероб
4,45 м² (2 эт.)
Ванная
13,38 м² (2 эт.)
Прачечная
7,03 м² (2 эт.)
экстерьер
Остались вопросы?
Напиши нам.
Наш ведущий инженер свяжется с вами в ближайшее время.
Обязательно к заполнению
Обязательно к заполнению
ДАННЫЕ ПОЛУЧЕНЫ

данные успешно отправлены

Ведущий инженер компании свяжется с вами в ближайшее время.
мы используем файлы cookie
Используя сайт april-dom.ru, Вы соглашаетесь с использованием файлов cookie, которые указаны в Политике обработки Персональных данных.
/projects/a266/