о проекте

Проект подразумевает высокий уровень комфорта, практичность, а также тщательно продуманное зонирование пространства.

ЭТАЖНОСТЬ
2
ПЛОЩАДЬ
224.67 м²
1
этаж
2
этаж
ПАРАМЕТРЫ ПРОЕКТА
224.67 м²
Общая площадь
224.67 м²
1 Этаж площадь
150,03 м²
Прихожая
3,53 м²
Гардероб
1,92 м²
Холл
10,89 м²
Гостиная+столовая
36,82 м²
Кухня
11,20 м²
Кладовая
1,80 м²
Комната + гардероб
18,67 м²
1 этаж
2 этаж
все характеристики
жилой дом
Общая площадь
224.67 м²
1 Этаж площадь
150,03 м²
Прихожая
3,53 м²
Гардероб
1,92 м²
Холл
10,89 м²
Гостиная+столовая
36,82 м²
Кухня
11,20 м²
Кладовая
1,80 м²
Комната + гардероб
18,67 м²
Ванная комната
8,46 м²
Комната 2
11,30 м²
С/у
2,12 м²
Прачечная
3,25 м²
Техническое помещение
5,85 м²
Гараж
34,22 м²
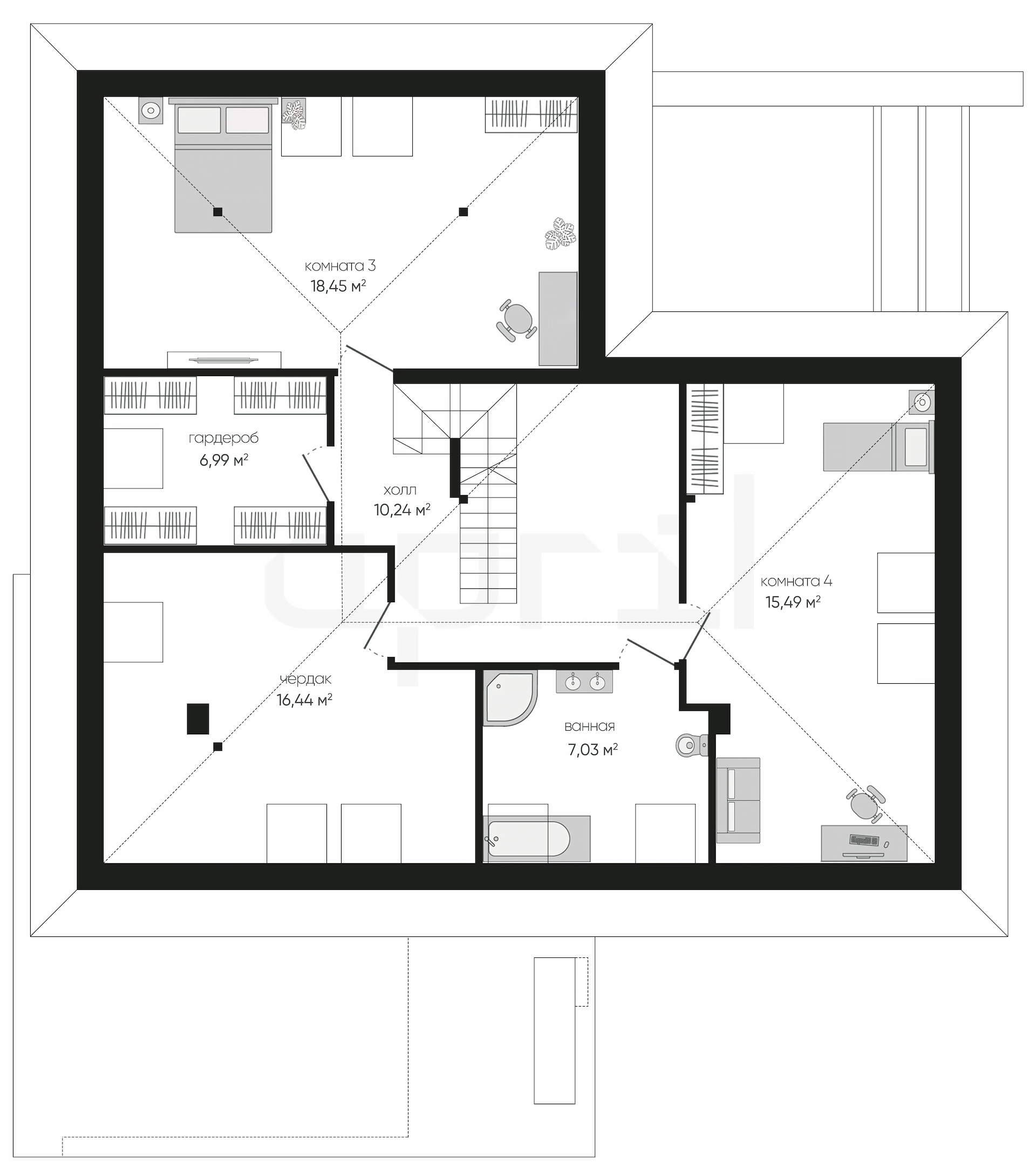
2 Этаж площадь
74,64 м²
Холл
10,24 м² (2 эт.)
Комната 3
18,45 м² (2 эт.)
Гардероб
6,99 м² (2 эт.)
Чердак
16,44 м² (2 эт.)
Ванная комната
7,03 м² (2 эт.)
Комната 4
15,49 м² (2 эт.)
планировка
все характеристики
все характеристики
жилой дом
Общая площадь
224.67 м²
1 Этаж площадь
150,03 м²
Прихожая
3,53 м²
Гардероб
1,92 м²
Холл
10,89 м²
Гостиная+столовая
36,82 м²
Кухня
11,20 м²
Кладовая
1,80 м²
Комната + гардероб
18,67 м²
Ванная комната
8,46 м²
Комната 2
11,30 м²
С/у
2,12 м²
Прачечная
3,25 м²
Техническое помещение
5,85 м²
Гараж
34,22 м²
2 Этаж площадь
74,64 м²
Холл
10,24 м² (2 эт.)
Комната 3
18,45 м² (2 эт.)
Гардероб
6,99 м² (2 эт.)
Чердак
16,44 м² (2 эт.)
Ванная комната
7,03 м² (2 эт.)
Комната 4
15,49 м² (2 эт.)
экстерьер
Остались вопросы?
Напиши нам.
Наш ведущий инженер свяжется с вами в ближайшее время.
Обязательно к заполнению
Обязательно к заполнению
ДАННЫЕ ПОЛУЧЕНЫ

данные успешно отправлены

Ведущий инженер компании свяжется с вами в ближайшее время.
мы используем файлы cookie
Используя сайт april-dom.ru, Вы соглашаетесь с использованием файлов cookie, которые указаны в Политике обработки Персональных данных.
/projects/a68/