о проекте

Дом выполнен в современном стиле Хайтек, характеризующемся чистыми линиями, плоской крышей и сочетанием различных текстур.

ЭТАЖНОСТЬ
2
ПЛОЩАДЬ
227.23 м²
1
этаж
2
этаж
ПАРАМЕТРЫ ПРОЕКТА
227.23 м²
Общая площадь
227.23 м²
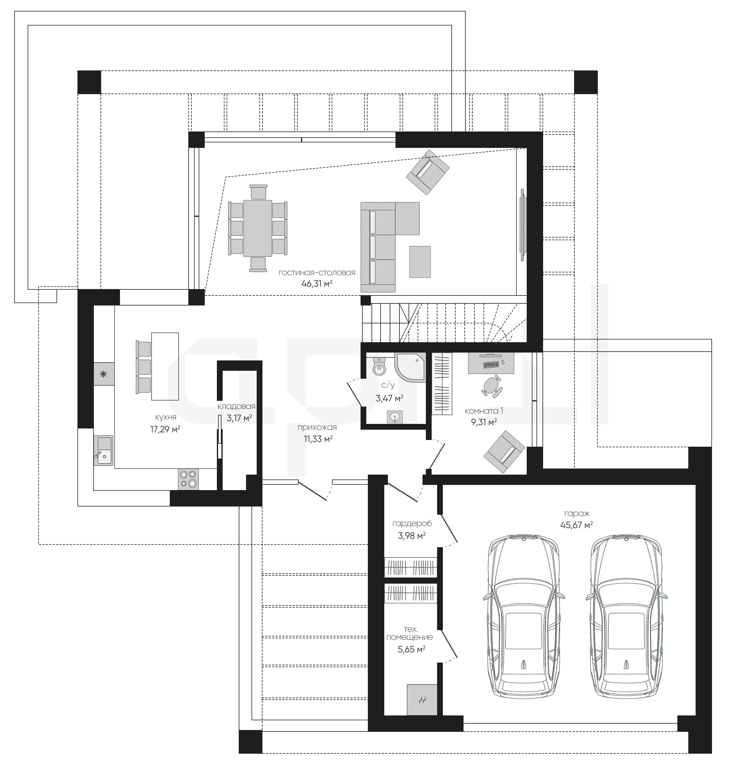
1 Этаж площадь
146,18 м²
Прихожая
11,33 м²
Гостиная-столовая
46,31 м²
Кухня
17,29 м²
Кладовая
3,17 м²
С/у
3,47 м²
Комната 1
9,31 м²
Гардероб
3,98 м²
1 этаж
2 этаж
все характеристики
жилой дом
Общая площадь
227.23 м²
1 Этаж площадь
146,18 м²
Прихожая
11,33 м²
Гостиная-столовая
46,31 м²
Кухня
17,29 м²
Кладовая
3,17 м²
С/у
3,47 м²
Комната 1
9,31 м²
Гардероб
3,98 м²
Гараж
45,67 м²
Техническое помещение
5,65 м²
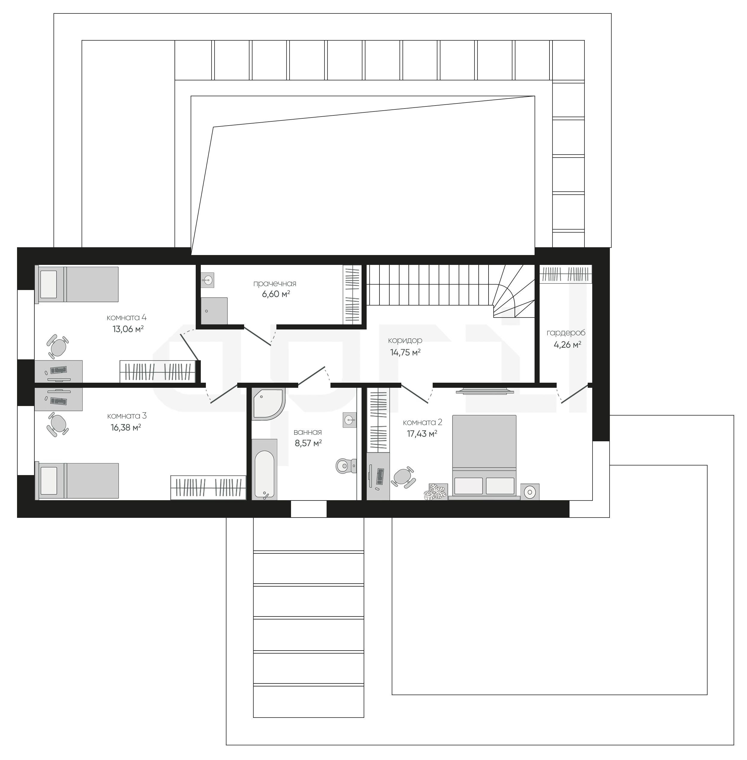
2 Этаж площадь
81,05 м²
Коридор
14,75 м² (2 эт.)
Комната 2
17,43 м² (2 эт.)
Гардероб
4,26 м² (2 эт.)
Ванная
8,57 м² (2 эт.)
Комната 3
16,38 м² (2 эт.)
Комната 4
13,06 м² (2 эт.)
Прачечная
6,60 м² (2 эт.)
планировка
все характеристики
все характеристики
жилой дом
Общая площадь
227.23 м²
1 Этаж площадь
146,18 м²
Прихожая
11,33 м²
Гостиная-столовая
46,31 м²
Кухня
17,29 м²
Кладовая
3,17 м²
С/у
3,47 м²
Комната 1
9,31 м²
Гардероб
3,98 м²
Гараж
45,67 м²
Техническое помещение
5,65 м²
2 Этаж площадь
81,05 м²
Коридор
14,75 м² (2 эт.)
Комната 2
17,43 м² (2 эт.)
Гардероб
4,26 м² (2 эт.)
Ванная
8,57 м² (2 эт.)
Комната 3
16,38 м² (2 эт.)
Комната 4
13,06 м² (2 эт.)
Прачечная
6,60 м² (2 эт.)
экстерьер
Остались вопросы?
Напиши нам.
Наш ведущий инженер свяжется с вами в ближайшее время.
Обязательно к заполнению
Обязательно к заполнению
ДАННЫЕ ПОЛУЧЕНЫ

данные успешно отправлены

Ведущий инженер компании свяжется с вами в ближайшее время.
мы используем файлы cookie
Используя сайт april-dom.ru, Вы соглашаетесь с использованием файлов cookie, которые указаны в Политике обработки Персональных данных.
/projects/a405/