а482
Проект современного одноэтажного дома с гаражом и террасой.
Белоснежный фасад и плоская крыша подчеркивают минимализм архитектуры и масштаб остекления. Здание сформировано из нескольких геометрических блоков, создающих сложную, но гармоничную форму. Отсутствие лишнего декора акцентирует чистоту линий, а темные оконные рамы эффектно контрастируют с белым фоном стен.
Белоснежный фасад и плоская крыша подчеркивают минимализм архитектуры и масштаб остекления. Здание сформировано из нескольких геометрических блоков, создающих сложную, но гармоничную форму. Отсутствие лишнего декора акцентирует чистоту линий, а темные оконные рамы эффектно контрастируют с белым фоном стен.
о проекте
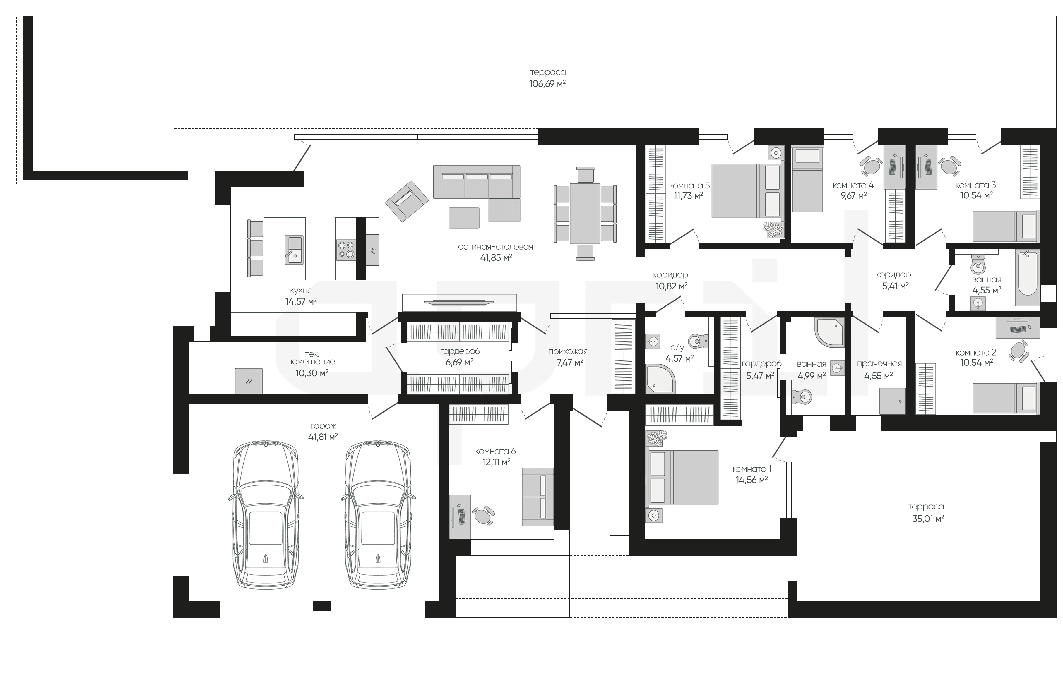
Террасы в этом проекте — не просто пристройки, а логическое продолжение геометрии блоков. Основная садовая терраса опоясывает заднюю часть здания, в то время как боковая, расположенная спереди, носит более приватный характер и скрыта от посторонних глаз.
ЭТАЖНОСТЬ
1
ПЛОЩАДЬ
232.20 м²
ПАРАМЕТРЫ ПРОЕКТА
232.20 м²
Общая площадь
232.20 м²
Прихожая
7,47 м²
Коридор
10,82 м²
Гостиная-столовая
41,85 м²
Кухня
14,57 м²
С/у
4,57 м²
Комната 1
14,56 м²
Гардероб
5,47 м²
Ванная
4,99 м²
Остались вопросы?
Напиши нам.
Напиши нам.
Наш ведущий инженер свяжется с вами в ближайшее время.
ДАННЫЕ ПОЛУЧЕНЫ
данные успешно отправлены
Ведущий инженер компании свяжется с вами в ближайшее время.
Дома 1 этаж
Дома 2 этажа
Дома 1 этаж с гаражом
Дома 120 м2
Дома 150 м2
Дома 2 этажа с гаражом
Дома 200 м2
Дома 250 м2
Дома 3 этажа
Дома в скандинавском стиле
Дома в стиле райта
Дома в стиле хайтек
Дома до 100 м2
Дома с гаражом
Дома с мансардой
Дома с сауной
Дома 1 этаж с гаражом и террасой
Дома 1 этаж с террасой
Дома в стиле барнхаус
Дома в стиле шале
Дома из газобетона
Дома из газобетона 1 этаж
Дома из камня
Дома из керамических блоков
Дома из кирпича
Дома из пеноблоков
Дома с зимним садом
Дома с подвалом
Дома с террасой
Дома с цокольным этажом
Фахверковые дома
Дома с бассейном