а287
Проект современного дома с мансардным этажом и гаражом.
Дом выполнен в современном стиле с элементами классического дизайна. У него многоскатная крыша с использованием темной черепицы, что создает контраст с белыми стенами здания. Балкон с прозрачными перилами добавляет дому современный вид и функциональность.
Фасад украшен деревянными вставками, что придает дому теплоты и уюта, соединяя современные и традиционные элементы.
Дом выполнен в современном стиле с элементами классического дизайна. У него многоскатная крыша с использованием темной черепицы, что создает контраст с белыми стенами здания. Балкон с прозрачными перилами добавляет дому современный вид и функциональность.
Фасад украшен деревянными вставками, что придает дому теплоты и уюта, соединяя современные и традиционные элементы.
о проекте
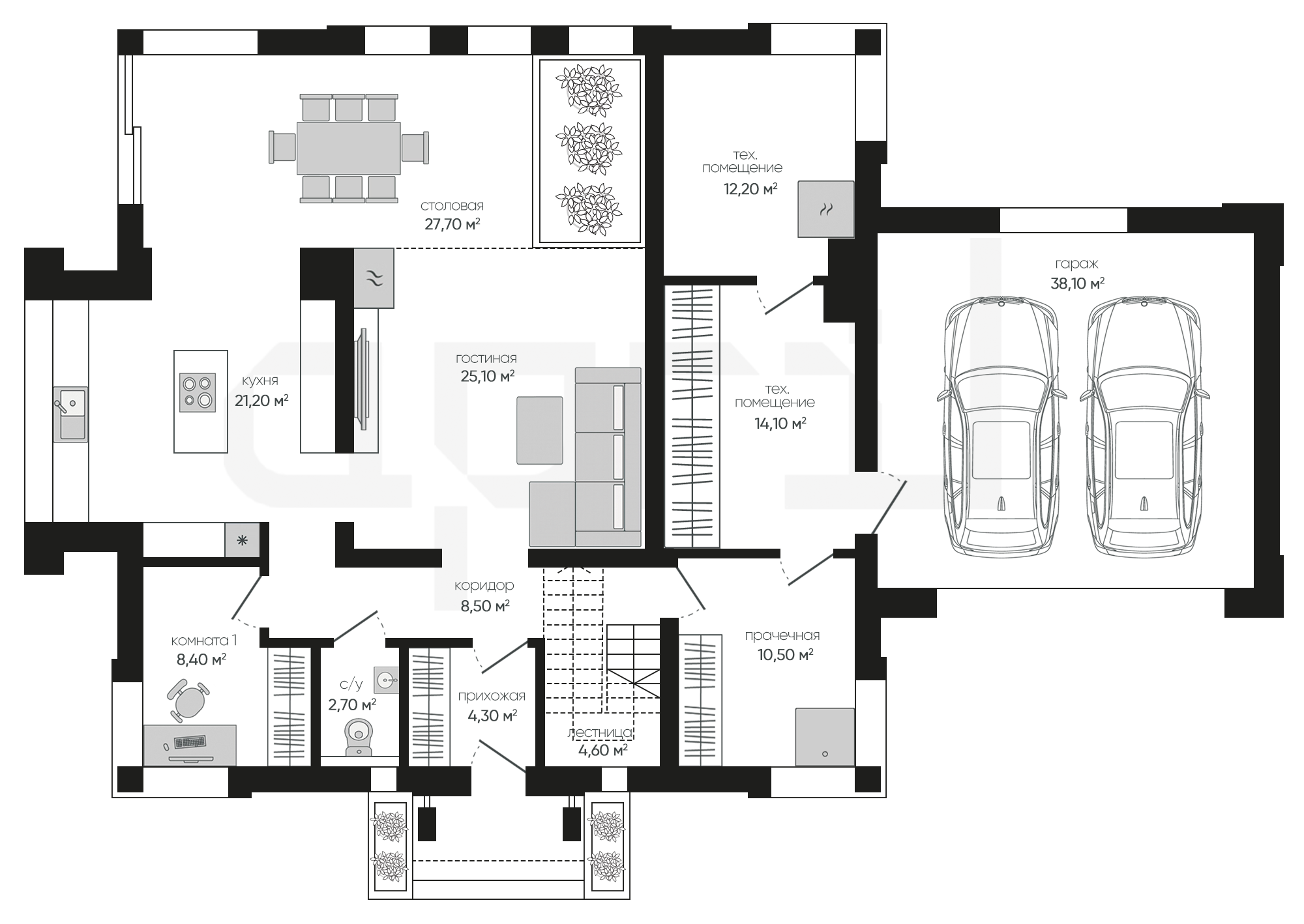
Планировка выполнена с учётом комфорта и функциональности, обеспечивая легкий доступ ко всем помещениям. Основное внимание уделено открытым пространствам для взаимодействия и совместного пребывания семьи или гостей.
ЭТАЖНОСТЬ
2
ПЛОЩАДЬ
259.70 м²
ПАРАМЕТРЫ ПРОЕКТА
259.70 м²
Общая площадь
259.70 м²
1 Этаж площадь
177,40 м²
Прихожая
4,30 м²
Коридор
8,50 м²
Гостиная
25,10 м²
Столовая
27,70 м²
Кухня
21,20 м²
Комната 1
8,40 м²
С/у
2,70 м²
Остались вопросы?
Напиши нам.
Напиши нам.
Наш ведущий инженер свяжется с вами в ближайшее время.
ДАННЫЕ ПОЛУЧЕНЫ
данные успешно отправлены
Ведущий инженер компании свяжется с вами в ближайшее время.
Дома 1 этаж
Дома 2 этажа
Дома 1 этаж с гаражом
Дома 120 м2
Дома 150 м2
Дома 2 этажа с гаражом
Дома 200 м2
Дома 250 м2
Дома 3 этажа
Дома в скандинавском стиле
Дома в стиле райта
Дома в стиле хайтек
Дома до 100 м2
Дома с гаражом
Дома с мансардой
Дома с сауной
Дома 1 этаж с гаражом и террасой
Дома 1 этаж с террасой
Дома в стиле барнхаус
Дома в стиле шале
Дома из газобетона
Дома из газобетона 1 этаж
Дома из камня
Дома из керамических блоков
Дома из кирпича
Дома из пеноблоков
Дома с зимним садом
Дома с подвалом
Дома с террасой
Дома с цокольным этажом
Фахверковые дома
Дома с бассейном