о проекте

Проект является выбором для большой семьи, ведущей активную социальную жизнь. Дом требует просторного участка, но взамен предлагает высокий уровень комфорта, обилие света и эстетику современной архитектуры.

ЭТАЖНОСТЬ
2
ПЛОЩАДЬ
337.58 м²
1
этаж
2
этаж
ПАРАМЕТРЫ ПРОЕКТА
337.58 м²
Общая площадь
337.58 м²
1 Этаж площадь
186,56 м²
Прихожая
5,65 м²
Гардероб
8,40 м²
Холл
10,66 м²
Гостиная-столовая
73,70 м²
Кухня
16,88 м²
Кладовая
5,72 м²
С/у
3,40 м²
1 этаж
2 этаж
все характеристики
жилой дом
Общая площадь
337.58 м²
1 Этаж площадь
186,56 м²
Прихожая
5,65 м²
Гардероб
8,40 м²
Холл
10,66 м²
Гостиная-столовая
73,70 м²
Кухня
16,88 м²
Кладовая
5,72 м²
С/у
3,40 м²
Комната 1
17,95 м²
Техническое помещение
7,96 м²
Гараж
36,24 м²
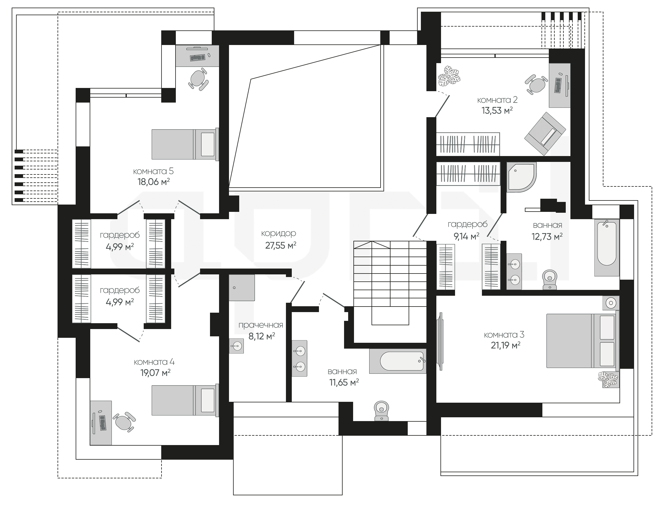
2 Этаж площадь
151,02 м²
Коридор
27,55 м² (2 эт.)
Комната 2
13,53 м² (2 эт.)
Гардероб
9,14 м² (2 эт.)
Ванная
12,73 м² (2 эт.)
Комната 3
21,19 м² (2 эт.)
Ванная
11,65 м² (2 эт.)
Прачечная
8,12 м² (2 эт.)
Комната 4
19,07 м² (2 эт.)
Гардероб
4,99 м² (2 эт.)
Комната 5
18,06 м² (2 эт.)
Гардероб
4,99 м² (2 эт.)
планировка
все характеристики
все характеристики
жилой дом
Общая площадь
337.58 м²
1 Этаж площадь
186,56 м²
Прихожая
5,65 м²
Гардероб
8,40 м²
Холл
10,66 м²
Гостиная-столовая
73,70 м²
Кухня
16,88 м²
Кладовая
5,72 м²
С/у
3,40 м²
Комната 1
17,95 м²
Техническое помещение
7,96 м²
Гараж
36,24 м²
2 Этаж площадь
151,02 м²
Коридор
27,55 м² (2 эт.)
Комната 2
13,53 м² (2 эт.)
Гардероб
9,14 м² (2 эт.)
Ванная
12,73 м² (2 эт.)
Комната 3
21,19 м² (2 эт.)
Ванная
11,65 м² (2 эт.)
Прачечная
8,12 м² (2 эт.)
Комната 4
19,07 м² (2 эт.)
Гардероб
4,99 м² (2 эт.)
Комната 5
18,06 м² (2 эт.)
Гардероб
4,99 м² (2 эт.)
экстерьер
Остались вопросы?
Напиши нам.
Наш ведущий инженер свяжется с вами в ближайшее время.
Обязательно к заполнению
Обязательно к заполнению
ДАННЫЕ ПОЛУЧЕНЫ

данные успешно отправлены

Ведущий инженер компании свяжется с вами в ближайшее время.
мы используем файлы cookie
Используя сайт april-dom.ru, Вы соглашаетесь с использованием файлов cookie, которые указаны в Политике обработки Персональных данных.
/projects/a476/