о проекте

Внутри дома четкое разделение на функциональные зоны, которые отвечают потребностям семьи из 5-6 человек.

ЭТАЖНОСТЬ
2
ПЛОЩАДЬ
308.46 м²
1
этаж
2
этаж
ПАРАМЕТРЫ ПРОЕКТА
308.46 м²
Общая площадь
308.46 м²
1 Этаж площадь
173,45 м²
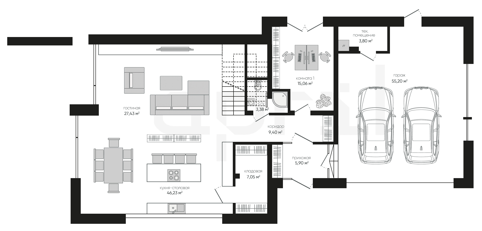
Прихожая
5,90 м²
Коридор
9,40 м²
Гостиная
27,43 м²
Кухня-столовая
46,23 м²
Кладовая
7,05 м²
С/у
3,38 м²
Комната 1
15,06 м²
1 этаж
2 этаж
все характеристики
жилой дом
Общая площадь
308.46 м²
1 Этаж площадь
173,45 м²
Прихожая
5,90 м²
Коридор
9,40 м²
Гостиная
27,43 м²
Кухня-столовая
46,23 м²
Кладовая
7,05 м²
С/у
3,38 м²
Комната 1
15,06 м²
Техническое помещение
3,80 м²
Гараж
55,20 м²
2 Этаж площадь
135,01 м²
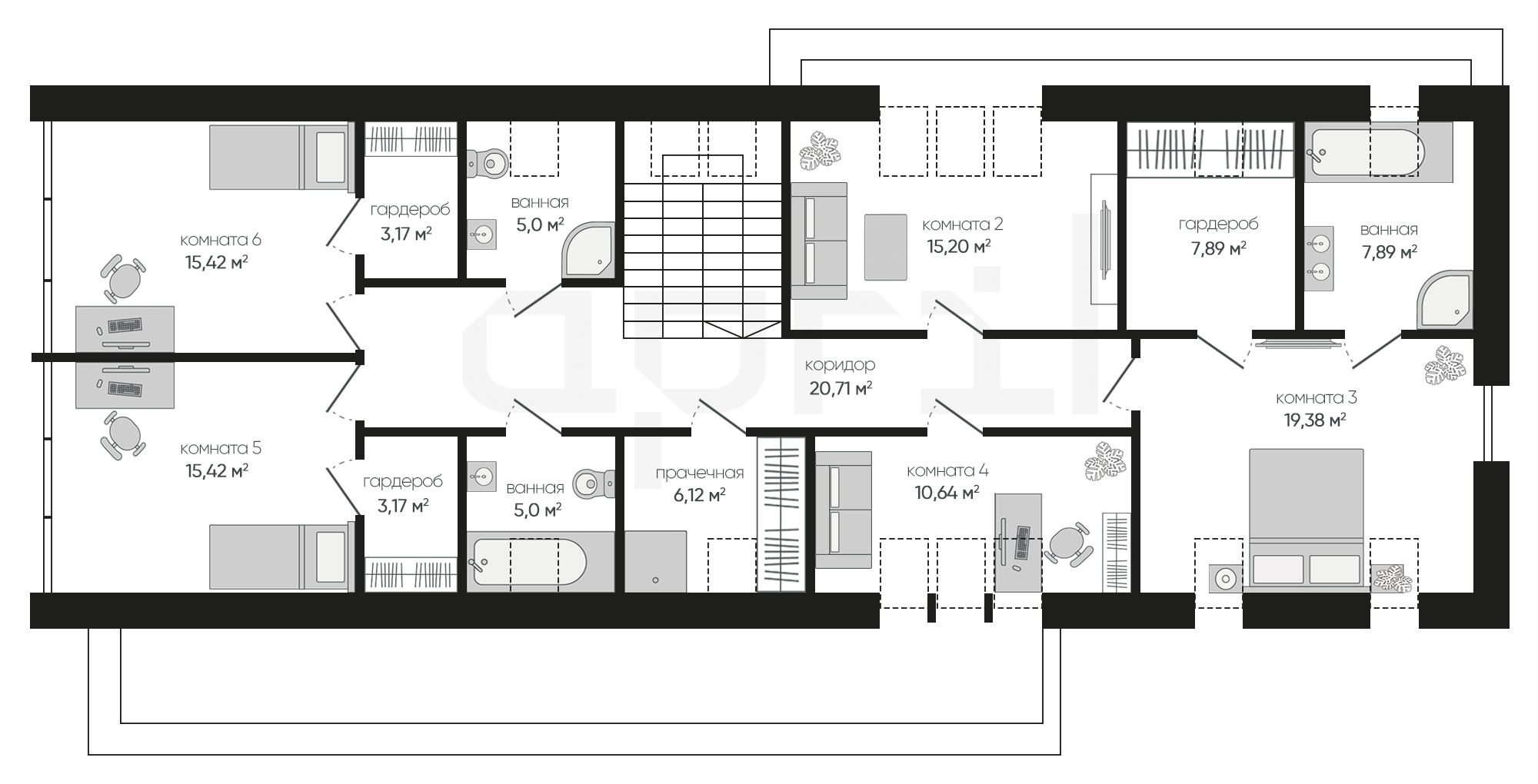
Коридор
20,71 м² (2 эт.)
Комната 2
15,20 м² (2 эт.)
Комната 3
19,38 м² (2 эт.)
Гардероб
7,89 м² (2 эт.)
Ванная
7,89 м² (2 эт.)
Комната 4
10,64 м² (2 эт.)
Прачечная
6,12 м² (2 эт.)
Ванная
5 м² (2 эт.)
Комната 5
15,42 м² (2 эт.)
Гардероб
3,17 м² (2 эт.)
Комната 6
15,42 м² (2 эт.)
Гардероб
3,17 м² (2 эт.)
Ванная
5 м² (2 эт.)
планировка
все характеристики
все характеристики
жилой дом
Общая площадь
308.46 м²
1 Этаж площадь
173,45 м²
Прихожая
5,90 м²
Коридор
9,40 м²
Гостиная
27,43 м²
Кухня-столовая
46,23 м²
Кладовая
7,05 м²
С/у
3,38 м²
Комната 1
15,06 м²
Техническое помещение
3,80 м²
Гараж
55,20 м²
2 Этаж площадь
135,01 м²
Коридор
20,71 м² (2 эт.)
Комната 2
15,20 м² (2 эт.)
Комната 3
19,38 м² (2 эт.)
Гардероб
7,89 м² (2 эт.)
Ванная
7,89 м² (2 эт.)
Комната 4
10,64 м² (2 эт.)
Прачечная
6,12 м² (2 эт.)
Ванная
5 м² (2 эт.)
Комната 5
15,42 м² (2 эт.)
Гардероб
3,17 м² (2 эт.)
Комната 6
15,42 м² (2 эт.)
Гардероб
3,17 м² (2 эт.)
Ванная
5 м² (2 эт.)
экстерьер
Остались вопросы?
Напиши нам.
Наш ведущий инженер свяжется с вами в ближайшее время.
Обязательно к заполнению
Обязательно к заполнению
ДАННЫЕ ПОЛУЧЕНЫ

данные успешно отправлены

Ведущий инженер компании свяжется с вами в ближайшее время.
мы используем файлы cookie
Используя сайт april-dom.ru, Вы соглашаетесь с использованием файлов cookie, которые указаны в Политике обработки Персональных данных.
/projects/a228/