о проекте

Дом спроектирован с учетом принципов минимализма и гармонии с окружающей средой. Комбинация натуральных и современных отделочных материалов, а также продуманное остекление создают эстетически привлекательный и комфортный для жизни образ.

ЭТАЖНОСТЬ
2
ПЛОЩАДЬ
127.90 м²
1
этаж
2
этаж
ПАРАМЕТРЫ ПРОЕКТА
127.90 м²
Общая площадь
127.90 м²
1 Этаж площадь
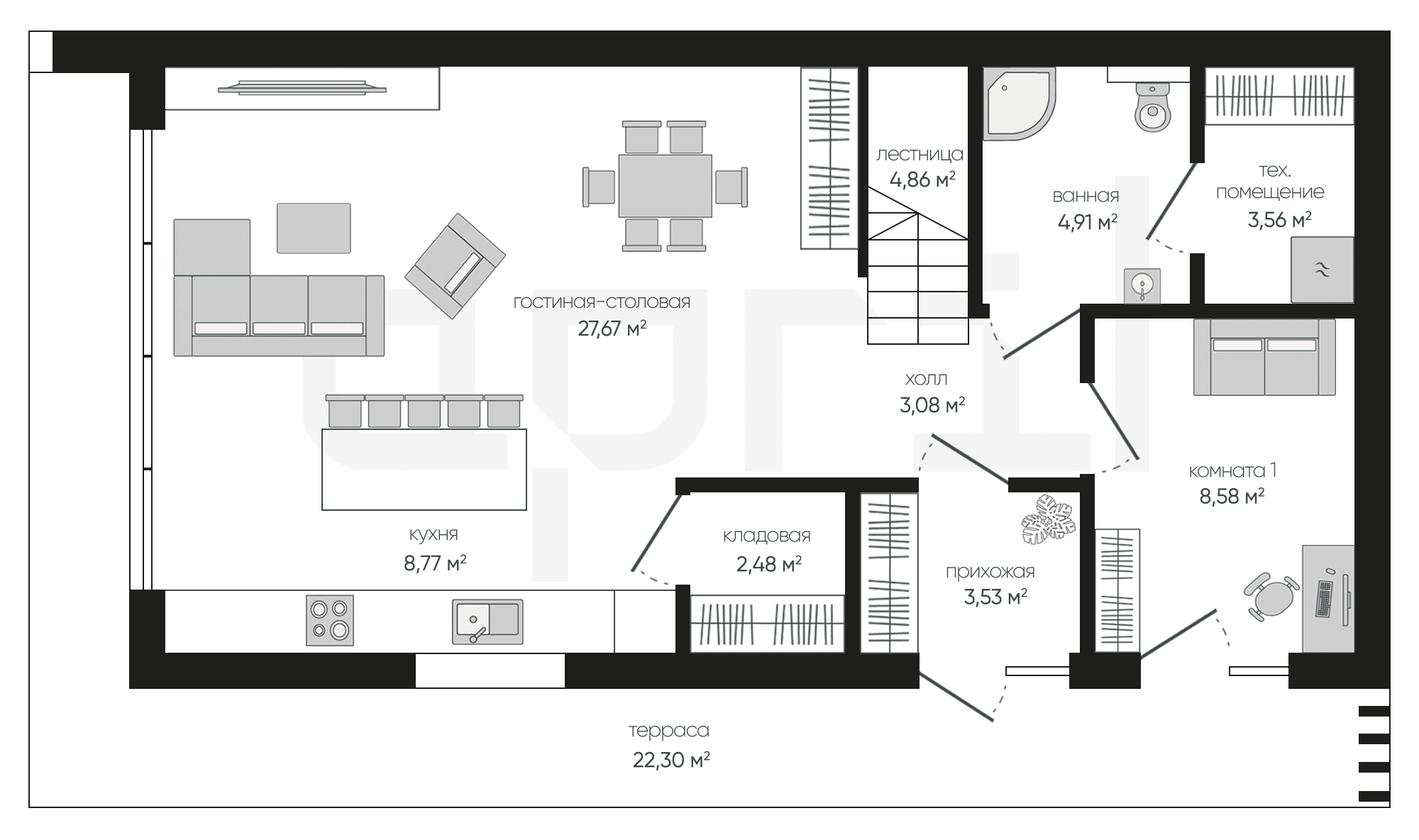
67,44 м²
Прихожая
3,53 м²
Холл
3,08 м²
Гостиная-столовая
27,67 м²
Кухня
8,77 м²
Кладовая
2,48 м²
Лестница
4,86 м²
Ванная
4,91 м²
1 этаж
2 этаж
все характеристики
жилой дом
Общая площадь
127.90 м²
1 Этаж площадь
67,44 м²
Прихожая
3,53 м²
Холл
3,08 м²
Гостиная-столовая
27,67 м²
Кухня
8,77 м²
Кладовая
2,48 м²
Лестница
4,86 м²
Ванная
4,91 м²
Техническое помещение
3,56 м²
Комната 1
8,58 м²
Терраса
22,30 м²
2 Этаж площадь
60,46 м²
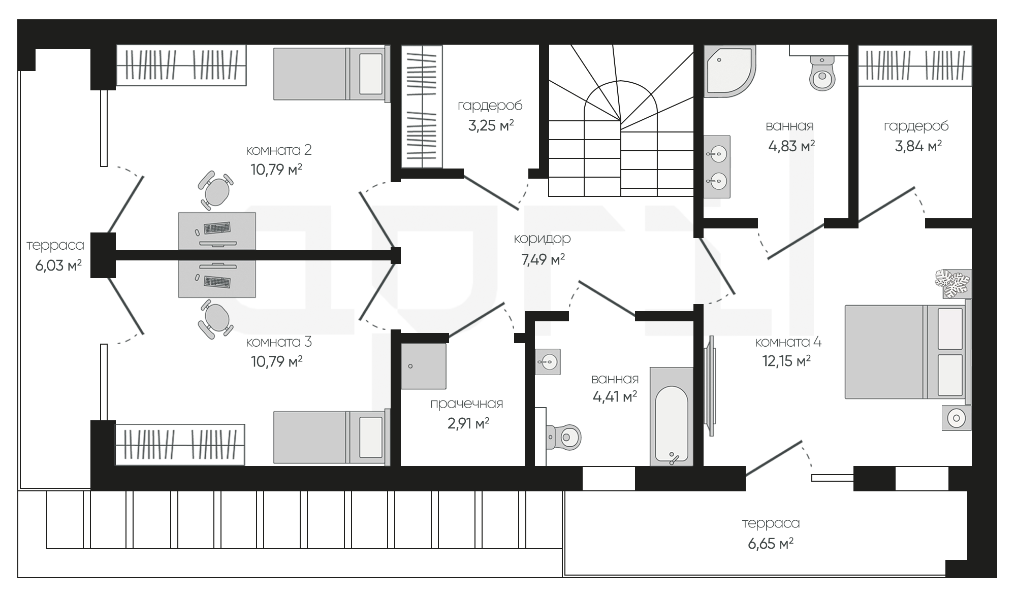
Коридор
7,49 м² (2 эт.)
Гардероб
3,25 м² (2 эт.)
Комната 2
10,79 м² (2 эт.)
Комната 3
10,79 м² (2 эт.)
Прачечная
2,91 м² (2 эт.)
Ванная
4,41 м² (2 эт.)
Комната 4
12,15 м² (2 эт.)
Ванная
4,83 м² (2 эт.)
Гардероб
3,84 м² (2 эт.)
Терраса
6,03 м² (2 эт.)
Терраса
6,65 м² (2 эт.)
планировка
все характеристики
все характеристики
жилой дом
Общая площадь
127.90 м²
1 Этаж площадь
67,44 м²
Прихожая
3,53 м²
Холл
3,08 м²
Гостиная-столовая
27,67 м²
Кухня
8,77 м²
Кладовая
2,48 м²
Лестница
4,86 м²
Ванная
4,91 м²
Техническое помещение
3,56 м²
Комната 1
8,58 м²
Терраса
22,30 м²
2 Этаж площадь
60,46 м²
Коридор
7,49 м² (2 эт.)
Гардероб
3,25 м² (2 эт.)
Комната 2
10,79 м² (2 эт.)
Комната 3
10,79 м² (2 эт.)
Прачечная
2,91 м² (2 эт.)
Ванная
4,41 м² (2 эт.)
Комната 4
12,15 м² (2 эт.)
Ванная
4,83 м² (2 эт.)
Гардероб
3,84 м² (2 эт.)
Терраса
6,03 м² (2 эт.)
Терраса
6,65 м² (2 эт.)
экстерьер
Остались вопросы?
Напиши нам.
Наш ведущий инженер свяжется с вами в ближайшее время.
Обязательно к заполнению
Обязательно к заполнению
ДАННЫЕ ПОЛУЧЕНЫ

данные успешно отправлены

Ведущий инженер компании свяжется с вами в ближайшее время.
мы используем файлы cookie
Используя сайт april-dom.ru, Вы соглашаетесь с использованием файлов cookie, которые указаны в Политике обработки Персональных данных.
/projects/a441/