a147
Проект одноэтажного дома с террасой и пристроенным навесом.
Дом имеет простую, но элегантную геометрическую форму с плоской крышей и большими окнами. Фасады выполнены из темных оттенков штукатурки, а вход в дом и терраса выделены облицовкой под дерево светлого оттенка, что создаёт теплый акцент на фасадах.
Дом имеет простую, но элегантную геометрическую форму с плоской крышей и большими окнами. Фасады выполнены из темных оттенков штукатурки, а вход в дом и терраса выделены облицовкой под дерево светлого оттенка, что создаёт теплый акцент на фасадах.
о проекте
Проект выделяется своей функциональной и удобной планировкой, которая удовлетворяет потребности современных людей.
ЭТАЖНОСТЬ
1
ПЛОЩАДЬ
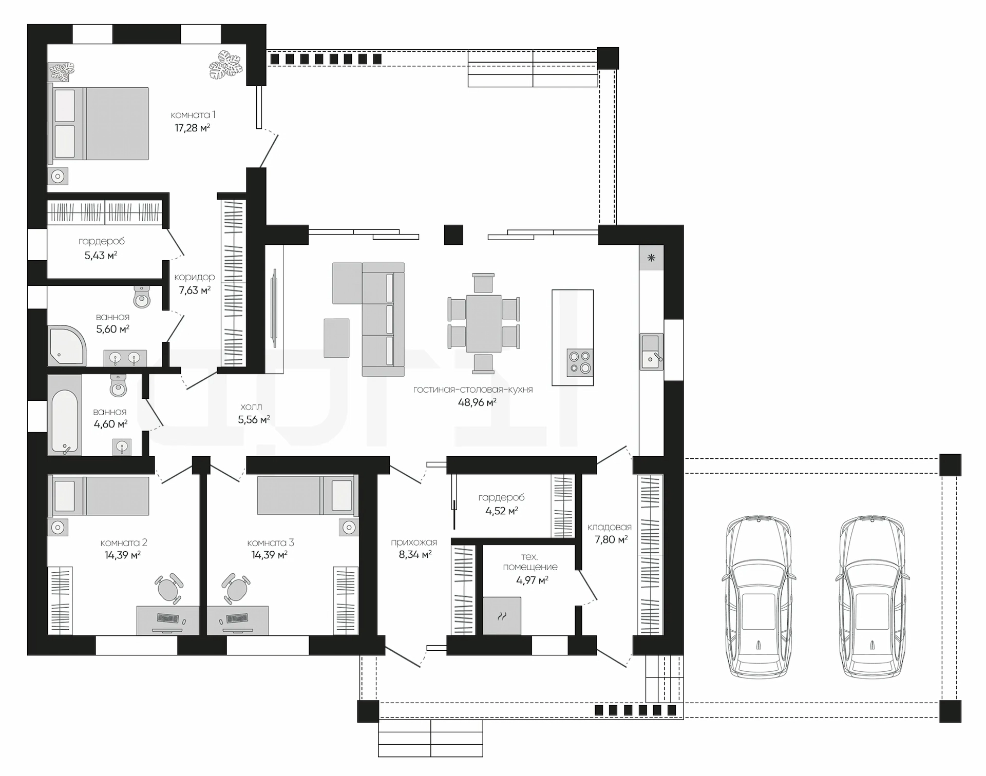
149.47 м²
ПАРАМЕТРЫ ПРОЕКТА
149.47 м²
Общая площадь
149.47 м²
Прихожая
8,34 м²
Гардероб
4,52 м²
Гостиная + столовая + кухня
48,96 м²
Кладовая
7,80 м²
Техническое помещение
4,97 м²
Холл
5,56 м²
Коридор
7,63 м²
Комната 1
17,28 м²
Остались вопросы?
Напиши нам.
Напиши нам.
Наш ведущий инженер свяжется с вами в ближайшее время.
ДАННЫЕ ПОЛУЧЕНЫ
данные успешно отправлены
Ведущий инженер компании свяжется с вами в ближайшее время.
Дома 1 этаж
Дома 2 этажа
Дома 1 этаж с гаражом
Дома 120 м2
Дома 150 м2
Дома 2 этажа с гаражом
Дома 200 м2
Дома 250 м2
Дома 3 этажа
Дома в скандинавском стиле
Дома в стиле райта
Дома в стиле хайтек
Дома до 100 м2
Дома с гаражом
Дома с мансардой
Дома с сауной
Дома 1 этаж с гаражом и террасой
Дома 1 этаж с террасой
Дома в стиле барнхаус
Дома в стиле шале
Дома из газобетона
Дома из газобетона 1 этаж
Дома из камня
Дома из керамических блоков
Дома из кирпича
Дома из пеноблоков
Дома с зимним садом
Дома с подвалом
Дома с террасой
Дома с цокольным этажом
Фахверковые дома
Дома с бассейном