о проекте

Дизайн дома представляет собой яркий пример современной архитектуры, где функциональность сочетается с эстетикой минимализма. Использование контрастных текстур и четких геометрических форм создает гармоничное и стильное жилое пространство.

ЭТАЖНОСТЬ
2
ПЛОЩАДЬ
189.78 м²
1
этаж
2
этаж
ПАРАМЕТРЫ ПРОЕКТА
189.78 м²
Общая площадь
189.78 м²
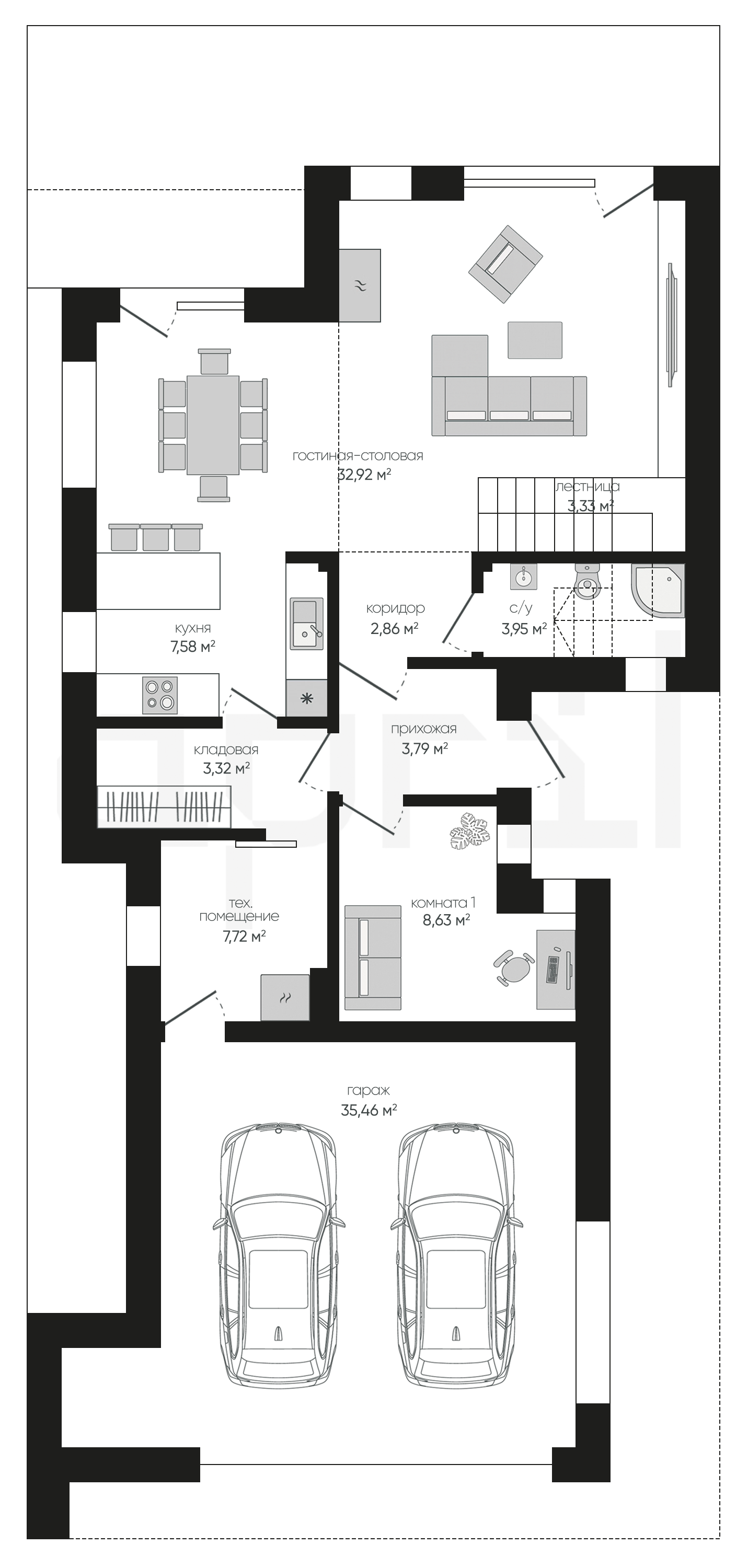
1 Этаж площадь
109,56 м²
Прихожая
3,79 м²
Коридор
2,86 м²
Гостиная-столовая
32,92 м²
Кухня
7,58 м²
Кладовая
3,32 м²
С/у
3,95 м²
Лестница
3,33 м²
1 этаж
2 этаж
все характеристики
жилой дом
Общая площадь
189.78 м²
1 Этаж площадь
109,56 м²
Прихожая
3,79 м²
Коридор
2,86 м²
Гостиная-столовая
32,92 м²
Кухня
7,58 м²
Кладовая
3,32 м²
С/у
3,95 м²
Лестница
3,33 м²
Комната 1
8,63 м²
Техническое помещение
7,72 м²
Гараж
35,46 м²
2 Этаж площадь
80,22 м²
Коридор
8,84 м² (2 эт.)
Комната 2
15,12 м² (2 эт.)
Гардероб
7,68 м² (2 эт.)
Прачечная
6,04 м² (2 эт.)
Комната 3
19,63 м² (2 эт.)
Комната 4
15,28 м² (2 эт.)
Ванная
7,63 м² (2 эт.)
планировка
все характеристики
все характеристики
жилой дом
Общая площадь
189.78 м²
1 Этаж площадь
109,56 м²
Прихожая
3,79 м²
Коридор
2,86 м²
Гостиная-столовая
32,92 м²
Кухня
7,58 м²
Кладовая
3,32 м²
С/у
3,95 м²
Лестница
3,33 м²
Комната 1
8,63 м²
Техническое помещение
7,72 м²
Гараж
35,46 м²
2 Этаж площадь
80,22 м²
Коридор
8,84 м² (2 эт.)
Комната 2
15,12 м² (2 эт.)
Гардероб
7,68 м² (2 эт.)
Прачечная
6,04 м² (2 эт.)
Комната 3
19,63 м² (2 эт.)
Комната 4
15,28 м² (2 эт.)
Ванная
7,63 м² (2 эт.)
экстерьер
гостиная-столовая
Остались вопросы?
Напиши нам.
Наш ведущий инженер свяжется с вами в ближайшее время.
Обязательно к заполнению
Обязательно к заполнению
ДАННЫЕ ПОЛУЧЕНЫ

данные успешно отправлены

Ведущий инженер компании свяжется с вами в ближайшее время.
мы используем файлы cookie
Используя сайт april-dom.ru, Вы соглашаетесь с использованием файлов cookie, которые указаны в Политике обработки Персональных данных.
/projects/a456/