о проекте

Дом с эксплуатируемой мансардой, уникальным внешним видом и функциональным интерьером.

ЭТАЖНОСТЬ
2
ПЛОЩАДЬ
223.34 м²
1
этаж
2
этаж
ПАРАМЕТРЫ ПРОЕКТА
223.34 м²
Общая площадь
223.34 м²
1 Этаж площадь
148,38 м²
Прихожая
5,77 м²
Холл
9,68 м²
Гостиная-столовая
67 м²
Кухня
11,84 м²
Кладовая
5,79 м²
Комната 1
17,97 м²
Гардероб
4,90 м²
1 этаж
2 этаж
все характеристики
жилой дом
Общая площадь
223.34 м²
1 Этаж площадь
148,38 м²
Прихожая
5,77 м²
Холл
9,68 м²
Гостиная-столовая
67 м²
Кухня
11,84 м²
Кладовая
5,79 м²
Комната 1
17,97 м²
Гардероб
4,90 м²
Ванная
9,32 м²
С/у
2,83 м²
Техническое помещение
7,28 м²
Терраса
4,48 м²
Терраса
66,80 м²
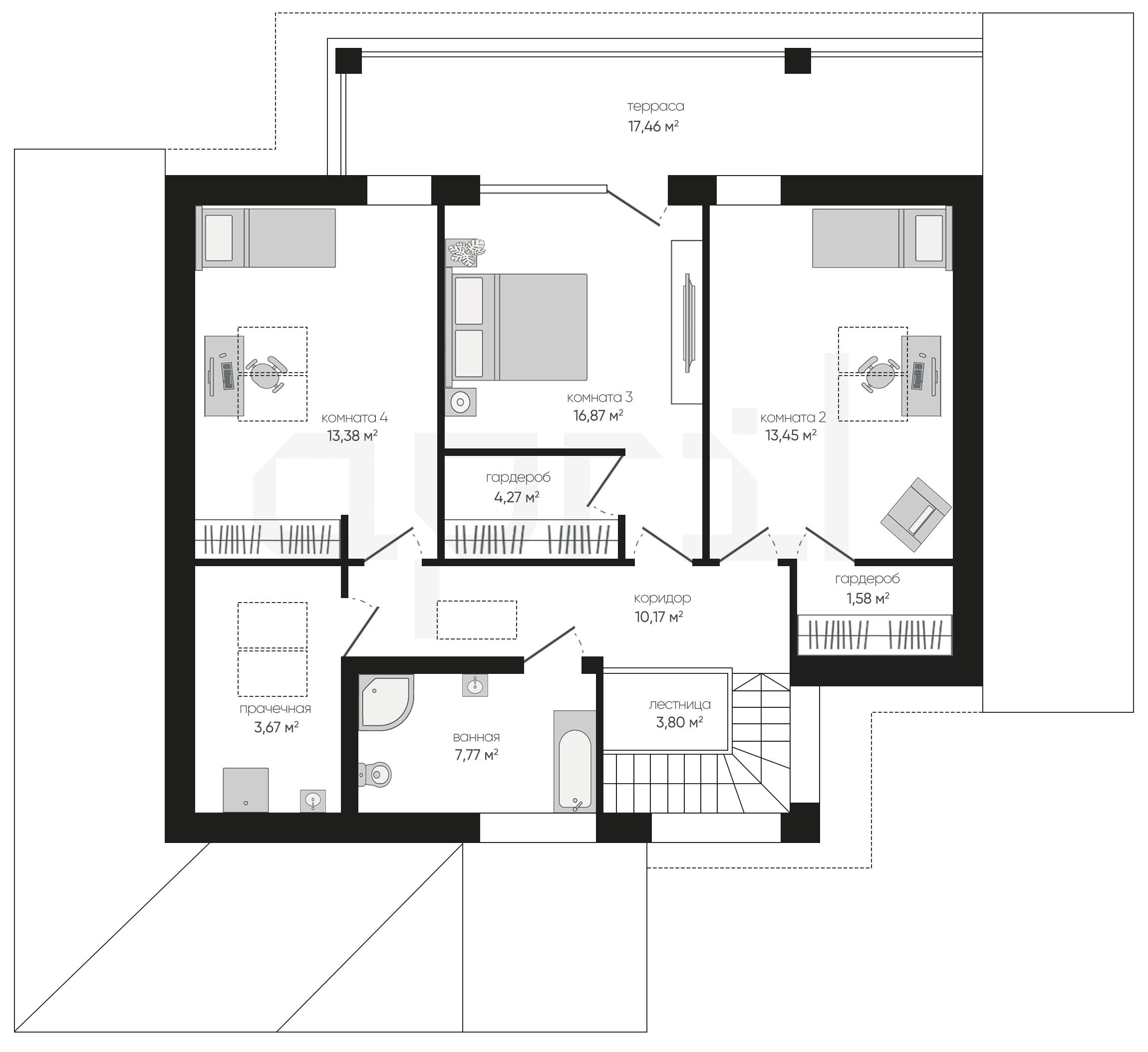
2 Этаж площадь
74,96 м²
Лестница
3,80 м² (2 эт.)
Коридор
10,17 м² (2 эт.)
Комната 2
13,45 м² (2 эт.)
Гардероб
1,58 м² (2 эт.)
Комната 3
16,87 м² (2 эт.)
Гардероб
4,27 м² (2 эт.)
Комната 4
13,38 м² (2 эт.)
Прачечная
3,67 м² (2 эт.)
Ванная
7,77 м² (2 эт.)
Терраса
17,46 м² (2 эт.)
планировка
все характеристики
все характеристики
жилой дом
Общая площадь
223.34 м²
1 Этаж площадь
148,38 м²
Прихожая
5,77 м²
Холл
9,68 м²
Гостиная-столовая
67 м²
Кухня
11,84 м²
Кладовая
5,79 м²
Комната 1
17,97 м²
Гардероб
4,90 м²
Ванная
9,32 м²
С/у
2,83 м²
Техническое помещение
7,28 м²
Терраса
4,48 м²
Терраса
66,80 м²
2 Этаж площадь
74,96 м²
Лестница
3,80 м² (2 эт.)
Коридор
10,17 м² (2 эт.)
Комната 2
13,45 м² (2 эт.)
Гардероб
1,58 м² (2 эт.)
Комната 3
16,87 м² (2 эт.)
Гардероб
4,27 м² (2 эт.)
Комната 4
13,38 м² (2 эт.)
Прачечная
3,67 м² (2 эт.)
Ванная
7,77 м² (2 эт.)
Терраса
17,46 м² (2 эт.)
экстерьер
Остались вопросы?
Напиши нам.
Наш ведущий инженер свяжется с вами в ближайшее время.
Обязательно к заполнению
Обязательно к заполнению
ДАННЫЕ ПОЛУЧЕНЫ

данные успешно отправлены

Ведущий инженер компании свяжется с вами в ближайшее время.
мы используем файлы cookie
Используя сайт april-dom.ru, Вы соглашаетесь с использованием файлов cookie, которые указаны в Политике обработки Персональных данных.
/projects/a340/