а385
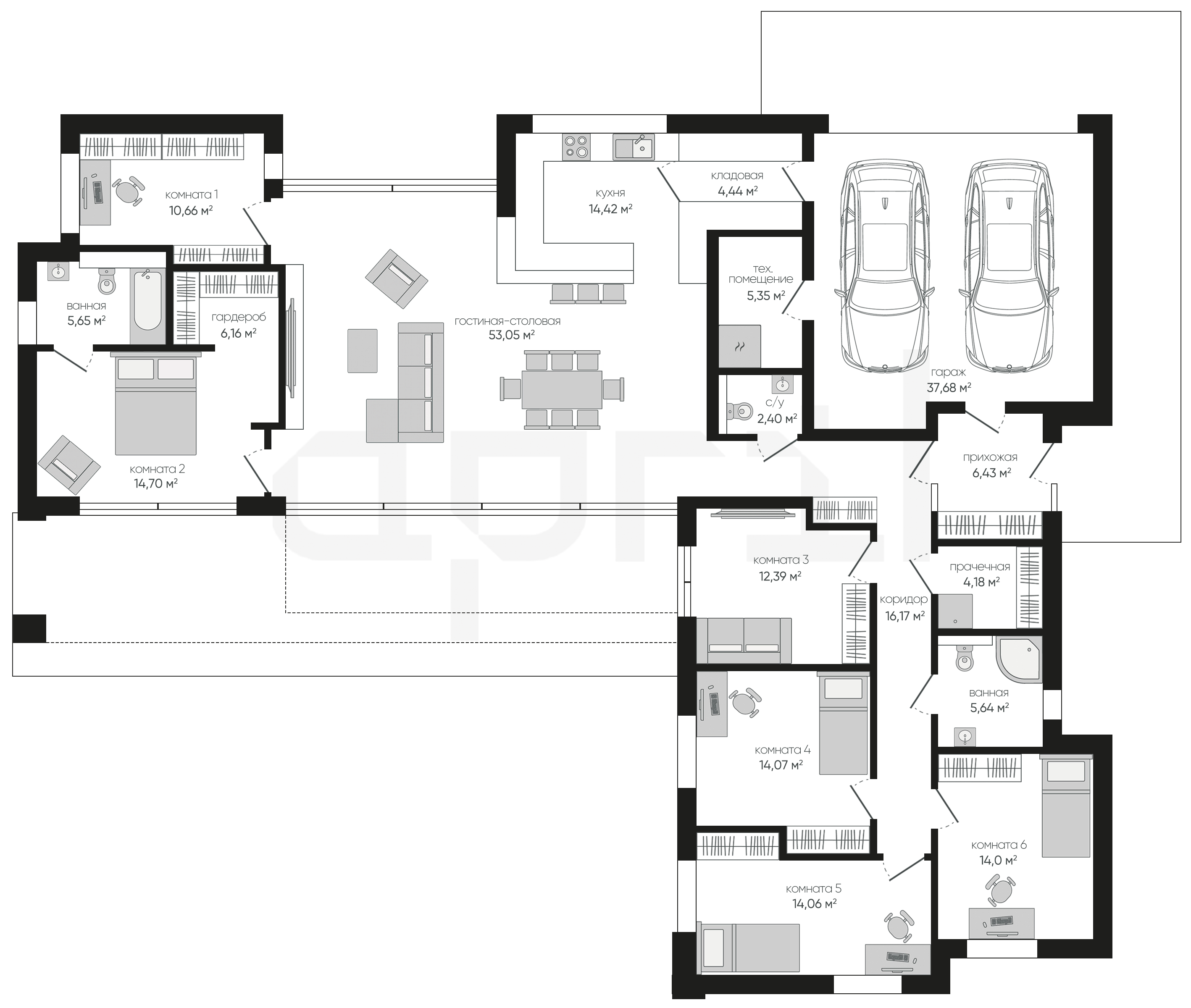
Проект современного одноэтажного дома с гаражом, в минималистичном стиле Хайтек.
Внешние стены покрыты белой штукатуркой и декорированы теплой кирпичной плиткой.
Плоская крыша добавляет современности дому, а большие окна обеспечивают хорошее естественное освещение внутренних помещений.
Внешние стены покрыты белой штукатуркой и декорированы теплой кирпичной плиткой.
Плоская крыша добавляет современности дому, а большие окна обеспечивают хорошее естественное освещение внутренних помещений.
о проекте
Архитектура дома отличается чистыми линиями и простыми формами, вневременной элегантностью, но при этом излучает современность, а контрастные материалы фасада подчеркивают уникальный характер дома.
ЭТАЖНОСТЬ
1
ПЛОЩАДЬ
241.45 м²
ПАРАМЕТРЫ ПРОЕКТА
241.45 м²
Общая площадь
241.45 м²
Прихожая
6,43 м²
С/у
2,40 м²
Гостиная-столовая
53,05 м²
Кухня
14,42 м²
Кладовая
4,44 м²
Комната 1
10,66 м²
Комната 2
14,70 м²
Гардероб
6,16 м²
Остались вопросы?
Напиши нам.
Напиши нам.
Наш ведущий инженер свяжется с вами в ближайшее время.
ДАННЫЕ ПОЛУЧЕНЫ
данные успешно отправлены
Ведущий инженер компании свяжется с вами в ближайшее время.
Дома 1 этаж
Дома 2 этажа
Дома 1 этаж с гаражом
Дома 120 м2
Дома 150 м2
Дома 2 этажа с гаражом
Дома 200 м2
Дома 250 м2
Дома 3 этажа
Дома в скандинавском стиле
Дома в стиле райта
Дома в стиле хайтек
Дома до 100 м2
Дома с гаражом
Дома с мансардой
Дома с сауной
Дома 1 этаж с гаражом и террасой
Дома 1 этаж с террасой
Дома в стиле барнхаус
Дома в стиле шале
Дома из газобетона
Дома из газобетона 1 этаж
Дома из камня
Дома из керамических блоков
Дома из кирпича
Дома из пеноблоков
Дома с зимним садом
Дома с подвалом
Дома с террасой
Дома с цокольным этажом
Фахверковые дома
Дома с бассейном