а398
Проект современного одноэтажного дома с плоской крышей, террасой и гаражом.
Прямоугольная форма дома, соединённая каркасами и секциями, придаёт ему экстравагантный и уникальный характер. Фасад здания представляет собой сочетание белой и антрацитовой штукатурки с деревянными элементами.
Прямоугольная форма дома, соединённая каркасами и секциями, придаёт ему экстравагантный и уникальный характер. Фасад здания представляет собой сочетание белой и антрацитовой штукатурки с деревянными элементами.
о проекте
Одним из главных преимуществ данного дома является его лаконичный современный стиль с плоской крышей, а также удобное, функционально распланированное, пространство.
ЭТАЖНОСТЬ
1
ПЛОЩАДЬ
189.29 м²
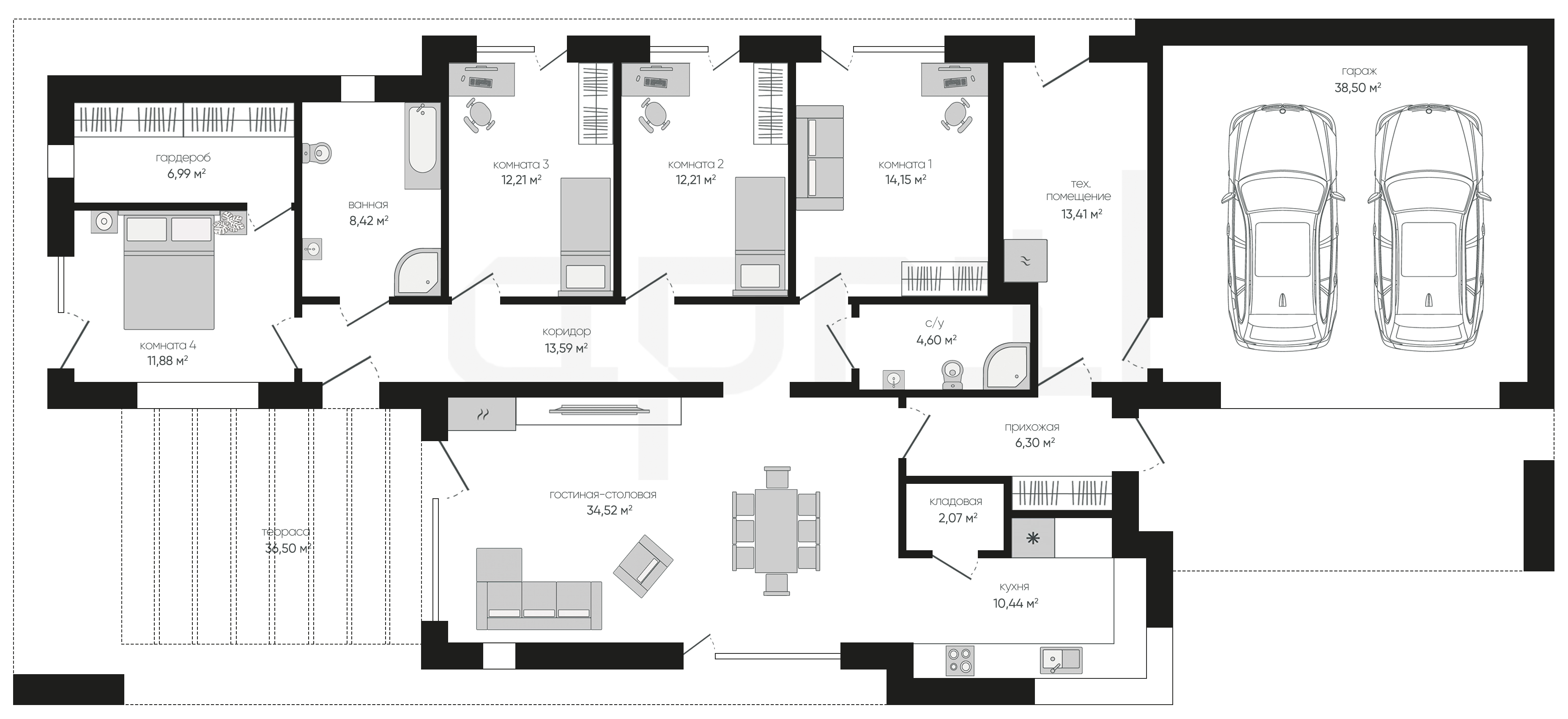
ПАРАМЕТРЫ ПРОЕКТА
189.29 м²
Общая площадь
189.29 м²
Прихожая
6,30 м²
Гостиная-столовая
34,52 м²
Кухня
10,44 м²
Кладовая
2,07 м²
Коридор
13,59 м²
С/у
4,60 м²
Комната 1
14,15 м²
Комната 2
12,21 м²
Остались вопросы?
Напиши нам.
Напиши нам.
Наш ведущий инженер свяжется с вами в ближайшее время.
ДАННЫЕ ПОЛУЧЕНЫ
данные успешно отправлены
Ведущий инженер компании свяжется с вами в ближайшее время.
Дома 1 этаж
Дома 2 этажа
Дома 1 этаж с гаражом
Дома 120 м2
Дома 150 м2
Дома 2 этажа с гаражом
Дома 200 м2
Дома 250 м2
Дома 3 этажа
Дома в скандинавском стиле
Дома в стиле райта
Дома в стиле хайтек
Дома до 100 м2
Дома с гаражом
Дома с мансардой
Дома с сауной
Дома 1 этаж с гаражом и террасой
Дома 1 этаж с террасой
Дома в стиле барнхаус
Дома в стиле шале
Дома из газобетона
Дома из газобетона 1 этаж
Дома из камня
Дома из керамических блоков
Дома из кирпича
Дома из пеноблоков
Дома с зимним садом
Дома с подвалом
Дома с террасой
Дома с цокольным этажом
Фахверковые дома
Дома с бассейном