а394
Проект современного одноэтажного дома с плоской крышей, гаражом и террасой.
Фасад дома сочетает в себе светлые оштукатуренные поверхности с теплыми деревянными панелями, создавая приятный контраст текстур и оттенков. Большие панорамные окна со стороны террасы позволяют максимально использовать естественное освещение и добавляют современности.
Фасад дома сочетает в себе светлые оштукатуренные поверхности с теплыми деревянными панелями, создавая приятный контраст текстур и оттенков. Большие панорамные окна со стороны террасы позволяют максимально использовать естественное освещение и добавляют современности.
о проекте
Дом отличается чистыми линиями и отсутствием излишних декоративных элементов, что характерно для современного стиля Хайтек.
ЭТАЖНОСТЬ
1
ПЛОЩАДЬ
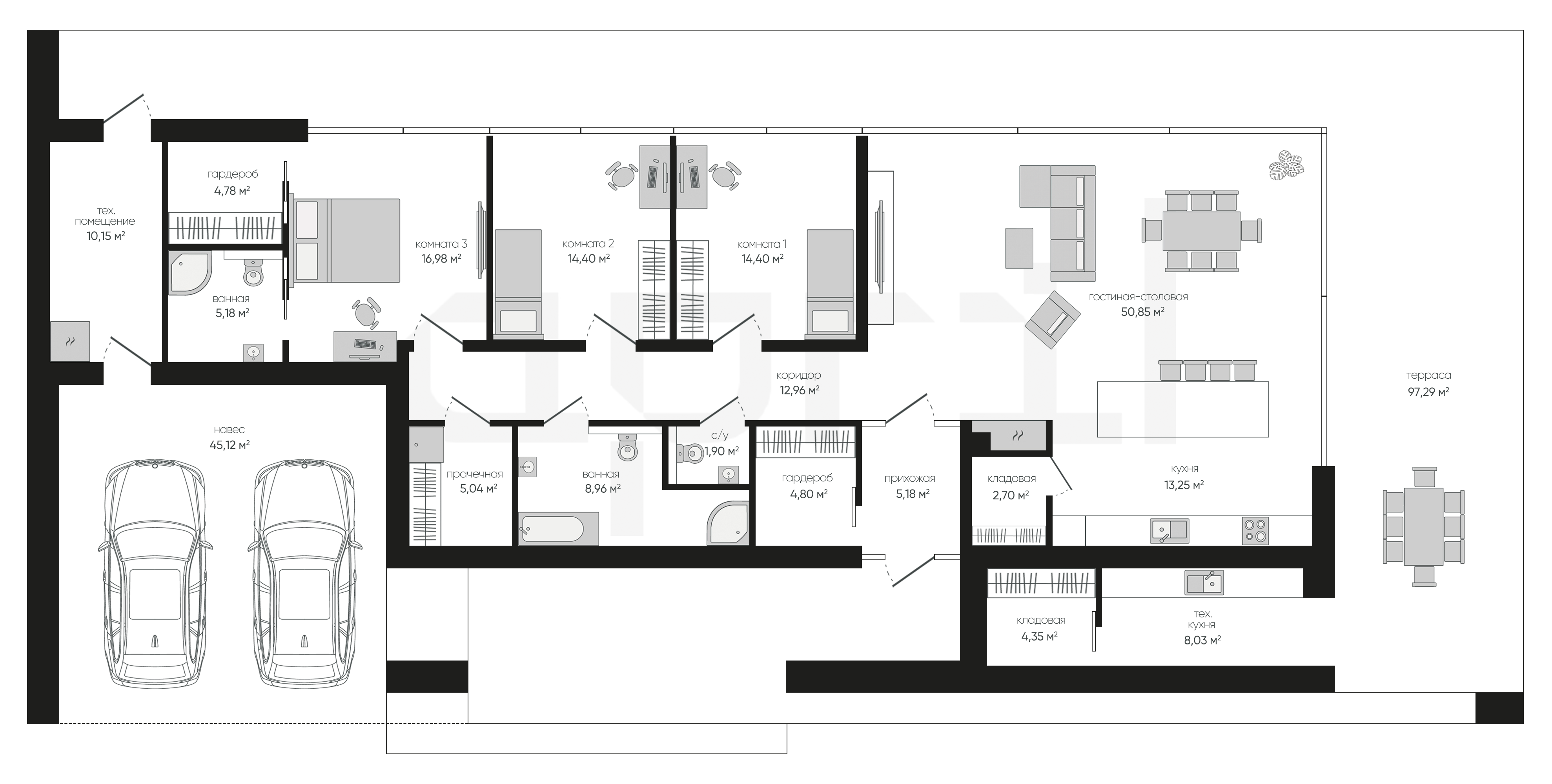
171.53 м²
ПАРАМЕТРЫ ПРОЕКТА
171.53 м²
Общая площадь
171.53 м²
Прихожая
5,18 м²
Гардероб
4,80 м²
Гостиная-столовая
50,85 м²
Кухня
13,25 м²
Кладовая
2,70 м²
Коридор
12,96 м²
Комната 1
14,40 м²
Комната 2
14,40 м²
Остались вопросы?
Напиши нам.
Напиши нам.
Наш ведущий инженер свяжется с вами в ближайшее время.
ДАННЫЕ ПОЛУЧЕНЫ
данные успешно отправлены
Ведущий инженер компании свяжется с вами в ближайшее время.
Дома 1 этаж
Дома 2 этажа
Дома 1 этаж с гаражом
Дома 120 м2
Дома 150 м2
Дома 2 этажа с гаражом
Дома 200 м2
Дома 250 м2
Дома 3 этажа
Дома в скандинавском стиле
Дома в стиле райта
Дома в стиле хайтек
Дома до 100 м2
Дома с гаражом
Дома с мансардой
Дома с сауной
Дома 1 этаж с гаражом и террасой
Дома 1 этаж с террасой
Дома в стиле барнхаус
Дома в стиле шале
Дома из газобетона
Дома из газобетона 1 этаж
Дома из камня
Дома из керамических блоков
Дома из кирпича
Дома из пеноблоков
Дома с зимним садом
Дома с подвалом
Дома с террасой
Дома с цокольным этажом
Фахверковые дома
Дома с бассейном